Depozit NOU-Gilau -Acces TIR/ Autostrada - Acces Facil

598.000 € + TVA

Gilău, Județul Cluj

Sup. prop / mp. prop.:
598 mp
Tip prop.:
Logistică
  • • Locație aproximativă

Descriere spațiu comercial

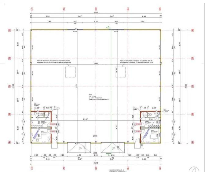
ID: CP2802217 Oferim spre vanzare o hală industrială, Noua, situată în zona Gilau, cu acces facil pentru TIR și toate utilitățile necesare. - Suprafață utilă: 598 mp. - Suprafata depozitare: 550 mp. - Suprafata zona administrativa: 48 mp. - Ialtime utila: 5 m. - Materialele folosite sunt de inalta calitate. –Ideală pentru depozitarea. - Acces: Uși industriale cu acces pentru TIR - Compartimentare: hala este open space - Utilități: Apă, curent, gaz, canalizare Locație avantajoasă, cu infrastructură bună și acces facil către principalele artere rutiere. Pretul de vanzare este de 598.000 Euro + TVA GOLD PARK / Commercial Real Estate – dedicata exclusiv segmentului comercial, am ajuns sa intelegem cele mai profunde nevoi ale clientilor si sa oferim cele mai bune locatii din piata pentru fiecare business. Pentru mai multe oferte asemanatoare, contacteaza-ne acum!
Citește mai mult Citește mai puțin
6 Parcări Electricitate Apă Gaz

Detalii spațiu comercial

ID anunț: X80D140QN Copiat! 271748432 Copiat!
Actualizat în: 24 Martie 2026
Suprafață utilă: 598 mp
Etaj: Parter
Stadiu construcție: Există
An construcție: 2025 (Există)
Suprafață teren: 1500
Regim înălțime: P

Utilități

Utilități
Canalizare
Comision
standard

Disponibilitate proprietate:

Imediat

Proprietăți recomandate

Detalii de contact

GOLD PARK Commercial Real Estate

Cosmin Marina Commercial Adviser

GOLD PARK Commercial Real Estate
PRO

Abonează-te la newsletter să fii primul care primește cele mai noi recomandări de proprietăți și sfaturi de la experți.

CONTACT

Creează alertă

Salvează căutarea ca să primești pe email ultimele anunțuri publicate

Spații comerciale cu o cameră de vânzare în Gilău, Județul Cluj