Hală industrială cu multiple destinații în Nădlac

510.000 €

Nădlac, Județul Arad

Sup. prop / mp. prop.:
1.620 mp
Tip prop.:
Producție/Servicii
  • • Exclusivitate
  • • Locație exactă

Descriere spațiu comercial

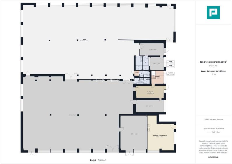
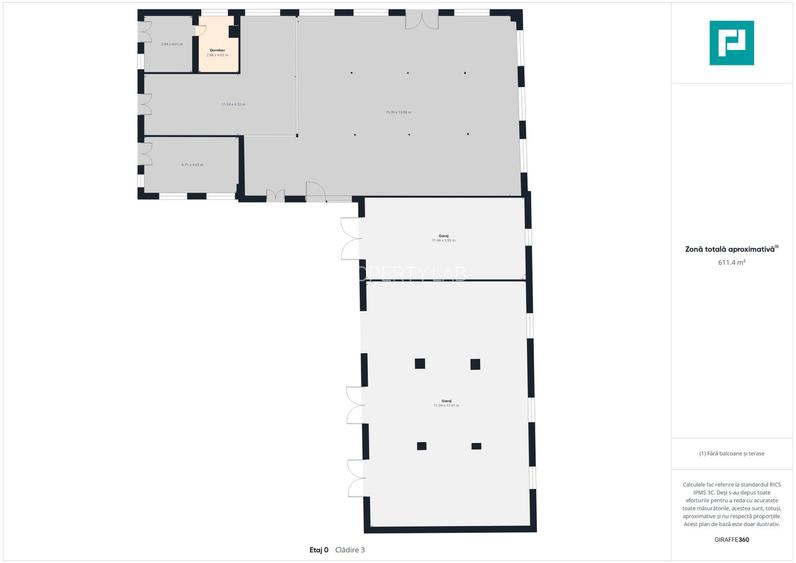
Hală industrială cu multiple destinații în Nădlac – 7.400 mp teren Vă propunem spre vânzare o proprietate industrială situată în Nădlac, jud. Arad, la doar 200 m de drumul care urcă pe autostradă și 500 m de șoseaua internațională, ceea ce îi oferă un acces excelent pentru transportul rutier, atât național, cât și internațional. Imobilul a funcționat ca fabrică de mobilă și a fost modernizat, fiind astăzi pregătit să răspundă unor multiple destinații: producție, depozitare sau activități logistice. Clădirile sunt dotate cu toate facilitățile necesare: geamuri termopan, grupuri sanitare (WC-uri și dușuri), vestiare, birouri, cameră de transformator de 110 kW, apă, gaz, parcare generoasă în fața clădirii și în curte. Accesul pentru vehicule de mare tonaj este asigurat prin porți cu înălțime de 5 m. În plus, proprietatea beneficiază de panouri fotovoltaice, un avantaj important pentru reducerea costurilor energetice. Pe terenul de 7.400 mp sunt edificate construcții cu o suprafață desfășurată de aproximativ 2.400 mp, distribuite astfel: Hală principală P+E de 1.158 mp, compartimentabilă, cu vestiare și dușuri pentru personal; Hală parter de 716 mp, împărțită pentru diferite activități; Anexe în suprafață totală de 150 mp; Șoproane însumând 279 mp, plus un bazin de 28 mp. Proprietatea reprezintă o oportunitate excelentă de investiție, prin poziția strategică aproape de frontieră și autostradă, infrastructura completă și modernizările realizate. Versatilitatea spațiilor permite adaptarea rapidă la diverse domenii de activitate industrială sau comercială. Pentru detalii suplimentare sau pentru a programa o vizionare, vă invităm să ne contactați. Radu Mitran Consultant Imobiliar PropertyLab Andreea Covaci Consultant Imobiliar PropertyLab CP2465004
Citește mai mult Citește mai puțin
Electricitate Apă Gaz

Detalii spațiu comercial

ID anunț: X5I1140KA Copiat! 270712235 Copiat!
Actualizat în: 16 Februarie 2026
Suprafață utilă: 1620 mp
Etaj: Etaj 1
Stadiu construcție: Există
An construcție: 1973 (Există)
Suprafață teren: 7210

Utilități

Destinație
Rezidențial
Utilități
Canalizare

Certificat energetic:

Clasa energetică: D

Disponibilitate proprietate:

Imediat

Puncte de interes

Recreere
sports-ground
Teren Fotbal
Terenuri sport aprox. 1691 m

Proprietăți similare

Spațiu industrial, de 440 mp, în Livada
549.000 €
Județul Arad, Livada
440 mp utili
Logistică
1E
Spațiu industrial, 705 mp în Vladimirescu
550.000 €
Județul Arad, Vladimirescu
705 mp utili
Logistică
1E
Spațiu industrial, în Vladimirescu
490.000 €
Județul Arad, Vladimirescu
Logistică
1976

Detalii de contact

PROPERTY LAB

Radu Mitran Real Estate Consultant Arad

PROPERTY LAB

Abonează-te la newsletter să fii primul care primește cele mai noi recomandări de proprietăți și sfaturi de la experți.

CONTACT

Creează alertă

Salvează căutarea ca să primești pe email ultimele anunțuri publicate

Spații comerciale cu 4+ camere de vânzare în Nădlac, Județul Arad