Pantelimon DN3 hala 600 mp

690.000 € + TVA

Pantelimon, Județul Ilfov

Sup. prop / mp. prop.:
595 mp
Tip prop.:
Logistică
  • • Locație aproximativă

Descriere spațiu comercial

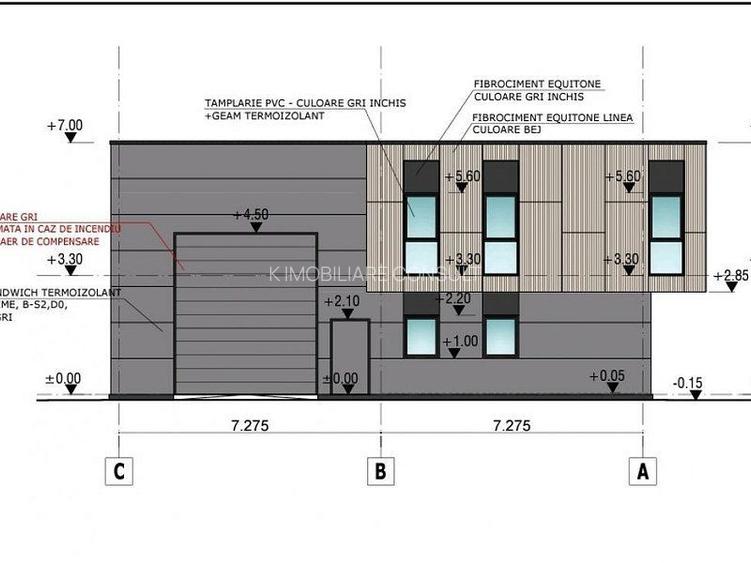
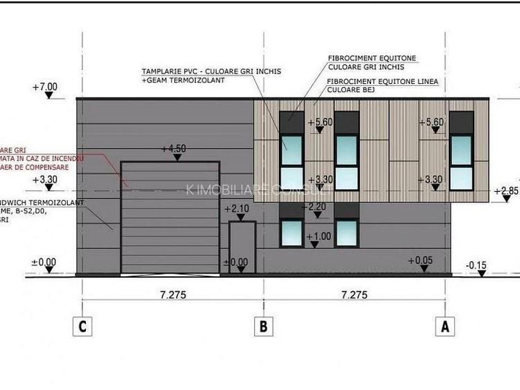
K Imobiliare propune hala construita pe un lot de teren cu adancime ade aproximativ 42-43 m si o latime la drumul de servitude de 37 m Halele au deschiderea catre drumul de servitute de 30ml iar in adancime aprox 20 ml ( 593mp) Structura de rezistenta este de beton ( fundatii prefabricate, centura si stalpi) iar grinzile din otel ( profile IPE) Inchiderile se realizeaza cu panouri de spuma de 80mm la pereti si 100mm la acoperis. Hala va fi dotata cu trape de fum, usa sectionala industriala de 4 m latime /4.5m inaltime , o usa pietonala de 1 m cu 2,05 m h; platforma betonata interioara se realizeaza cu o grosime de 18-20cm si va fi armata cu fibre metalice iar Platforma exterioara va avea o suprafata de aprox 300-350mp , o grosime de 18-20 cm si va fi realizata cu beton rutier. Portile de acces pe proprietate au o deschidere de 9 m si sunt automatizate ( marca WISNIOWSKI ) . Gardul este realizat din beton partea de fundatie si soclu + plasa bordurata de otel de 1.7m ( galvanizata si vopsita in camp electrostatic ca si portile ) Iluminatul interior se va realiza cu lampi led, iar la exterior o lampa de 75 w stardala. Curentul electric se va asigura prin bransament individual de 35kw care se poate modifica in baza unei cereri cu 50% Retea de gaze vom asigura la limita de proprietate . Canalizare exista trasa pe teren. pretvanzare: 690000 monedavanzare: EUR pretvanzaremp: 0 monedavanzaremp: EUR pretinchiriere: 0 monedainchiriere: EUR monedainchiriereunitar: EUR
Citește mai mult Citește mai puțin
10 Parcări Electricitate Apă Gaz

Detalii spațiu comercial

ID anunț: X3DT1407I Copiat! 275328479 Copiat!
Actualizat în: 27 Martie 2026
Suprafață utilă: 595 mp
Etaj: Parter
Stadiu construcție: Există
An construcție: 2022 (Există)
Suprafață teren: 1590
Regim înălțime: P

Utilități

Utilități
Canalizare
Comision
standard

Disponibilitate proprietate:

Imediat

Puncte de interes

Mijloace transport
bus-station
Pasarea
Stații autobuz aprox. 1702 m

Proprietăți similare

Spațiu industrial, în Central
650.000 €
Județul Ilfov, Pantelimon
Logistică
1985
Spațiu industrial, 1058 mp în Exterior Est
740.600 €
Județul Ilfov, Pantelimon
1.058 mp utili
Logistică
2020
Spațiu industrial, 574 mp în Central
680.000 €
Județul Ilfov, Popești-Leordeni
574 mp utili
Depozitare
2025

Detalii de contact

K IMOBILIARE CONSULT

Serban Cristian Agent imobiliar

K IMOBILIARE CONSULT
PRO

Abonează-te la newsletter să fii primul care primește cele mai noi recomandări de proprietăți și sfaturi de la experți.

CONTACT

Creează alertă

Salvează căutarea ca să primești pe email ultimele anunțuri publicate

Spații comerciale cu o cameră de vânzare în Pantelimon, Județul Ilfov