6

Vanzare hala/depozit cu birouri 1.200mp - Strada Oxigenului/Drumul Intre Tarlale

1.650.000 € + TVA

Industriilor, București

Sup. prop / mp. prop.:
1.284 mp
Tip prop.:
Depozitare
Niv.:
1
  • • Exclusivitate
  • • Locație exactă

Descriere spațiu comercial

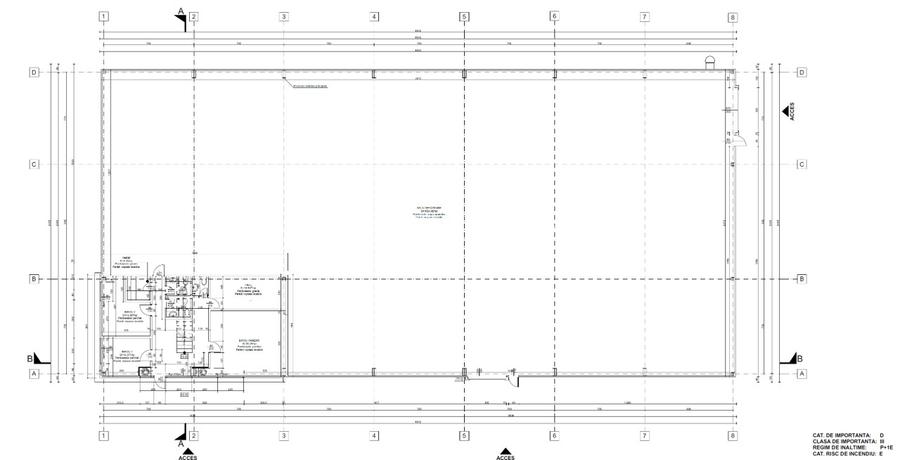
Vanzare hala/depozit cu birouri - Strada Oxigenului/Drumul Intre Tarlale Anul constructiei 2025 Suprafata depozit 1034mp Suprafata birouri 250mp Inaltime utila 7m Sarcina utila pardoseala 5t/mp Birourile se pot amenaja in functie de preferinte. Amenajarea este inclusa in pretul afisat. Comision 0%.
Citește mai mult Citește mai puțin
8 Parcări Electricitate Apă Acces TIR

Detalii spațiu comercial

ID anunț: XFJB04002 Copiat! 253832733 Copiat!
Actualizat în: 14 Ianuarie 2026
Nume proprietate: Hala/Depozit 1301mp Oxigenului
Stadiu construcție: Există
An construcție: 2025 (Există)
Structură rezistență: Metalică
Suprafață platformă (mp): 300
Regim înălțime: P+1E
Înălțime spațiu (m): 2.5
Suprafață birouri (mp): 250
Suprafața minimă divizabilă: 250 mp
Tip podea: Parchet
Recomandare utilizare: Pentru utilizare proprie

Utilități

Acces
Cale rutieră
Dotări
Instalație încălzire Climatizare Ferestre/luminatoare Iluminat
Comision
1.5%

Certificat energetic:

Clasa energetică: A

Puncte de interes

Mijloace transport
train-station
Triaj Titan
Stații tren aprox. 650 m
bus-station
Statia Isovolta, linia 246, 103
Stații autobuz aprox. 789 m
train-station
GARA BUCURESTI-SUD
Stații tren aprox. 820 m
metro-station
Metrorex.Stația Anghel Saligny (M3)(2008)
Stații metrou aprox. 1969 m
Școală
school
Spectrum Liceul Teoretic International de Informatica
Școli aprox. 1623 m
school
Scoala cu clasele I-VIII, nr.78
Școli aprox. 1670 m
school
Scoala Generala nr. 47
Școli aprox. 1705 m
school
Scoala cu clasele I-VIII Nr. 47
Școli aprox. 1706 m
Recreere
restaurant
Best Western Plus Mari Vila Bucharest Hotel
Restaurant aprox. 1376 m
restaurant
Hotel MARI VILA
Restaurant aprox. 1406 m
sports-ground
Teren sportiv
Terenuri sport aprox. 1714 m
park
Părculeț
Parcuri aprox. 1759 m

Proprietăți recomandate

Detalii de contact

AVISON YOUNG ROMANIA

Mihai Berbece Senior Industrial Consultant

AVISON YOUNG ROMANIA
PRO

Abonează-te la newsletter să fii primul care primește cele mai noi recomandări de proprietăți și sfaturi de la experți.

CONTACT

Creează alertă

Salvează căutarea ca să primești pe email ultimele anunțuri publicate

Spații comerciale de vânzare în zona Industriilor, Sector 3