Imobil Mixt– Ideal Pentru Birouri, Showroom

1.100.000 € + TVA

Freidorf, Timișoara

Sup. prop / mp. prop.:
6.672 mp
Tip prop.:
Depozitare
  • • Exclusivitate
  • • Locație aproximativă

Descriere spațiu comercial

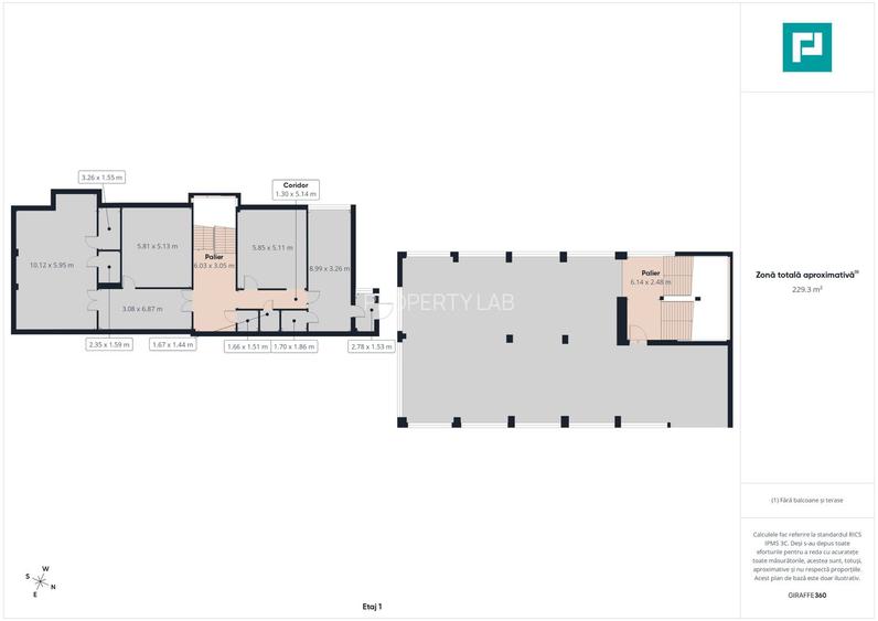
O oportunitate excelentă de investiție! Vă propunem spre vânzare un imobil mixt compus din 3 clădiri, situat într-o zonă urbană dezvoltata, înconjurată de locuințe, ideal pentru activități nepoluante și fără impact asupra vecinătății. CARACTERISTICI TEHNICE: - C1 – Spațiu comercial, protocol și birouri • Regim: P+1E+M • Suprafață construită: 247 mp • Suprafață desfășurată: 758 mp - C2 – Spații multifuncționale (birouri / showroom / depozitare) Regim: P+2E+M Suprafață construită: 1.327 mp Suprafață desfășurată: 5.012 mp - C3 – Clădire birou totala construita la sol este de 1646 mp si Suprafata totala desfasurata 5842 C3 – Clădire birou Suprafață construită: 72 mp TOTAL: - Suprafață totală construită la sol: 1.646 mp - Suprafață totală desfășurată: 5.842 mp UTILITĂȚI & FACILITĂȚI: - Gaz - Curent + curent trifazic - Apă - Canalizare - Acces auto facil - Ieșire pe două laturi ale proprietății (dublu acces auto) SE POTRIVEȘTE PERFECT PENTRU: Sediu central firmă Showroom & spații administrative Pentru medical / educațional / servicii Activități de prestări servicii sau logistică Investitori care caută o proprietate versatilă Pentru detalii suplimentare sau programarea unei vizionări, nu ezitați să mă contactați! Daniela Ianc – PropertyLab Tel CP2705321
Citește mai mult Citește mai puțin
10 Parcări Electricitate Apă Gaz

Detalii spațiu comercial

ID anunț: X5I1140LL Copiat! 272973519 Copiat!
Actualizat în: 30 Martie 2026
Suprafață utilă: 6672 mp
Etaj: Etaj 1
Stadiu construcție: Există
An construcție: 2001 (Există)
Suprafață teren: 9874

Utilități

Destinație
Rezidențial
Utilități
Canalizare
Comision
standard

Disponibilitate proprietate:

Imediat

Proprietăți recomandate

Detalii de contact

PROPERTY LAB

Daniela Ianc Real Estate Consultant Timisoara

PROPERTY LAB

Abonează-te la newsletter să fii primul care primește cele mai noi recomandări de proprietăți și sfaturi de la experți.

Feedback apel

CONTACT

Creează alertă

Salvează căutarea ca să primești pe email ultimele anunțuri publicate

Spații comerciale cu 4+ camere de vânzare în zona Freidorf, Timișoara