Teren și construcție I 667 mp I De Renovat I Copșa Mică

150.000 €
224.89 € / mp

Axente Sever, Județul Sibiu

Sup. teren:
667 mp
Tip:
Construcții
  • • Locație aproximativă
  • • Vizionare prin apel video

Descriere teren

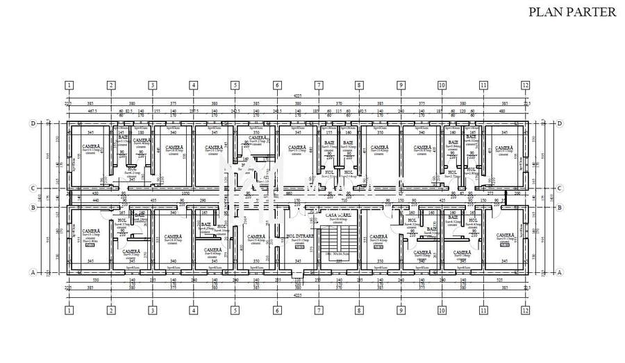
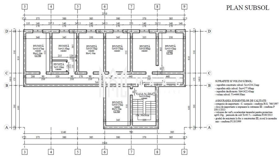
MAAC Imobiliare pune la dispoziție spre vânzare un pachet format din teren intravilan și o construcție existentă, situate în localitatea Copșa Mică. Proprietatea oferă potențial atât pentru reconstrucție, cât și pentru valorificarea structurii actuale. Teren – 667 mp intravilan - categoria: curți–construcții - suprafață: 667 mp - formă regulată, cu fronturi stradale de 42 m și 16 m - toate utilitățile sunt disponibile la proprietate Imobilul poate fi reabilitat sau demolat, în funcție de planurile viitorului proprietar. Caracteristici: - an aproximativ al construcției: 1980 - structură solidă, cu fundatie din beton și zidărie - suprafață construită desfășurată: 1422 mp - regim de înălțime: S + P + E + P - schițele releveu sunt atașate anunțului Pentru detalii suplimentare, contactați MAAC Imobiliare și menționați CP3007145.
Citește mai mult Citește mai puțin
Electricitate Apă Gaz Canalizare

Detalii teren

ID anunț: XCSI130I9 Copiat! 275400838 Copiat!
Actualizat în: 12 Mai 2026
Tip tranzacție: De vânzare prin agent
Clasificare teren: Intravilan
Suprafață construită: 592 mp
Front stradal: 42.0 m
Nr. fronturi stradale: 2
Modalitate de plată: Cash sau Credit

Utilități

Amenajare străzi
Iluminat stradal Mijloace de transport în comun Asfaltate
Alte caracteristici
Acces auto Construcție demolabilă La șosea
Comision
standard

Disponibilitate proprietate:

Imediat

Puncte de interes

Recreere
sports-ground
Teren de Fotbal
Terenuri sport aprox. 227 m

Proprietăți similare

Teren Construcții intravilan de 2491 mp, în Orlat
157.300 €
Județul Sibiu, Orlat
2.491 mp teren
Construcții
Teren Construcții intravilan de 360 mp, în Calea Poplăcii
149.000 €
Sibiu, Calea Poplăcii
360 mp teren
Construcții
Teren Construcții intravilan de 2500 mp, în Șura Mare
142.500 €
Județul Sibiu, Șura Mare
2.500 mp teren
Construcții

Detalii de contact

MAAC Imobiliare

Catalin Ursu Consultant Imobiliar

MAAC Imobiliare
PRO

Abonează-te la newsletter să fii primul care primește cele mai noi recomandări de proprietăți și sfaturi de la experți.

CONTACT

Creează alertă

Salvează căutarea ca să primești pe email ultimele anunțuri publicate

Terenuri construcții de vânzare în Județul Sibiu