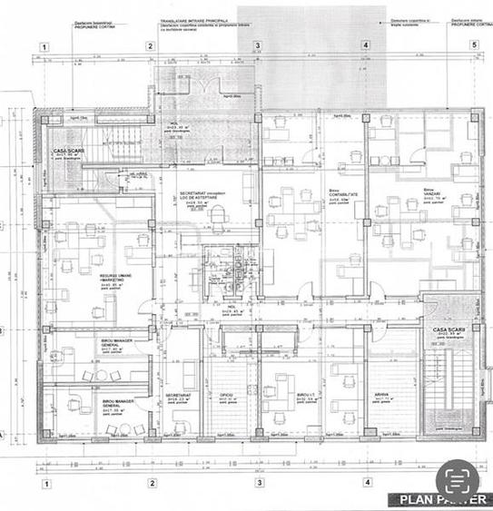
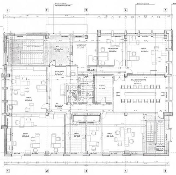
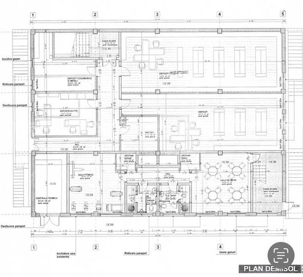
Rower Estate va propune spre vanzare un teren intravilan situat in zona cartierului Dambul Rotund, Cluj-Napoca. Conform Planului Urbanistic Zonal (PUZ) si Hotararii Consiliului Local (HCL) aprobate, terenul are un regim de inaltime S+D+P+5E . Pe teren exista o cladire cu regimul de inaltime S+P+E, cu potentiale functionalitati precum , Gradinita, Birouri, Clinica Medicala care pot fi adaptate conform necesitatii proiectului. Terenul se intinde pe o suprafata de 1.618 mp si beneficiaza de deschidere la doua strazi. Toate utilitatile sunt disponibile la limita proprietatii. Terenul nu este grevat de sarcini.
Conform documentatiei urbanistice, indicatorii urbanistici sunt urmatorii:
Arie construita propusa (A.C.): 807,45 mp
Arie construita desfasurata propusa (A.C.D.): 4.530,00 mp
Procent de ocupare a terenului existent (P.O.T.): 31,76%
Procent de ocupare a terenului propus (P.O.T.): 49,90%
P.O.T. maxim conform HCL: 60%
Coeficient de utilizare al terenului existent (C.U.T.): 0,68
C.U.T. propus: 2,8
C.U.T. maxim conform HCL: 2,8
ID intern: ROW3916
Sediul central - Timișoara
Bulevardul Victor Babeș nr. 2, 300230, Timișoara, România
Tel: +40.374.40.44.98 / Fax: +40.256.401.179
Email: suport@imobiliare.ro
Luni - Vineri 08:00 - 20:00
Punct de lucru - București: Iride Business Park, Bld. Dimitrie
Pompeiu 9-9A, Clădirea B2B,
020335, Sector 2, București, România
CONTACT
Sediul central - Timișoara
Bulevardul Victor Babeș nr. 2, 300230, Timișoara, România
Tel: +40.374.40.44.98 / Fax: +40.256.401.179
Email: suport@imobiliare.ro
Luni - Vineri 08:00 - 20:00
Punct de lucru - București: Iride Business Park, Bld. Dimitrie
Pompeiu 9-9A, Clădirea B2B,
020335, Sector 2, București, România
Sună acum și cere detalii sau programează o vizionare.
Cere detalii prin email
*
*
*
*
Stații autobuz
Școli
Universități
Gradinițe
Supermarket
Parcări
Parcuri
Terenuri sport
Spital
Farmacie
Cafenea
Restaurant
Bar
Pub
Bancă
Electrogroup
aprox.
113 m
Compexit
aprox.
126 m
Centrul Medical
aprox.
184 m
Statia Electrogroup, Linia 21, 40
aprox.
348 m
Statia Compl. Tempus, Linia 21
aprox.
460 m
Statia Alsifcom, Linia 40
aprox.
465 m
Constantin Noica
aprox.
470 m
Alsifcom
aprox.
486 m
Statia Auto Transilvania, Linia 21, 40
aprox.
596 m
W.A. Mozart
aprox.
606 m
Dacia Service
aprox.
619 m
N. Steinhardt
aprox.
656 m
Statia Dacia Service, Linia 40
aprox.
675 m
N. Steinhardt
aprox.
687 m
L. Matis
aprox.
704 m
Liceul de Informatica Tiberiu Popoviciu
aprox.
751 m
Liceul de Informatica "Tiberiu Popoviciu"
aprox.
772 m
Facultatea de Arhitectura si Urbanism
aprox.
1137 m
Cladirea C.I.A
aprox.
1138 m
Liceul Waldorf
aprox.
1251 m
Scoala Generala nr. 10 / Școala Radu Stanca
aprox.
1455 m
Liceul de informatica Tiberiu Popovici
aprox.
1455 m
Liceul de Informatică Tiberiu Popoviciu
aprox.
1570 m
Liceul de Coregrafie și Artă Dramatică Octavian St roia
aprox.
1666 m
Gradinița Bethania
aprox.
1806 m
European College Foundation (en)
aprox.
1838 m
Facultatea Arte Plastice, Sectia Foto-Video
aprox.
942 m
UT Facultatea de Constructii si Facultatea de Arhitectura si Urbanism
aprox.
1018 m
CFDP si Facultatea de Arhitectura si Urbanism
aprox.
1036 m
Facultatea de Arhitectura si Urbanism
aprox.
1127 m
Cladirea Observator a Universitatii Tehnice din Cluj-Napoca
aprox.
1168 m
UBB Biologie si Geologie
aprox.
1714 m
UMF- Catedra de biochimie
aprox.
1771 m
UMF- Catedra de Informatica Medicala
aprox.
1772 m
UMF- catedra de biologie celulara
aprox.
1780 m
UMf- catedra de genetica
aprox.
1802 m
Universitatea de Medicina si Farmacie
aprox.
1816 m
UMF- catedra de biofizica
aprox.
1818 m
Universitatea de Medicină și Farmacie "Iuliu Hațieganu" -Sediul: Pasteur 6-
aprox.
1821 m
UMF- catedra de microbiologie
aprox.
1824 m
Universitatea de Medicină și Farmacie "Iuliu Hațieganu" -Facultatea de Farmacie-
aprox.
1930 m
Helen
aprox.
1012 m
Gradinita Liceului Waldorf
aprox.
1180 m
Grăd.Universul copiilor str.1
aprox.
1425 m
Gradinita "Zana Zorilor" (nr. 58)
aprox.
1541 m
Grăd.Zâna Zorilor
aprox.
1566 m
Grădinița Albă CA Zăpada NR. 9
aprox.
1941 m
Grădinita "Poenita"
aprox.
1984 m
Gradinita Poenita
aprox.
1991 m
Baumax
aprox.
180 m
Carrefour Express
aprox.
988 m
Sigma Shopping Center
aprox.
1066 m
Profi
aprox.
1076 m
Lidl
aprox.
1077 m
Lidl
aprox.
1081 m
Profi
aprox.
1229 m
Lidl
aprox.
1390 m
Billa
aprox.
1423 m
Oncos
aprox.
1522 m
Parcare
aprox.
75 m
Parcare
aprox.
83 m
Parcare
aprox.
126 m
Parcare Baumax
aprox.
141 m
Parcare
aprox.
145 m
Parcare privata
aprox.
254 m
Parcare
aprox.
257 m
Parcare privata
aprox.
267 m
Parcare Baumax
aprox.
298 m
Parcare
aprox.
418 m
Parcare pentru clienti
aprox.
455 m
Parcare pentru clienti
aprox.
698 m
Parcare
aprox.
707 m
Parcare
aprox.
837 m
Parcare
aprox.
937 m
Parc
aprox.
792 m
Parc
aprox.
870 m
Parc
aprox.
872 m
Parc
aprox.
938 m
Parc
aprox.
1013 m
Parc
aprox.
1018 m
Parc
aprox.
1046 m
Parc
aprox.
1062 m
Cimitirul evreiesc
aprox.
1233 m
Parc
aprox.
1354 m
Serele
aprox.
1468 m
Parc
aprox.
1478 m
Parc
aprox.
1509 m
Gradina Botanica
aprox.
1572 m
Parc
aprox.
1584 m
Teren sportiv
aprox.
1015 m
Teren sportiv
aprox.
1082 m
Teren sportiv
aprox.
1099 m
Teren sportiv
aprox.
1484 m
Teren sportiv
aprox.
1542 m
Teren sportiv
aprox.
1792 m
Teren sportiv
aprox.
1860 m
Cabinet de nefrologie si centru de dializa Fresenius
aprox.
510 m
Centrul Medical de Balneofizioterapie si Recuperare Edelweiss
aprox.
757 m
Novogyn - Spital Privat de Obstetrica-Ginecologie
aprox.
779 m
Centrul Medical Transilvania
aprox.
1097 m
Spitalul de Recuperare
aprox.
1179 m
Clinica Bendis
aprox.
1265 m
Medicover Cluj
aprox.
1433 m
Ronda Medical
aprox.
1517 m
Cabinetul Medical Zormed
aprox.
1560 m
Medical Cor
aprox.
1571 m
Smile Dental Clinic
aprox.
1577 m
Spitalul Clinic de Boli Infecțioase
aprox.
1672 m
Spitalul Clinic de Boli Infectioase
aprox.
1672 m
Spitalul Clinic Județean de Urgență: Clinica de Endocrinologie, Clinica de Medicina Muncii
aprox.
1672 m
Clinica de Endocrinologie
aprox.
1766 m
Farmacia Observator
aprox.
970 m
Farmacia Infofarm
aprox.
1060 m
Ortoprofil
aprox.
1131 m
Farmacia Balanis
aprox.
1239 m
Bendis Pharma
aprox.
1252 m
Farmacie
aprox.
1374 m
Farmacia Veroli
aprox.
1429 m
Farmacia Zorilor
aprox.
1498 m
Catena
aprox.
1508 m
Dona
aprox.
1520 m
Donna
aprox.
1932 m
Gedeon Richter
aprox.
1941 m
Elmafarm
aprox.
1982 m
Farmacia Kamill
aprox.
1990 m
Apartament 1
aprox.
233 m
Tango Cafe
aprox.
1911 m
La Tina Bistro Hasdeu
aprox.
1954 m
Bistro 25
aprox.
1986 m
Greenbox Pizza
aprox.
352 m
Restaurant Rod
aprox.
461 m
Crama Haiducilor
aprox.
689 m
Cantina UTCN Observator
aprox.
1011 m
Athena
aprox.
1013 m
Cantina Observator
aprox.
1021 m
Athena
aprox.
1024 m
Good Food
aprox.
1057 m
Marty Sports&Grill
aprox.
1061 m
Salad Box
aprox.
1067 m
Subway
aprox.
1068 m
SEOUL - Korean Healty Food
aprox.
1082 m
Le Buffet
aprox.
1123 m
Grand Hotel Italia
aprox.
1180 m
Da Vinci Ristorante
aprox.
1252 m
G94
aprox.
930 m
The Gentlemen's Club
aprox.
938 m
Caminul Zero
aprox.
1101 m
Toni's Pub
aprox.
1991 m
Mates Pub
aprox.
991 m
Phi 18
aprox.
1111 m
Hard Club
aprox.
1134 m
BRD - Groupe Societe Generale
aprox.
952 m
BRD
aprox.
966 m
EximBank
aprox.
982 m
Banca Transilvania
aprox.
1016 m
OTP Bank
aprox.
1031 m
BRD
aprox.
1048 m
BRD - Groupe Societe Generale
aprox.
1049 m
ING
aprox.
1110 m
Raiffaisen Bank
aprox.
1388 m
Banca Transilvania
aprox.
1472 m
BRD
aprox.
1498 m
Alpha Bank
aprox.
1520 m
BCR
aprox.
1528 m
BRD
aprox.
1555 m
Intesa Sanpaolo Bank
aprox.
1571 m
Printre principalele artere care străbat această zonă a Clujului se numără, în partea de sud, strada Septimiu Mureșan (aceasta merge, pe bună parte din lungimea sa, paralel cu râul Nadăș); în centrul cartierului se află Strada Dâmbul Rotund "“ de unde îi vine, de fapt, și numele; în nord, Strada Gheorghe Sion și Strada Viile Dâmbul Rotund marchează, practic, limita nordică a cartierului. Comparativ cu alte zone ale Clujului, Dâmbul Rotund este, pe alocuri, destul de deficitar în ceea ce privește infrastructura rutieră. Deși este deservit, ca și alte zone clujene, de o serie de mijloace de transport în comun, zona de nord a cartierului ar necesita extinderea liniilor parcurse de acestea. Dacă vrei să cumperi o proprietate aici, interesează-te, așadar, ce distanță ai de parcurs până la cele mai apropiate stații.
Dacă ești părinte "“ sau deocamdată doar îți dorești să devii "“, cu siguranță că, atunci când vine vorba de alegerea unei locuințe, un aspect important la care te gândești este reprezentat de oportunitățile de educație disponibile într-o zonă sau alta. În această privință, poți să stai liniștit: în Dâmbul Rotund se găsesc, ca și în celelalte subdiviziuni ale orașului de pe Someș, mai multe unități de învățământ. O școală cu tradiție din cartier este Școala Gimnazială "Emil Isac", situată chiar în apropiere de Strada Dâmbul Rotund, din zona centrală. În ceea ce privește oportunitățile de continuare a studiilor după liceu, de menționat este Școala de Agenți de Poliție "Septimiu Mureșan" "“ localizată în zona de sud a cartierului, dar dincolo de cursul râului Nadăș.
Ca și în Gruia, în Dâmbul Rotund nu există, momentan, un mall și nici un hipermarket (lucru cât se poate de firesc, de altfel, ținând cont de faptul că este vorba de un cartier mărginaș și cu o densitate a populației relativ redusă). Locuitorii acestei zone nu sunt, însă, lipsiți de alternative când vine vorba de cumpărături "“ astfel, pentru nevoile de zi cu zi există o serie de magazine de dimensiuni mai reduse, dintre care unele afiliate unor rețele internaționale. Chiar dacă nu strict între granițele cartierului, opțiuni există și pentru aceia care sunt pasionați de shopping. Fără prea mare efort, aceștia pot ajunge rapid în zona Centrală a orașului, unde pot vizita numeroasele magazine existente în materie de fashion (și nu numai).
Dacă ai "“ sau intenționezi să-ți achiziționezi "“ o mașină, parcarea nu ar trebui să reprezinte, în mod normal, o problemă, dată fiind densitatea redusă a populației din acest cartier. Dacă dorești, totuși, să închiriezi un spațiu al tău de la autoritățile locale, te poți interesa la sediul central al Primăriei Clujului (amplasat pe Strada Moților, nr. 3).
Spre deosebire de locuitorii altor zone ale Clujului, cei din Dâmbul Rotund nu au la dispoziție un parc în toată puterea cuvântului, cartierul fiind, în general, deficitar și la capitolul locuri de joacă pentru copii. Totuși, având în vedere multitudinea zonelor verzi, poți spera să găsești câteva trasee bune de plimbare. Dacă ești pasionat de sport, iar mersul pe jos și joggingul nu sunt suficiente pentru tine, în Dâmbul Rotund găsești o oportunitate importantă, cunoscută localnicilor sub numele "Fabrica de Sport". Amplasat în sudul cartierului, în fosta zonă industrială, acesta este considerat a fi unul dintre cele mai moderne complexuri sportive din oraș, fiind deschis atât amatorilor de fotbal, cât și celor de fitness, aerobic, kickboxing etc.
Dacă te gândești să te muți în Dâmbul Rotund, poate că vei fi dezamăgit să afli că aici nu există niciun spital de stat. Nu e cazul, însă, să te descurajezi: având în vedere proximitatea față de Centru, pentru serviciile medicale de urgență poți ajunge rapid la multitudinea de spitale care se găsesc în "inima" orașului: Spitalul Clinic Județean de Urgență Cluj-Napoca, Spitalul Clinic Municipal Cluj-Napoca, Spitalul Universitar C.F. Cluj-Napoca etc. Nu sunt de neglijat, desigur, nici cele câteva cabinete medicale particulare ce pot fi găsite în cartier "“ pe acest segment vei găsi atât câteva opțiuni în materie de medicină de familie, cât și în ceea ce privește anumite servicii medicale de specialitate (stomatologie, spre exemplu).
În afară de câteva fast food-uri de cartier, locuitorii cartierului Dâmbul Rotund beneficiază, în apropierea casei, și de câteva oportunități demne de luat în seamă la capitolul restaurante. De menționat este restaurantul "Stejarul", amplasat pe Strada Corneliu Coposu, nr. 95, ce dispune de terasă și oferă și servicii de livrare la domiciliu, dar și restaurantul "Fabrica", de pe Strada Tudor Vladimirescu, nr. 22, unde pot fi organizate și evenimente. Pentru a beneficia de o gamă mai largă de opțiuni pentru ieșirile în oraș cu prietenii, locuitorii acestui cartier au la dispoziție, desigur, și zona Centrală.
Dacă ai nevoie să efectuezi o operațiune bancară, trebuie să știi că strict între granițele acestui cartier nu prea ai opțiuni la acest capitol. Cu toate acestea, imediat sub limita sudică a cartierului, la granița dintre Gruia și zona Centrală (reprezentată de Strada Horea), se găsesc trei sucursale bancare: una din rețeaua BCR, o Banca Transilvania, alături de un sediu Raiffeisen Bank. Consultă harta și află unde sunt localizate și alte bănci sau ATM-uri în cartierul Dâmbul Rotund:
Înainte să pleci...
Ești sigur că ai văzut și aceste proprietăți?
145.000 €
Județul Cluj, Chinteni
5.800 mp teren
Extravilan
Agricol
999.000 €
Cluj-Napoca, Mănăștur
1.464 mp teren
Construcții
164.000 €
Județul Cluj, Pădureni (Chinteni)
29.000 mp teren
Pădure
1.049.000 €
Cluj-Napoca, Grigorescu
1.166 mp teren
Construcții
144.500 €
Județul Cluj, Chinteni
1.166 mp teren
Construcții
1.107.700 €
Cluj-Napoca, Gruia
1.166 mp teren
Construcții
Creează alertă
Salvează căutarea ca să primești pe email ultimele anunțuri publicate
Terenuri construcții de vânzare în zona Dâmbul Rotund, Cluj-Napoca
Cere detalii prin email
*
*
*
*
Detaliile tale de contact vor fi partajate cu Rower Estate S.r.l.