10

Teren autorizat pentru casa individuala, 9 Min de Auchan, COMISION 0%

59.500 €
140 € / mp

Iris, Cluj-Napoca

Sup. teren:
425 mp
Tip:
Construcții
  • • Comision 0%
  • • Locație aproximativă

Descriere teren

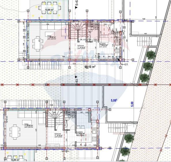
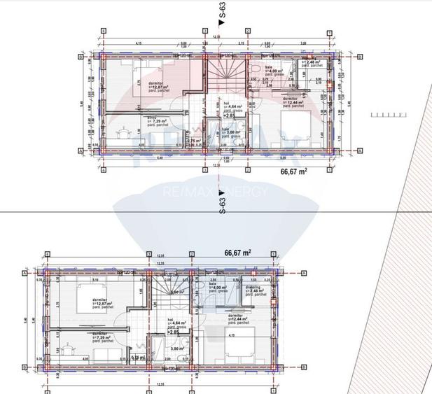
De vânzare teren intravilan 425 mp cu autorizație de construcție pentru casă unifamilială O oportunitate excelentă pentru cei care își doresc o locuință modernă, bine compartimentată, într-o zonă liniștită și verde! Detalii teren: Suprafață: 425 mp Intravilan Două locuri de parcare pe teren Vecinătatea terenului este extravilan, ceea ce garantează liniște, intimitate și o priveliște deschisă, plină de verdeață Expunere sudică – casă luminoasă și eficientă energetic Detalii construcție (autorizată): Regim de înălțime: Demisol + Parter + Etaj Suprafață desfășurată: 169 mp Amprentă la sol: 65 mp Compartimentare propusă: Demisol: spațiu tehnic + terasă Parter: hol, living spațios, bucătărie separată, baie Etaj: 2 dormitoare matrimoniale (dintre care unul cu baie proprie și dressing), birou, baie secundară Autorizația de construcție este deja obținută, ceea ce permite începerea lucrărilor imediat! Drumul se afla momentan in curs de asfaltare iar in ceea ce priveste utilitatile, apa este de la retea iar pentru electricitate s-a obtinut ATR de la aprox 150m. Va rugam sa ne contactati pentru vizionari.
Citește mai mult Citește mai puțin

Detalii teren

ID anunț: XDV21302E Copiat! 270221783 Copiat!
Actualizat în: 22 Aprilie 2026
Clasificare teren: Intravilan
Front stradal: 12 m
Nr. fronturi stradale: 1

Utilități

Comision
0%

Proprietăți recomandate

Detalii de contact

Abonează-te la newsletter să fii primul care primește cele mai noi recomandări de proprietăți și sfaturi de la experți.

CONTACT

Creează alertă

Salvează căutarea ca să primești pe email ultimele anunțuri publicate

Terenuri construcții de vânzare în zona Iris, Cluj-Napoca