Teren cu AC pentru casa, Cluj Napoca, emisă în 2025

60.000 €
141.18 € / mp

Iris, Cluj-Napoca

Sup. teren:
425 mp
Tip:
Construcții
  • • Locație aproximativă

Descriere teren

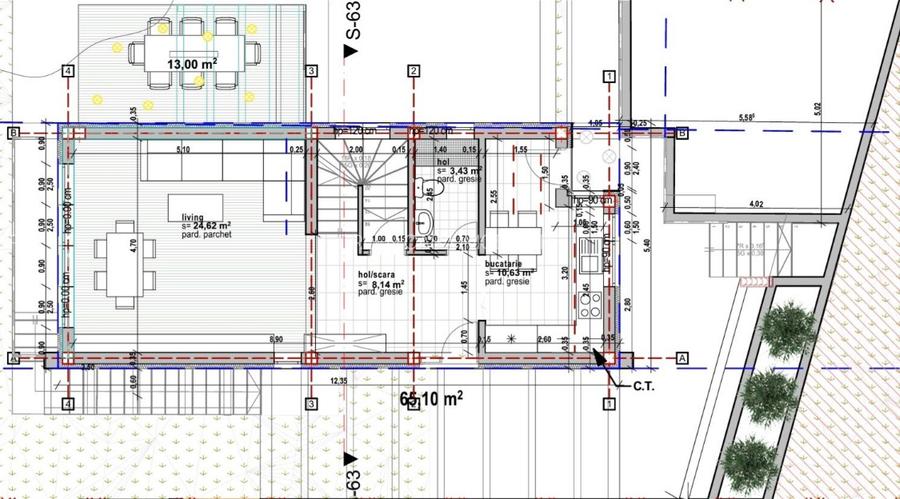
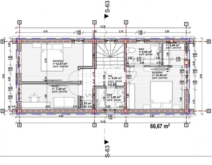
GreenCasa imobiliare va propune spre vânzare Teren de vanzare cu autorizatie de construire in suprafata de 425 mp ,in fânațele clujului(in sat) , la 10/15 minute de mers cu mașina pana la teren de la Auchan Iris, Cluj-Napoca. Pe teren se poate incepe imediat constructia unui imobil cu regim de inaltime S-P-E, cu o suprafata utila de 119mp , suprafață construită 169 mp. Compartimentare: 2 dormitoare, 1 birou 3 bai, bucatarie, un living spatios si spatiun depozitare la subsol, unde e și zona de terasă , după cum se vede în poze. Autorizatia a fost emisa in 28 mai 2025 Zona este liniștită, fiind ultimele 2 parcele de teren din intravilanul municipiului Cluj-Napoca, după acestea fiind zona verde-extravilan, fapt ce conferă intimitate și siguranta ca nu veți avea vecini în viitor. Pentru mai Multe detalii nu ezitați să ne contactați. Id extern: P132763
Citește mai mult Citește mai puțin
Electricitate Apă Gaz Canalizare

Detalii teren

ID anunț: XFUS1302T Copiat! 275412772 Copiat!
Actualizat în: 14 Aprilie 2026
Clasificare teren: Intravilan

Utilități

Amenajare străzi
Asfaltate
Alte caracteristici
Parcelabil La șosea Acces auto Teren împrejmuit
Comision
2%

Puncte de interes

Mijloace transport
bus-station
Statia Intermediara, Linia 39
Stații autobuz aprox. 333 m
bus-station
Intermediara Est
Stații autobuz aprox. 341 m
tram-station
Terapia Nord
Stații tramvai aprox. 449 m
tram-station
Terapia Sud
Stații tramvai aprox. 493 m
Școală
school
Grup Școlar Aurel Vlaicu
Școli aprox. 730 m
kindergarten
Grăd.Floare de iris
Gradinițe aprox. 842 m
school
Scoala Generala Nr. 1
Școli aprox. 1022 m
university
Facultatea de Ingineria Materialelor si a Mediului
Universități aprox. 1212 m
Recreere
supermarket
Auchan Iris
Supermarket aprox. 272 m
park
Junior Residence Park
Parcuri aprox. 849 m
sports-ground
Teren sportiv
Terenuri sport aprox. 1241 m
restaurant
Cantina Facultatea de Mecanica
Restaurant aprox. 1258 m

Proprietăți similare

Teren Construcții extravilan de 967 mp, în Iris
64.990 €
Cluj-Napoca, Iris
967 mp teren
Construcții
Teren Construcții intravilan de 425 mp, în Iris
59.500 €
Cluj-Napoca, Iris
425 mp teren
Construcții
Teren Construcții extravilan de 1300 mp, în Iris
65.000 €
Cluj-Napoca, Iris
1.300 mp teren
Construcții

Detalii de contact

GREEN CASA IMOBILIARE

Coman Claudiu Master Broker

GREEN CASA IMOBILIARE
PRO

Abonează-te la newsletter să fii primul care primește cele mai noi recomandări de proprietăți și sfaturi de la experți.

CONTACT

Creează alertă

Salvează căutarea ca să primești pe email ultimele anunțuri publicate

Terenuri construcții de vânzare în zona Iris, Cluj-Napoca