Teren pentru bloc in Cluj-Napoca!
Va propunem spre vanzare un teren in cartierul Manastur, cu PUD in elaborare.
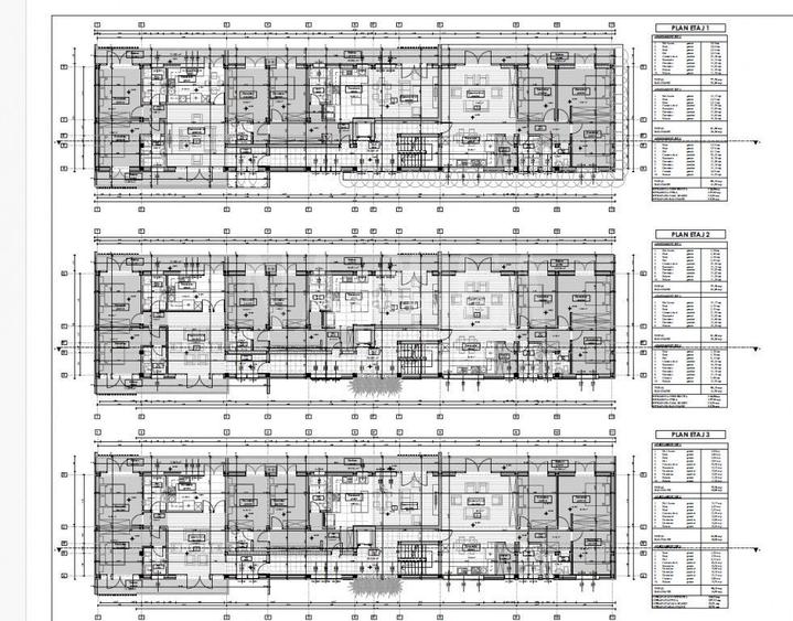
Conform PUD-ului depus se va putea contrui un bloc cu un regim de inaltime D+P+3E+Er, detaliat dupa cum urmeaza:
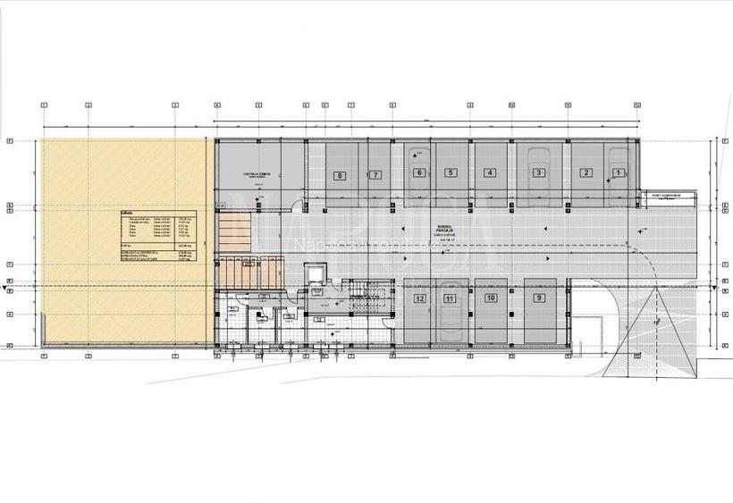
Demisol:
1. Parcaje subterane 399,28 mp
2. Centrala termica 34,04 mp
3. Boxa 8,30 mp
4. Boxa 5,67 mp
5. Boxa 5,68 mp
6. Boxa 14,02 mp
Parter:
SPATIU COMERCIAL
1. Spatiu comercial 49,82 mp
2. Vestiar femei 17,94 mp
3. Vestiar barbati 16,90 mp
4. Hol Acces 35,41 mp
5. Depozitare 29,66 mp
6. Birou 22,86 mp
7. Birou 11,47 mp
8. Arhiva 4,04 mp
9. Boxa curatenie 2,15 mp
Etaj 1/2/3:
(descrierea este pentru un singur etaj, cele 3 fiind identice)
APARTAMENT TIP 1
1. Hol Acces 5,03mp
2. Baie 4,86 mp
3. Baie 4,20 mp
4. Hol 2,03 mp
5. Camera de zi 22,58 mp
6. Bucatarie 12,15 mp
7. Dormitor 13,03 mp
8. Dormitor 13,82 mp
9. Balcon 11,49 mp
10. Balcon 11,20 mp
TOTAL 77,70 mp
BALCOANE 22,69 mp
APARTAMENT TIP 2
1. Hol Acces 13,17 mp
2. Baie 4,45 mp
3. Baie 3,23 mp
4. Camera de zi 21,95 mp
5. Bucatarie 12,05 mp
6. Dormitor 12,00 mp
7. Dormitor 14,64 mp
8. Balcon 18,20 mp
TOTAL 81,50 mp
BALCOANE 18,20 mp
APARTAMENT TIP 3
1. Baie 4,20 mp
2. Baie 3,76 mp
3. Hol 6,14 mp
4. Camera de zi 30,42 mp
5. Bucatarie 10,70 mp
6. Dormitor 12,00 mp
7. Dormitor 15,18 mp
8. Dormitor 12,15 mp
9. Camara 3,60 mp
10. Balcon 14,93 mp
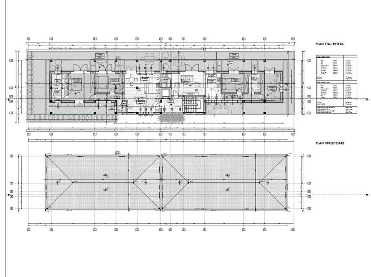
Etaj retras:
APARTAMENT TIP 3
1. Baie 2,47 mp
2. Baie 5,28 mp
3. Hol 4,50 mp
4. Camera de zi 18,05 mp
5. Bucatarie 12,92 mp
6. Dormitor 13,05 mp
7. Dormitor 16,60 mp
8. Dressing 4,31 mp
9. Terasa 114,11 mp
TOTAL 77,18 mp
TERASA 114,11 mp
APARTAMENT TIP 4
1. Baie 2,90 mp
2. Baie 4,33 mp
3. Camera de zi 18,14 mp
4. Bucatarie 9,08 mp
5. Dormitor 12,00 mp
6. Dormitor 12,44 mp
7. Hol 6,76 mp
8. Terasa 90,00 mp
TOTAL 65,65 mp
BALCOANE 90,00 mp
Pentru mai multe detalii, vizionari si oferte de pret, nu ezitati sa ne contactati!
echipa Napoca Imobiliare
ID oferta: 150077
Sediul central - Timișoara
Bulevardul Victor Babeș nr. 2, 300230, Timișoara, România
Tel: +40.374.40.44.98 / Fax: +40.256.401.179
Email: suport@imobiliare.ro
Luni - Vineri 08:00 - 20:00
Punct de lucru - București: Iride Business Park, Bld. Dimitrie
Pompeiu 9-9A, Clădirea B2B,
020335, Sector 2, București, România
CONTACT
Sediul central - Timișoara
Bulevardul Victor Babeș nr. 2, 300230, Timișoara, România
Tel: +40.374.40.44.98 / Fax: +40.256.401.179
Email: suport@imobiliare.ro
Luni - Vineri 08:00 - 20:00
Punct de lucru - București: Iride Business Park, Bld. Dimitrie
Pompeiu 9-9A, Clădirea B2B,
020335, Sector 2, București, România
Sună acum și cere detalii sau programează o vizionare.
Cere detalii prin email
*
*
*
*
Stații autobuz
Stații tramvai
Școli
Gradinițe
Universități
Supermarket
Parcări
Terenuri sport
Parcuri
Spital
Farmacie
Pub
Bar
Restaurant
Cafenea
Bancă
Eugen Lovinescu Vest
aprox.
194 m
Eugen Lovinescu Est
aprox.
199 m
Balea
aprox.
378 m
Balea Vest
aprox.
432 m
Balea Est
aprox.
443 m
Vidraru
aprox.
475 m
Frunzisului Vest
aprox.
576 m
Frunzisului
aprox.
592 m
Varianta Zorilor
aprox.
608 m
19
aprox.
648 m
Edgar Quinet Vest
aprox.
670 m
Grigore Antipa Vest
aprox.
670 m
Grigore Antipa Est
aprox.
675 m
Gradinita Mehedinti
aprox.
685 m
Izlazului
aprox.
803 m
Parang
aprox.
1039 m
Minerva
aprox.
1063 m
Statia Gr. Alexandrescu, Linia 6
aprox.
1089 m
Ravasului
aprox.
1221 m
Statia Gr Alexandrescu1TRV, 102
aprox.
1331 m
Calvaria
aprox.
1344 m
Grigore Alexandrescu
aprox.
1344 m
Clabucet
aprox.
1500 m
Clabucet
aprox.
1632 m
Plopilor Sud
aprox.
1637 m
Statia Plopilor 2 TRV, Linia 102
aprox.
1640 m
Plopilor Nord
aprox.
1640 m
Liceul Edmond Nicolau
aprox.
168 m
Liceul Teologic Adventist
aprox.
236 m
Școala Liviu Rebreanu / Liceul Liviu Rebreanu
aprox.
630 m
Scoala Liviu Rebreanu
aprox.
630 m
Scoala Generala Nr. 3
aprox.
652 m
Scoala Constantin Brancoveanu
aprox.
659 m
Colegiul Tehnic Edmond Nicolau
aprox.
821 m
Liceul Waldorf
aprox.
936 m
Liceul Teologic Adventist Maranatha
aprox.
1004 m
Liceul Teoretic Eugen Pora
aprox.
1134 m
Scoala Generala Eugen Pora
aprox.
1149 m
Scoala Ion Creanga
aprox.
1164 m
Scoala Generala Nr.17, Ion Creangă
aprox.
1169 m
Scoala Octavian Goga
aprox.
1337 m
Școala Generală Nr. 29 / "Octavian Goga"
aprox.
1351 m
Grăd.Buburuzastr.1
aprox.
392 m
Grăd.Universul copiilor
aprox.
478 m
Gradinita Speciala
aprox.
525 m
Gradinita Buburuza
aprox.
575 m
Grăd.Buburuza
aprox.
578 m
Grăd.Rază de soare str. 2
aprox.
841 m
Grăd.Academia piticilor
aprox.
928 m
Gradinita cu orar prelungit nr. 72
aprox.
987 m
Gradinita Liceului Waldorf
aprox.
1013 m
Grăd.Căsuța poveștilor2 / Grigore Alexandrescu 21
aprox.
1303 m
Grăd.Dumbrava minunată
aprox.
1312 m
Grăd.Albinuța
aprox.
1348 m
Grădinița "Albinuța"
aprox.
1352 m
Gradinita Albinuta
aprox.
1352 m
Helen
aprox.
1402 m
USAMV Cluj-Napoca
aprox.
1328 m
Universitatea de Stiinte Agricole si Medicina Veterinara
aprox.
1458 m
Platforma De Biotehnologie Bazata Pe Cunoastere
aprox.
1520 m
Universitatea de Stiinte Agricole si Medicina Veterinara
aprox.
1576 m
Facultatea de Zootehnie si Biotehnologii
aprox.
1610 m
UT Facultatea de Constructii si Facultatea de Arhitectura si Urbanism
aprox.
1864 m
CFDP si Facultatea de Arhitectura si Urbanism
aprox.
1906 m
Facultatea de Educatie Fizica si Sport
aprox.
1929 m
UBB Educatie Fizica si Sport
aprox.
1941 m
Olimpia
aprox.
332 m
Profi
aprox.
346 m
La doi Pasi
aprox.
553 m
Complex Nora
aprox.
589 m
NONstop
aprox.
601 m
Lidl
aprox.
766 m
Winmarkt
aprox.
804 m
Carrefour Market
aprox.
831 m
Profi
aprox.
1055 m
Oncos
aprox.
1199 m
Kaufland
aprox.
1211 m
Billa
aprox.
1244 m
Profi City
aprox.
1257 m
Profi
aprox.
1386 m
Profi
aprox.
1459 m
Parcare
aprox.
787 m
Parcare
aprox.
816 m
Parcare
aprox.
816 m
Parcare privata
aprox.
896 m
Parcare privata
aprox.
913 m
Parcare privata
aprox.
963 m
Parcare privata
aprox.
991 m
Parcare privata
aprox.
996 m
Parcare privata
aprox.
1002 m
Parcare
aprox.
1012 m
Parcare privata
aprox.
1042 m
Parcare privata
aprox.
1052 m
parcare
aprox.
1053 m
Parcare privata
aprox.
1060 m
Parcare privata
aprox.
1078 m
Teren sportiv
aprox.
131 m
Teren sportiv
aprox.
665 m
Teren sportiv
aprox.
676 m
Teren sportiv
aprox.
808 m
Teren sportiv
aprox.
1055 m
Teren sportiv
aprox.
1112 m
Teren sportiv
aprox.
1318 m
Teren sportiv
aprox.
1318 m
Teren sportiv
aprox.
1388 m
Teren sportiv
aprox.
1409 m
Teren sportiv
aprox.
1445 m
Teren sportiv
aprox.
1511 m
Teren sportiv
aprox.
1590 m
Teren sportiv
aprox.
1759 m
Teren sportiv
aprox.
1759 m
Parc
aprox.
265 m
Parc
aprox.
386 m
Parc
aprox.
434 m
Parc
aprox.
558 m
Parc Mehedinti
aprox.
760 m
Teren de joaca Manastur nr.1
aprox.
780 m
Parc
aprox.
1000 m
Parc
aprox.
1063 m
Parc
aprox.
1086 m
Parc
aprox.
1105 m
Parc
aprox.
1117 m
Parc
aprox.
1158 m
Parcul Primaverii
aprox.
1162 m
Parc
aprox.
1185 m
Parcul Iuliu Prodan
aprox.
1193 m
Farmacie
aprox.
568 m
Smile Dental Clinic
aprox.
1134 m
Medical Cor
aprox.
1153 m
Cabinetul Medical Zormed
aprox.
1190 m
Clinica Bendis
aprox.
1405 m
Spitalul de Recuperare
aprox.
1511 m
Centrul Medical Transilvania
aprox.
1590 m
Ronda Medical
aprox.
1594 m
Clădirea Spitalului de Urgență nefinalizata
aprox.
1759 m
Cabinet medical universitar
aprox.
1766 m
Cabinet de nefrologie si centru de dializa Fresenius
aprox.
1984 m
Spitalul Clinic de Boli Infecțioase
aprox.
1985 m
Spitalul Clinic de Boli Infectioase
aprox.
1985 m
Farmacia Europa
aprox.
965 m
Help Net
aprox.
968 m
Farmacia Viva
aprox.
970 m
Farmacia Richter
aprox.
1004 m
Dona
aprox.
1134 m
Catena
aprox.
1146 m
Catena
aprox.
1147 m
Farmacia Balanis
aprox.
1181 m
Farmacia Zorilor
aprox.
1222 m
Farmacia Veroli
aprox.
1251 m
Farmacie
aprox.
1282 m
Farmacia Salvie
aprox.
1337 m
Bendis Pharma
aprox.
1406 m
Farmacia Infofarm
aprox.
1418 m
Galenus 2
aprox.
1425 m
Old Pub
aprox.
330 m
Mates Pub
aprox.
1658 m
Old Friends Pub
aprox.
1853 m
Ring Club
aprox.
1880 m
London Pub
aprox.
1916 m
Uni Sports Bar
aprox.
1955 m
Student Pop
aprox.
1972 m
Cafe Bar
aprox.
488 m
G94
aprox.
1444 m
The Gentlemen's Club
aprox.
1724 m
Tube - Social Chemistry
aprox.
1897 m
Molecular Beams
aprox.
1910 m
Studio 26
aprox.
1921 m
Rehab College Bar
aprox.
1933 m
Booha Bar
aprox.
1945 m
Living Pub
aprox.
1947 m
Terasa Niko
aprox.
1956 m
Cheaters
aprox.
1998 m
La Tina Bistro Manastur
aprox.
599 m
Fast-Food "Big Lunch" (en)
aprox.
848 m
Vila Rosa
aprox.
914 m
Valahia
aprox.
1023 m
McDonald's
aprox.
1030 m
Restaurant Valahia
aprox.
1040 m
Zucca
aprox.
1104 m
Restaurant Perla
aprox.
1235 m
Pizzeria Azzuro
aprox.
1288 m
EX Cafe
aprox.
1297 m
Pizza X
aprox.
1337 m
Restaurant Casa Piratilor
aprox.
1392 m
Casa Piratilor (en)
aprox.
1412 m
Big Belly
aprox.
1421 m
La Ses
aprox.
1503 m
Bistro
aprox.
1244 m
Meron Platinia
aprox.
1821 m
Ela & Cata
aprox.
1860 m
bike44
aprox.
1900 m
Giuf Cafe
aprox.
1905 m
Black Sheep
aprox.
1939 m
Big Apple
aprox.
1942 m
Gap
aprox.
1943 m
Solas
aprox.
1946 m
Louie
aprox.
1952 m
Origine
aprox.
1999 m
BRD
aprox.
337 m
Banca Transilvania
aprox.
575 m
Banca Transilvania
aprox.
885 m
UniCredit
aprox.
892 m
BCR
aprox.
909 m
Banca Romaneasca
aprox.
932 m
Alpha Bank
aprox.
937 m
Raiffeisen Bank
aprox.
939 m
Banca Comerciala Carpatica
aprox.
947 m
ING
aprox.
950 m
Intesa Sanpaolo Bank
aprox.
952 m
Volksbank
aprox.
956 m
OTP Bank
aprox.
967 m
BRD
aprox.
972 m
BRD
aprox.
972 m
Una dintre principalele artere care străbate Mănășturul, pe direcția vest "“ nord-est, este Strada Primăverii; acesteia i se adaugă și Strada Câmpului și Strada Frunzișului, ambele pe direcția nord "“ sud-est. Cartierul este deservit de numeroase linii de transport în comun (atât autobuze, cât și troleibuze și tramvaie), menite să facă legătura cu celelalte zone ale orașului "“ și în mod special cu centrul.
Cartierul Mănăștur reprezintă o bună alegere pe termen lung din punctul de vedere al oportunităților de educație. În primă fază, în această zonă a orașului vei găsi numeroase grădinițe, atât de stat, cât și particulare. Ulterior, aici vei putea alege între numeroase școli (primare și gimnaziale), dar și licee. Pentru cei interesați, cartierul oferă și opțiuni în materie de învățământ superior. Este vorba, în primul rând, de Universitatea de Științe Agricole și Medicină Veterinară din Cluj-Napoca, amplasată în extrema de nord-est a cartierului, aproape de granița cu Plopilor. De menționat este și Universitatea "Bogdan Vodă", al cărei sediu se găsește pe strada Grigore Alexandrescu .
În ciuda faptului că poate fi considerat cel mai mare cartier al Clujului, în Mănăștur nu se găsește niciun mall propriu-zis. Cu toate acestea, de aici se poate ajunge cu ușurință atât la mallul Vivo!, din Florești, cât și la Platinia Shopping Center (amplasat în Plopilor, însă foarte aproape de granița cu Mănășturul și Centrul). În interiorul cartierului, o destinație mai apropiată de cumpărături poate fi centrul comercial Winmarkt Cluj (fostul "Big" Mănăștur), atât pe partea de fashion și cosmetice, cât și în materie de mobilă și electrocasnice. Tot aici se află și un Carrefour Market, o farmacie Sensiblu, precum și o sală de fitness. Alte opțiuni ar fi centrele comerciale Sirena (din apropierea stației Clabucet) și Flora (din vecinătatea pieței cu același nume). În Mănăștur se găsește și un hipermarket Kaufland (în zona Câmpului), alături de numeroase supermarketuri "“ dintre care unele afiliate unor rețele internaționale, precum Lidl, Profi sau Billa. Locuitorii acestei zone beneficiază și de câteva piețe amenajate, precum Flora sau Ion Meșter.
Pentru cei care au mașină, găsirea unui loc de parcare stabil în cartier poate fi o problemă "“ asta mai ales în zonele mai intens circulate și unde se află blocuri cu multe etaje. Dacă vrei să eviți situațiile neplăcute odată mutat aici, poți închiria un loc de parcare de la autoritățile locale (cererile pot fi depuse la Primăria de cartier, de pe Strada Ion Meșter, nr. 10).
Dacă ești pasionat de sport, te vei bucura să afli că în Mănăștur se află cea mai mare bază sportivă din Cluj-Napoca, anume Baza Sportivă "Unirea". Amplasat la marginea vestică a cartierului, un alt important spațiu de agrement este cunoscut sub denumirea "La terenuri". În ciuda amenajării sale deficitare, această zonă continuă să fie frecventată, îndeosebi în weekend, de către cei pasionați de activități în aer liber. Tot în Mănăștur găsești și parcurile "Colina" sau "Primăverii", cel din urmă fiind folosit și pentru organizarea unor evenimente culturale. Cartierul oferă și avantajul unui acces rapid către pădurea Făget "“ care poate fi destinația perfectă pentru o ieșire de weekend.
Dacă te gândești să te muți în Mănăștur, e bine să știi că strict în interiorul acestuia nu vei găsi, din păcate, niciun spital de stat "“ ceea ce nu înseamnă, însă, că vei duce lipsă de opțiuni în materie de servicii medicale. Asta pentru că locuitorii cartierului pot ajunge cu ușurință în zona centrală, unde vor avea acces la o serie de asemenea unități medicale. Un astfel de exemplu este Spitalul Clinic Județean de Urgență Cluj-Napoca, care este deschis 24 de ore din 24 "“ la fel ca și Spitalul Clinic Municipal Cluj-Napoca. De menționat sunt și Spitalul Universitar C.F. Cluj-Napoca, Spitalul de Pediatrie, Spitalul Clinic de Boli Infecțioase Cluj-Napoca, Spitalul de Pneumologie "Leon Daniello", dar și Spitalul Clinic de Recuperare Cluj-Napoca. În cartierul Mănăștur "“ sau în imediata sa apropiere "“ vei găsi, de asemenea, și o serie de clinici private, cum ar fi Medstar, Synevo, Union Medical, Centrul Medical Medexpert sau Centrul Medical "Jamgossian".
La capitolul gastronomie, locuitorii cartierului Mănăștur au la dispoziție, în proximitatea casei, și alte câteva variante demne de luat în seamă. Printre acestea se numără restaurantul "Casa Piraților", amplasat pe Strada Răvașului, nr. 16 (acesta dispune de terasă și oferă și servicii de livrare la domiciliu), dar și restaurantul "Valahia", de pe Strada Govora, nr. 27. În afară de restaurante, în această zonă a Clujului se mai găsesc, desigur, și o serie de fast food-uri, inclusiv o unitate McDonald's (pe Strada Primăverii, nr. 74). Alte opțiuni interesante pentru a lua masa în oraș oferă, desigur, și zona centrală.
La capitolul bănci și ATM-uri, este de așteptat ca această zonă a orașului să fie destul de bine deservită, date fiind dimensiunile sale. Spre exemplu, într-un areal destul de restrâns, anume în apropiere de intersecția dintre Strada Primăverii și Strada Izlazului, vei putea găsi patru sedii de bănci, anume un BRD și un BCR, alături de o sucursală Banca Românească și una a Băncii Transilvania. Consultă harta și află unde sunt localizate și alte bănci sau ATM-uri în cartierul Mănăștur:
Înainte să pleci...
Ești sigur că ai văzut și aceste proprietăți?
999.000 €
Cluj-Napoca, Mănăștur
1.464 mp teren
Construcții
1.000.000 €
Cluj-Napoca, Mănăștur
1.464 mp teren
Construcții
990.000 €
Cluj-Napoca, Mănăștur
1.080 mp teren
Construcții
Creează alertă
Salvează căutarea ca să primești pe email ultimele anunțuri publicate
Terenuri construcții de vânzare în zona Mănăștur, Cluj-Napoca
Cere detalii prin email
*
*
*
*
Detaliile tale de contact vor fi partajate cu Napoca Imobiliare