12

TEREN 400 MP +PROIECT SI AUTORIZATIE DE CONSTRUCTIE, ZONA DACIA

169.900 €
424.75 € / mp

Dacia, Constanța

Sup. teren:
400 mp
Tip:
Construcții
  • • Locație exactă

Descriere teren

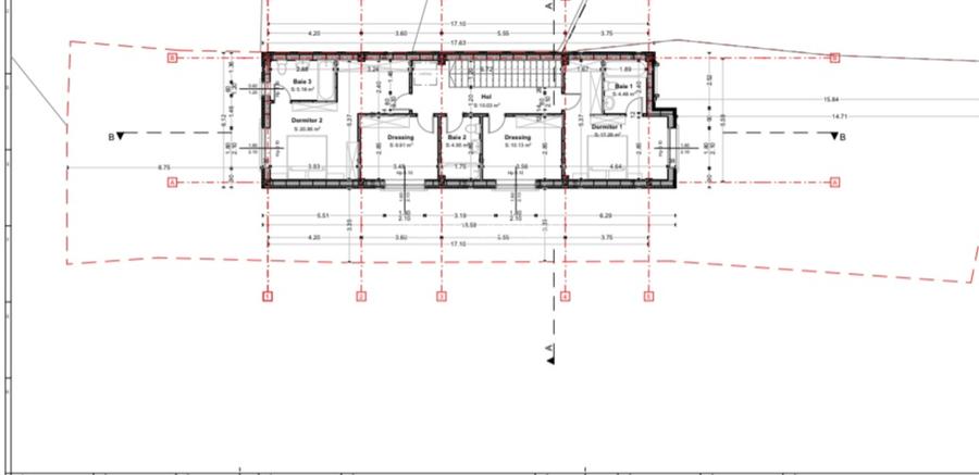
Alpha Imobiliare Concept va propune spre achizitionare un teren spatios, in zona Dacia a orasului Constanta, in imediata aprooiere a Scolii Gimnaziale Nr 12. Terenul are suprafata de 400 mp, deschidere 11 ml, este dotat cu toate utilitatile ( apa, curent, gaze, canalizare), pe suprafata lui exista si o casa bataneasca. In pretul listat este inclus un proiect foarte reusit de casa, P+1, cu amprenta la sol de 110 ml si autorizatie de constructie, toate actele necesare vanzarii sunt in regula, se accepta credit imobiliar. Locatia este excelenta, una dintre cele mai centrale si vizate zone ale orasului, atat pentru inchiriat cat si pentru locui. Printre vecinatati se afla Scoala Gimnaziala nr 12, Scola Spectrum,alte scoli si gradinite, locuri de joaca pentru copii, Piata Tomis 3, City Mall, Parcul Tabacariei, Plaja Mamaia, banci, farmacii, magazine de cartier, patiserie, autoservire, pizzerie, Supermarket Profy, Supermarket Mega Image. Intrarea se face din Bulevardul Lapusneanu si Bulevardul Soveja, exista acces facil catre statii pentru mijloace de transport in comun care duc in toate zonele orasului, printre vecinatati se afla atat casa cat si blocuri. Pentru mai multe detalii sau pentru a stabili o viziinare nu ezitati sa ne contactati!!!
Citește mai mult Citește mai puțin
Electricitate Apă Gaz Canalizare

Detalii teren

ID anunț: X8I003053 Copiat! 274814956 Copiat!
Actualizat în: 17 Mai 2026
Tip tranzacție: De vânzare prin agent
Clasificare teren: Intravilan
Suprafață construită: 90 mp
Front stradal: 11 m
Nr. fronturi stradale: 1
Sursa coef. urbanistici: Certificat Urbanism
Lățime drum acces: 4 m
Regim înălțime: 4 m
Modalitate de plată: Cash sau Credit

Utilități

Destinație
Comercial Rezidențial Industrial De vacanță
Utilități
Curent trifazic Utilități în zonă
Amenajare străzi
Asfaltate Iluminat stradal Mijloace de transport în comun
Alte caracteristici
Teren împrejmuit Acces auto Oportunitate de investiție Construcție demolabilă
Comision
2%

Vecinătăți:

Scoala 12, Piata Tomis 3, City Mall, Supermarket Mega Image, Lydl Tomis 3

Alte detalii despre preț:

Pretul este ușor negociabil

Puncte de interes

Mijloace transport
bus-station
Dacia [100
Stații autobuz aprox. 237 m
bus-station
Statia Dacia; Linia 42
Stații autobuz aprox. 407 m
bus-station
Dacia [100
Stații autobuz aprox. 438 m
bus-station
Galeriile Soveja [102
Stații autobuz aprox. 489 m
Școală
kindergarten
Gradinita nr. 58 romano-turca Constanta
Gradinițe aprox. 60 m
kindergarten
Gradinita Nr.58
Gradinițe aprox. 87 m
school
Scoala Nr.12
Școli aprox. 153 m
university
Universitatea Andrei Saguna
Universități aprox. 1241 m
Recreere
supermarket
Carrefour Market
Supermarket aprox. 274 m
park
Dacia Fountain (en)
Parcuri aprox. 382 m
sports-ground
Stadionul de Rugby Farul Constanta
Terenuri sport aprox. 793 m
public-square
Piața Chiliei
Piețe publice aprox. 1263 m

Istoricul prețurilor

Acces la informații premium după autentificare
Login Gratuit

Proprietăți similare

Teren Construcții intravilan de 400 mp, în Dacia
173.000 €
Constanța, Dacia
400 mp teren
Construcții
Teren Construcții intravilan de 1000 mp, în Palazu Mare
175.000 €
Constanța, Palazu Mare
1.000 mp teren
Construcții
Teren Construcții intravilan de 920 mp, în Palazu Mare
174.800 €
Constanța, Palazu Mare
920 mp teren
Construcții

Detalii de contact

Abonează-te la newsletter să fii primul care primește cele mai noi recomandări de proprietăți și sfaturi de la experți.

CONTACT

Creează alertă

Salvează căutarea ca să primești pe email ultimele anunțuri publicate

Terenuri construcții de vânzare în zona Dacia, Constanța