Teren intravilan Sat Costi str. Cosarelor

61.500 €
68.56 € / mp

Costi, Județul Galați

Sup. teren:
897 mp
Tip:
Construcții
  • • Locație aproximativă

Descriere teren

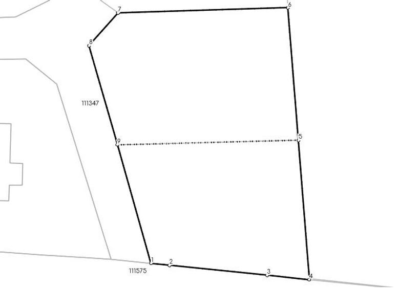
Agenția Imobiliară Domus vă propune spre cumpărare un teren intravilan generos, situat la intrarea în Sat Costi, cu o deschidere de 21 metri la strada Cosarelor. Acest teren beneficiază de toate utilitățile necesare: gaze, curent electric și apă, fiind pregătit pentru dezvoltare imobiliară. Terenul are o suprafață totală de 897 mp, din care 791 mp reprezinta suprafata exclusiva, iar 106 mp, in indiviziune, reprezinta drumul de acces privat. Proprietatea vine cu un proiect deja autorizat pentru construirea a două case individuale de tip P+1, fiecare având o suprafață utilă desfășurată de aproximativ 125 mp. Se accepta si schimburi imobiliare cu proprietati in oras.
Citește mai mult Citește mai puțin
Electricitate Apă Gaz

Detalii teren

ID anunț: X5TL03021 Copiat! 247557948 Copiat!
Actualizat în: 07 Aprilie 2025
Clasificare teren: Intravilan
Front stradal: 21 m
Nr. fronturi stradale: 2

Utilități

Amenajare străzi
Asfaltate

Puncte de interes

Școală
school
Scoala primara nr.1
Școli aprox. 924 m
Recreere
supermarket
Metro
Supermarket aprox. 1955 m

Proprietăți similare

Teren Construcții intravilan de 1020 mp, în Periferie
56.100 € + TVA
Galați, Periferie
1.020 mp teren
Construcții
Teren Construcții intravilan de 650 mp, în Exterior Nord
65.000 €
Galați, Exterior Nord
650 mp teren
Construcții
Teren Construcții intravilan de 4994.98 mp, în Nord
59.000 €
Județul Galați, Tecuci
4.994,98 mp teren
Construcții

Detalii de contact

Abonează-te la newsletter să fii primul care primește cele mai noi recomandări de proprietăți și sfaturi de la experți.

CONTACT

Creează alertă

Salvează căutarea ca să primești pe email ultimele anunțuri publicate

Terenuri construcții de vânzare în Costi, Județul Galați