COM 0% Terenuri de duplex/individuala cu AC | Covaci

47.000 €
67.14 € / mp

Covaci, Județul Timiș

Sup. teren:
700 mp
Tip:
Construcții
  • • Comision 0%
  • • Exclusivitate
  • • Locație aproximativă

Descriere teren

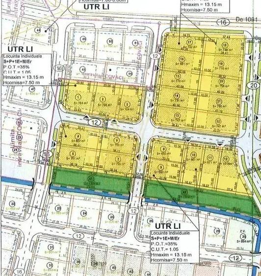
District Real Estate va propune spre vanzare parcele de teren intravilan, pretabile pentru constructia unui duplex sau a unei case individuale. Acestea se pot vinde impreuna cu autorizatia de constructie. Utilitati: Apa, Gaz, Curent, Drum pietruit Avem disponibile urmatoarele parcele: - Lot 4, 802mp, parcela pe colt, 55.000 EURO, cu autorizatie de construire - Lot 5, 751mp, front stradal 19,5ml, 63.600 EURO, cu urbanism - Lot 17, 702mp, parcela pe colt, 47.000 EURO, cu urbanism Preturile sunt cu tva de 21% inclus! Oferim consultanta si solutii financiare in vederea obtinerii unui credit imobiliar avantajos, cu ajutorul colaboratorilor nostrii. Pentru vizionari si alte detalii va stam la dispozitie.
Citește mai mult Citește mai puțin
Electricitate Apă Gaz Canalizare

Detalii teren

ID anunț: XD7L130GO Copiat! 270685322 Copiat!
Actualizat în: 02 Februarie 2026
Clasificare teren: Intravilan
Front stradal: 20.0 m

Utilități

Amenajare străzi
Pietruite
Comision
0%

Disponibilitate proprietate:

Imediat

Puncte de interes

Recreere
restaurant
Pensiunea Anette
Restaurant aprox. 1419 m

Proprietăți similare

Teren Construcții intravilan de 743 mp, în Covaci
44.600 €
Județul Timiș, Covaci
743 mp teren
Construcții
Teren Construcții intravilan de 743 mp, în Covaci
44.600 €
Județul Timiș, Covaci
743 mp teren
Construcții
Teren Construcții intravilan de 792 mp, în Covaci
48.990 €
Județul Timiș, Covaci
792 mp teren
Construcții

Detalii de contact

District Real Estate

Leonard Leucuta Consultant Imobiliar

District Real Estate
PRO

Abonează-te la newsletter să fii primul care primește cele mai noi recomandări de proprietăți și sfaturi de la experți.

CONTACT

Creează alertă

Salvează căutarea ca să primești pe email ultimele anunțuri publicate

Terenuri construcții de vânzare în Covaci, Județul Timiș