Teren autorizat casa individuala Floresti Il Milanese

112.000 €
373.33 € / mp

Florești, Județul Cluj

Sup. teren:
300 mp
Tip:
Construcții
  • • Locație aproximativă

Descriere teren

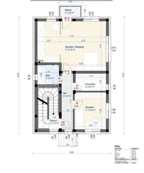
Oferim spre vanzare teren autorizat pentru casa individuala P+1 in ansamblu de 4 case individuale cu acces privat zona IL Milanese Floresti . Terenul are o suprafata de 300mp si se vinde cu autorizatie de constructie valabila. Constructia va avea o suprafata utila de 132mp plus terasa circulabila de 60mp Datorita compartimentarii , casa se poate imparti in 2 apartamente. • Parter: • Living spațios • Bucătărie modernă • Dormitor confortabil • Baie elegantă • Dressing generos • Hol luminos și casa scărilor • Etaj: • Dormitor principal cu dressing • Baie rafinată • Hol plin de lumină • Dormitor suplimentar cu dressing și balcon de 33 mp utili (poate fi împărțit în două dormitoare, dacă se dorește) • Terasa (ultimul nivel): • 60 mp circulabili ID Extern P149462
Citește mai mult Citește mai puțin
Electricitate Apă Gaz Canalizare

Detalii teren

ID anunț: XFUS1302P Copiat! 275407744 Copiat!
Actualizat în: 24 Mai 2026
Tip tranzacție: De vânzare prin agent
Clasificare teren: Intravilan
Modalitate de plată: Cash sau Credit

Utilități

Comision
2.5%

Puncte de interes

Mijloace transport
bus-station
Metro Nord N
Stații autobuz aprox. 299 m
bus-station
Metro Nord S
Stații autobuz aprox. 300 m
tram-station
Clabucet
Stații tramvai aprox. 1272 m
tram-station
Clabucet
Stații tramvai aprox. 1413 m
Școală
kindergarten
Gradinita Dumbrava Minunata
Gradinițe aprox. 1399 m
school
Școala Generală Nr. 29 / "Octavian Goga"
Școli aprox. 1717 m
school
Scoala Octavian Goga
Școli aprox. 1742 m
kindergarten
Grăd.Dumbrava minunată
Gradinițe aprox. 1772 m
Recreere
supermarket
Metro
Supermarket aprox. 233 m
mall
Complex comercial Polus
Mall aprox. 403 m
sports-ground
Teren Decathlon
Terenuri sport aprox. 442 m
park
Zonă de protectie - Compania de Apa Somes S.A.
Parcuri aprox. 682 m

Proprietăți similare

Teren Construcții intravilan de 700 mp, în Florești
115.000 €
Județul Cluj, Florești
700 mp teren
Construcții
Teren Construcții intravilan de 1025 mp, în Corușu
109.900 €
Județul Cluj, Corușu
1.025 mp teren
Construcții
Teren Construcții intravilan de 880 mp, în Feleacu
116.900 €
Județul Cluj, Feleacu
880 mp teren
Construcții

Detalii de contact

GREEN CASA IMOBILIARE

Coman Claudiu Master Broker

GREEN CASA IMOBILIARE
PRO

Abonează-te la newsletter să fii primul care primește cele mai noi recomandări de proprietăți și sfaturi de la experți.

CONTACT

Creează alertă

Salvează căutarea ca să primești pe email ultimele anunțuri publicate

Terenuri construcții de vânzare în Florești, Județul Cluj