1

C.A.Rosetti teren 451mp cu Autorizatie De Constructie pentru vila D+P+E 210mp

135.000 €
299.33 € / mp

Moara de Vânt, Iași

Sup. teren:
451 mp
Tip:
Construcții
  • • Locație aproximativă
  • • Vizionare prin apel video

Descriere teren

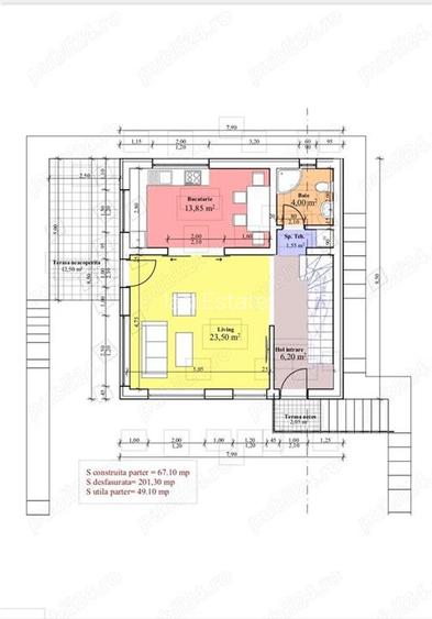
Ag. A.F.Imobiliare va propune spre vanzare, TEREN 451mp cu deschidere la str. asfaltata de 23m cu Autorizatie de Constructie pentru vila 210mp D+P+E ( se incepe imediat constructia) Terenul este amplasat pe str Miron Costin intre case cu acces din C.A.Rosetti sau prin str. Sararie, pe langa policlinica Arcadia. Utilitati pe teren: Apa, Gaz Metan, Curent Electric, Canalizare Pret 135000euro ( se accepta si un apartament + diferenta) Comision Ag.
Citește mai mult Citește mai puțin
Electricitate Apă Gaz Canalizare

Detalii teren

ID anunț: XFIR1303H Copiat! 275207561 Copiat!
Actualizat în: 06 Martie 2026
Clasificare teren: Intravilan
Front stradal: 23 m
Nr. fronturi stradale: 1

Utilități

Destinație
Rezidențial
Amenajare străzi
Asfaltate

Puncte de interes

Mijloace transport
bus-station
Statia "Piata Independentei", linia 6b,18,20,28,41,42,43,43c,41b,46
Stații autobuz aprox. 954 m
bus-station
Piata Independentei
Stații autobuz aprox. 962 m
tram-station
Statia "Universitate", linia 1,8,13
Stații tramvai aprox. 1036 m
train-station
Gara Iasi
Stații tren aprox. 1668 m
Școală
school
Colegiul National Mihai Eminescu - Curtea Domnească din Sărărie
Școli aprox. 451 m
school
baza de invatamant stomatologic
Școli aprox. 531 m
kindergarten
Gradinita cu program prelugit nr.8
Gradinițe aprox. 612 m
university
Universitatea Al.I.Cuza - Corp C
Universități aprox. 837 m
Recreere
sports-ground
Teren sportiv
Terenuri sport aprox. 389 m
park
Parc
Parcuri aprox. 504 m
supermarket
Supermagazin Copou
Supermarket aprox. 1320 m
mall
Galeriile Ștefan cel Mare
Mall aprox. 1466 m

Proprietăți similare

Teren Construcții intravilan de 1350 mp, în Tomești
135.000 €
Iași, Tomești
1.350 mp teren
Construcții
Teren Construcții intravilan de 447 mp, în Bucium
129.000 €
Iași, Bucium
447 mp teren
Construcții
Teren Construcții intravilan de 260 mp, în Central
125.000 €
Iași, Central
260 mp teren
Construcții

Detalii de contact

Iasi Estate

Dan Lontkowschi Consilier imobiliar

Iasi Estate

Abonează-te la newsletter să fii primul care primește cele mai noi recomandări de proprietăți și sfaturi de la experți.

CONTACT

Creează alertă

Salvează căutarea ca să primești pe email ultimele anunțuri publicate

Terenuri construcții de vânzare în zona Moara de Vânt, Iași