1

Teren 1450mp, front 16 ml, locatie ideala pt. casa - Jucu de Mijloc

69.600 €
48 € / mp

Jucu de Mijloc, Județul Cluj

Sup. teren:
1.450 mp
Tip:
Construcții
  • • Exclusivitate
  • • Locație exactă

Descriere teren

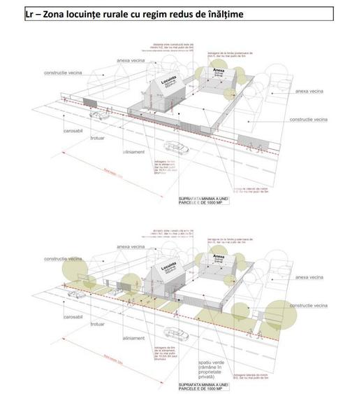
📍 Localizare: Jucu de Mijloc 📐 Suprafață: 1.450 mp teren intravilan 📏 Front stradal: 16 m 🗂 Încadrare urbanistică: UTR Lr – zonă de locuințe rurale 📊 Indicatori urbanistici maximi: Nu necesita PUZ Posibilitate construire casa tip duplex / 2 case cuplate pe o parcela POT: 30% CUT: 0.7 Regim de înălțime admis: D+P+M / S+P+M ✅ Detalii și avantaje: Teren drept și regulat, ideal pentru casă unifamilială sau duplex, conform reglementărilor urbanistice. Utilitățile sunt în apropiere: apă, canal, gaz și curent. Situat într-o zonă liniștită, dar în dezvoltare activă, cu acces facil spre drumul principal. Dimensiunile permit o proiectare eficientă a locuinței, cu grădină și spații exterioare generoase.
Citește mai mult Citește mai puțin
Electricitate Apă Gaz Canalizare

Detalii teren

ID anunț: XFJ61300R Copiat! 268766300 Copiat!
Actualizat în: 27 Februarie 2026
Clasificare teren: Intravilan
Front stradal: 16.0 m

Utilități

Destinație
Rezidențial
Utilități
Utilități în zonă
Amenajare străzi
Iluminat stradal Asfaltate
Alte caracteristici
Acces auto La șosea
Comision
standard

Disponibilitate proprietate:

Imediat

Puncte de interes

Recreere
sports-ground
Teren sportiv
Terenuri sport aprox. 851 m
restaurant
Han Km 17
Restaurant aprox. 1221 m

Proprietăți recomandate

Detalii de contact

JUCU ESTATE SOLUTIONS

Alex Oltean Expert Imobiliar Terenuri

JUCU ESTATE SOLUTIONS
PRO

Abonează-te la newsletter să fii primul care primește cele mai noi recomandări de proprietăți și sfaturi de la experți.

CONTACT

Creează alertă

Salvează căutarea ca să primești pe email ultimele anunțuri publicate

Terenuri construcții de vânzare în Jucu de Mijloc, Județul Cluj