1

Teren cu proiect in curs de autorizare, la 500m de partia Marisel

79.500 €
66.81 € / mp

Mărișel, Județul Cluj

Sup. teren:
1.190 mp
Tip:
Construcții
  • • Locație aproximativă

Descriere teren

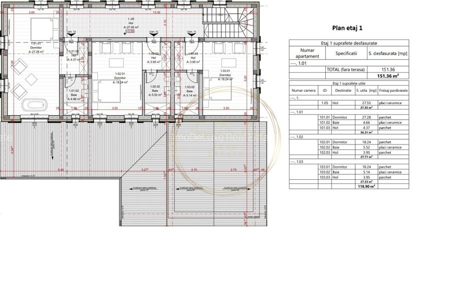
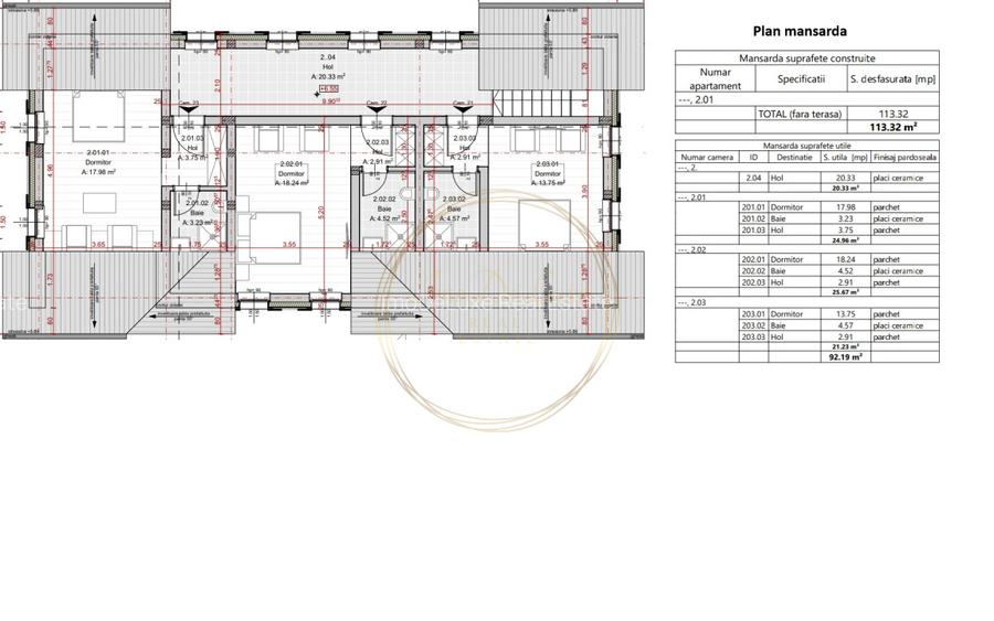
Exclusivitate! ImoDeLuxe Real Estate va propune spre vanzare un teren intravilan, cu proiect in curs de autorizare, pentru pensiune de 5 stele(conform schitelor), cu suprafata de 1190 mp, 2 front-uri (40 ml+30ml) si forma regulata, in Marisel, la distanta de 500 m de parcarea de langa partia de ski. Zona Marisel este cea mai cautata zona turistica din judetul Cluj. Aici se pot desfasura activitati precum ski/snowboarding, patinaj, sanius, drumetii, trasee montane, ciclism montan, calarie, etc. Alte facilitati pentru sezonul de iarna si vara: apres-ski, baruri, terase, restaurante, scoala de ski si snowboarding, pista biciclete, roller coaster montan(in curand), etc. Distanta fata de lacul Belis - Fantanesle este de 10 km, cu restaurante, zone de agrement si activitati acvatice. Terenul este drept, cu verdeata, in imediata apropiere a unei mici zone impadurite. Este situat in cea mai buna zona a localitatii, cu cateva cabane construite in apropiere si acces la drum public. Exista documentatie tehnica pentru construire agropensiune, imprejmuire, amenajari, racorduri si bransamente la utilitati conform PUZ cu HCL. Detalii tehnice constructie needificata(pensiune de 5 stele): - Regim de inaltime: P+1+M; - Suprafete utile constructie: 149.25mp(parter) + 118.90mp(etaj) + 92.19 mp(mansarda); La acestea se adauga terase, parcari, etc. Utiliati: - curent electric, la limita proprietatii; - apa este momentan in proiect la primarie(in maxim 2 ani) sau necesita saparea unui put(kit hidrofor); - internet; - in proiect la primarie: apa de la retea, gaz si canalizare. Pentru programarea unei vizionari si detalii suplimentare, nu ezitati sa ne contactati. ImoDeLuxe Real Estate
Citește mai mult Citește mai puțin
Electricitate Apă

Detalii teren

ID anunț: XEO11301H Copiat! 271776264 Copiat!
Actualizat în: 12 Noiembrie 2025
Clasificare teren: Intravilan
Front stradal: 70 m
Nr. fronturi stradale: 2
Lățime drum acces: 7 m

Utilități

Utilități
Utilități în zonă
Amenajare străzi
Asfaltate Pietruite
Alte caracteristici
Oportunitate de investiție Acces auto
Comision
2%

Vecinătăți:

Partia de ski Marisel

Proprietăți recomandate

Detalii de contact

ImoDeLuxe Real Estate

ImoDeLuxe Real Estate

ImoDeLuxe Real Estate
PRO

Abonează-te la newsletter să fii primul care primește cele mai noi recomandări de proprietăți și sfaturi de la experți.

CONTACT

Creează alertă

Salvează căutarea ca să primești pe email ultimele anunțuri publicate

Terenuri construcții de vânzare în Mărișel, Județul Cluj