1

Teren intravilan, 501 mp, Zona Nazna

40.000 €
79.84 € / mp

Nazna, Județul Mureș

Sup. teren:
501 mp
Tip:
Construcții
  • • Locație aproximativă

Descriere teren

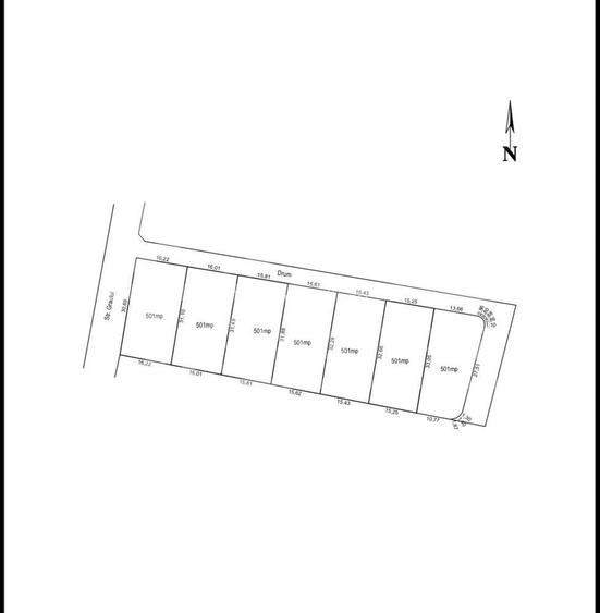
TLB Imobiliare vă propune spre vânzare terenuri intravilane situate în Nazna, în apropiere de Târgu Mureș, într-o zonă în plină dezvoltare, ideală pentru construcții rezidențiale. Proprietatea este împărțită în 7 parcele, fiecare având o suprafață de 501 mp, oferind oportunități excelente atât pentru construcție proprie, cât și pentru investiție. Suprafață parcelă 501 mp 7 parcele disponibile Teren intravilan Primele 2 parcele beneficiază deja de utilități trase, iar pentru restul parcelelor acestea urmează să fie realizate. Terenul se află în proces de obținere a autorizației de construcție. Zona este liniștită, cu acces facil și potențial ridicat de dezvoltare, fiind potrivită pentru construcția de locuințe individuale. Pret parcela: 40.000 euro Disponibil imediat! Va asteptam la vizionare!
Citește mai mult Citește mai puțin
Electricitate Apă Gaz Canalizare

Detalii teren

ID anunț: XF571300B Copiat! 275349416 Copiat!
Actualizat în: 17 Mai 2026
Tip tranzacție: De vânzare prin agent
Clasificare teren: Intravilan
Front stradal: 16.0 m
Nr. fronturi stradale: 1
Lățime drum acces: 6.0 m
Modalitate de plată: Cash sau Credit

Utilități

Utilități
Utilități în zonă
Amenajare străzi
Iluminat stradal Pietruite
Comision
standard

Disponibilitate proprietate:

Imediat

Puncte de interes

Mijloace transport
bus-station
Mureseni sat
Stații autobuz aprox. 1681 m
Recreere
sports-ground
Teren sportiv
Terenuri sport aprox. 1848 m

Proprietăți similare

Teren Construcții intravilan de 990 mp, în Unirii
41.000 €
Târgu Mureș, Unirii
990 mp teren
Construcții
Teren Construcții intravilan de 700 mp, în Sângeorgiu de Mureș
42.000 €
Județul Mureș, Sângeorgiu de Mureș
700 mp teren
Construcții
Teren Construcții intravilan de 472 mp, în Corunca
40.120 €
Județul Mureș, Corunca
472 mp teren
Construcții

Detalii de contact

TLB Imobiliare

Alex Sava Broker Imobiliar

TLB Imobiliare
PRO

Abonează-te la newsletter să fii primul care primește cele mai noi recomandări de proprietăți și sfaturi de la experți.

CONTACT

Creează alertă

Salvează căutarea ca să primești pe email ultimele anunțuri publicate

Terenuri construcții de vânzare în Nazna, Județul Mureș