Teren cu PUZ aprobat de vanzare, proiect 8 case, zona Gheorghe Doja, Oradea

225.000 €
52.93 € / mp

Dealuri Oradea, Oradea

Sup. teren:
4.251 mp
Tip:
Construcții
  • • Comision 0%
  • • Locație aproximativă

Descriere teren

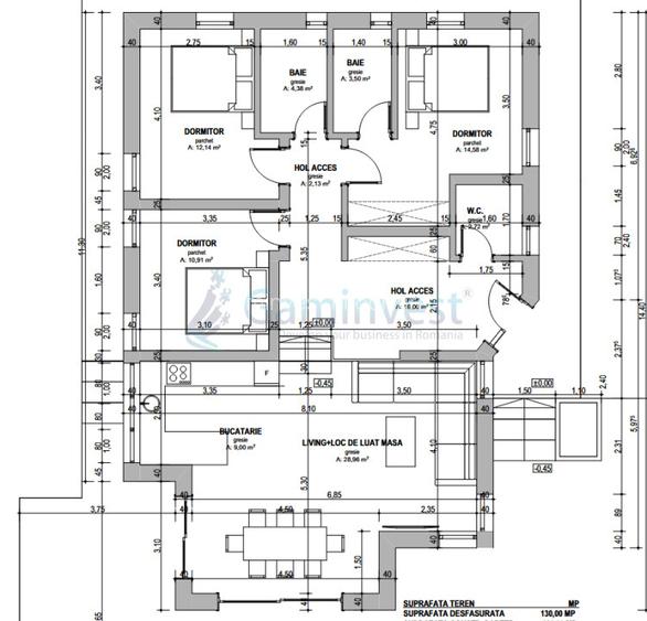
Gaminvest oferă spre vânzare un teren intravilan in Oradea, ideal pentru un proiect de dezvoltare imobiliară – 8 case individuale in zona Gheorghe Doja,– o zonă liniștită, dar în continuă expansiune, aflată la doar câteva minute de punctele de interes ale orașului. Terenul are o suprafață totală de 4.251 mp și beneficiază de deschidere la 3 străzi, cu acces facil din drum asfaltat, ceea ce oferă o flexibilitate excelentă în organizarea loturilor și în valorificarea investiției. Avantaje și caracteristici: PUZ aprobat pentru dezmembrarea în 4 loturi, cu posibilitatea construirii a 8 case individuale pe parter. Suprafață propusă pentru fiecare casă: aprox. 130 mp construiți, cu 3 dormitoare, 2 băi, hol și spații de depozitare – o compartimentare modernă și foarte căutată în piața rezidențială actuală, pe parcela cu o suprafata cuprinsa intre 450-470 mp, aproximativ Toate utilitățile sunt disponibile pe teren: apă, curent electric, gaz, canalizare. Această proprietate reprezintă o ocazie excelentă pentru investitori sau dezvoltatori imobiliari care caută un proiect clar, fezabil și cu potențial. Expertiză geotehnică realizată, ceea ce permite demararea rapidă a procesului de autorizare și construcție. Pret de vanzare propus de proprietar : 225000 euro,negociabil Agentia nu percepe comision de la cumparator!
Citește mai mult Citește mai puțin
Electricitate Apă Gaz Canalizare

Detalii teren

ID anunț: X56E030E2 Copiat! 274861755 Copiat!
Actualizat în: 24 Aprilie 2026
Tip tranzacție: De vânzare prin agent
Clasificare teren: Intravilan
Modalitate de plată: Cash sau Credit

Utilități

Comision
0%

Proprietăți similare

Teren Construcții intravilan de 2500 mp, în Oncea
212.800 €
Oradea, Oncea
2.500 mp teren
Construcții
Teren Construcții intravilan de 1022 mp, în Iosia
229.000 €
Oradea, Iosia
1.022 mp teren
Construcții
Teren Construcții intravilan de 4700 mp, în Dealuri Oradea
230.300 €
Oradea, Dealuri Oradea
4.700 mp teren
Construcții

Detalii de contact

Gaminvest Imobiliare

Ioana Hering Agent imobiliar

Gaminvest Imobiliare
PRO

Abonează-te la newsletter să fii primul care primește cele mai noi recomandări de proprietăți și sfaturi de la experți.

CONTACT

Creează alertă

Salvează căutarea ca să primești pe email ultimele anunțuri publicate

Terenuri construcții de vânzare în zona Dealuri Oradea, Oradea