Teren intravilan, 1013 mp, in Pasarea, Branesti

90.000 €
88.85 € / mp

Pasărea, Județul Ilfov

Sup. teren:
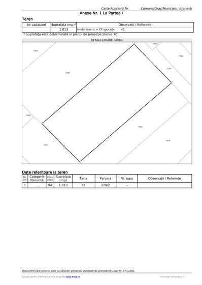
1.013 mp
Tip:
Construcții
  • • Exclusivitate
  • • Locație exactă

Descriere teren

Vă oferim spre vânzare un teren intravilan de 1013 mp, situat în localitatea Păsărea, Brănești, într-o zonă liniștită, ideală pentru construcția unei locuințe sau a unei case de vacanță. Caracteristici: - Utilități disponibile la proprietate: gaz și curent electric - Acces facil - Vecinătăți naturale: lac și pădure, perfect pentru iubitorii de natură și relaxare - Facilități în apropiere: grădiniță, școală, colegiu, magazine, piata - Zonă liniștită, fără circulație auto, ideală pentru familii și pentru cei care caută un refugiu departe de agitația urbană Un loc deosebit, unde natura și confortul se îmbină perfect! Contactați-ne pentru detalii și vizionare!
Citește mai mult Citește mai puțin
Electricitate Apă Gaz Canalizare

Detalii teren

ID anunț: XFRU03002 Copiat! 272472050 Copiat!
Actualizat în: 16 Martie 2026
Clasificare teren: Intravilan
Front stradal: 22 m
Nr. fronturi stradale: 1
P.O.T.: 30%
Sursa coef. urbanistici: Certificat Urbanism

Utilități

Destinație
Rezidențial De vacanță
Amenajare străzi
Asfaltate Pietruite
Alte caracteristici
Acces auto

Puncte de interes

Recreere
park
Loc de joaca
Parcuri aprox. 674 m
restaurant
Casa de Piatra
Restaurant aprox. 797 m

Proprietăți recomandate

Detalii de contact

SRN LIVING

Radu Cristian Consultant Imobiliar

SRN LIVING
PRO

Abonează-te la newsletter să fii primul care primește cele mai noi recomandări de proprietăți și sfaturi de la experți.

CONTACT

Creează alertă

Salvează căutarea ca să primești pe email ultimele anunțuri publicate

Terenuri construcții de vânzare în Pasărea, Județul Ilfov