Teren 1.000 mp, Popesti cu autorizatie de constructie..

116.000 €
116 € / mp

Popești, Județul Cluj

Sup. teren:
1.000 mp
Tip:
Construcții
  • • Locație aproximativă

Descriere teren

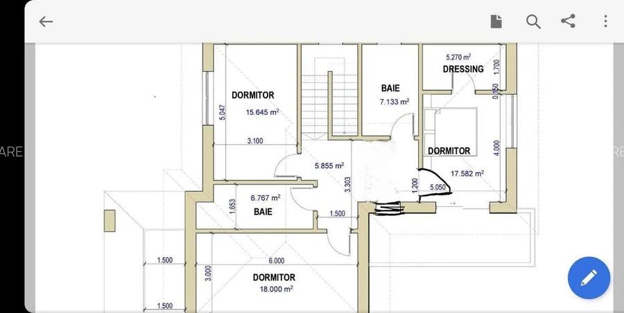
GreenCasa va propune un teren Intravilan de Vânzare în Localitatea Popești Detalii Generale: Localizare: Localitatea Popești Suprafață: 1000 mp Tip: Teren intravilan Situație: Situat între case Utilități: Gaz Canalizare Curent electric Apă Drum privat Facilități și Avantaje: Proiect de Casă: Inclus în preț Autorizații de Construcție: Toate autorizațiile necesare sunt obținute Pregătit pentru Construcție: Totul este pregătit pentru începerea lucrărilor Descriere Finală: Ofer spre vânzare un teren intravilan în localitatea Popești, cu o suprafață de 1000 mp. Terenul este situat într-o zonă liniștită, între case, și beneficiază de toate utilitățile necesare la poartă: gaz, canalizare, curent electric, apă și un drum privat. Odată cu terenul, se vinde și proiectul pentru casă, împreună cu toate autorizațiile de construcție necesare, astfel încât puteți începe imediat lucrările de construcție. ID Extern P93049
Citește mai mult Citește mai puțin
Electricitate Apă Gaz Canalizare

Detalii teren

ID anunț: XFUS1301N Copiat! 275382745 Copiat!
Actualizat în: 01 Aprilie 2026
Clasificare teren: Intravilan

Utilități

Comision
2%

Proprietăți similare

Teren Construcții intravilan de 1400 mp, în Popești
105.000 €
Județul Cluj, Popești
1.400 mp teren
Construcții
Teren Construcții intravilan de 500 mp, în Popești
112.500 €
Județul Cluj, Popești
500 mp teren
Construcții
Teren Construcții intravilan de 1100 mp, în Popești
120.000 €
Județul Cluj, Popești
1.100 mp teren
Construcții

Detalii de contact

GREEN CASA IMOBILIARE

Bogdan Cenan Manager

GREEN CASA IMOBILIARE
PRO

Abonează-te la newsletter să fii primul care primește cele mai noi recomandări de proprietăți și sfaturi de la experți.

CONTACT

Creează alertă

Salvează căutarea ca să primești pe email ultimele anunțuri publicate

Terenuri construcții de vânzare în Popești, Județul Cluj