Teren Duplex/Casa individuala cu autorizatie, in Popesti

65.000 € + TVA
183.10 € + TVA / mp

Popești, Județul Cluj

Sup. teren:
355 mp
Tip:
Construcții
  • • Locație aproximativă

Descriere teren

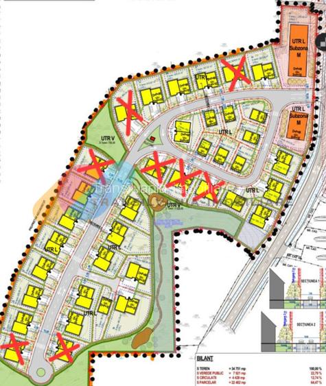
Vă propunem spre vânzare terenuri destinate construcției de unități duplex și case individuale, situate la intrarea în Popești, într-un viitor ansamblu rezidențial. Detalii teren: Suprafață totală: 34.700 mp PUZ aprobat și parcelare realizată Parcelele disponibile: De la 281 mp utili pentru case individuale Minimum 500 mp pentru duplexuri Ansamblul rezidențial va cuprinde: 68 de unități locative, dintre care: 60 de duplexuri 8 case individuale Avantaje: Asistență pentru autorizarea parcelelor Zonă în plină dezvoltare, cu potențial ridicat de investiție Acces facil și infrastructură în curs de amenajare Pentru detalii suplimentare și vizionări, vă stăm la dispoziție! Id extern: P3546
Citește mai mult Citește mai puțin
Electricitate Apă Gaz Canalizare

Detalii teren

ID anunț: XF36130E9 Copiat! 275400836 Copiat!
Actualizat în: 03 Aprilie 2026
Clasificare teren: Intravilan

Utilități

Amenajare străzi
Pietruite
Alte caracteristici
Acces auto
Comision
1%

Puncte de interes

Școală
school
Scoala cu Clasele I-VIII Baciu
Școli aprox. 1982 m
Recreere
sports-ground
Teren sportiv
Terenuri sport aprox. 1984 m

Proprietăți similare

Teren Construcții intravilan de 1045 mp, în Popești
67.900 €
Județul Cluj, Popești
1.045 mp teren
Construcții
Teren Construcții intravilan de 600 mp, în Popești
70.000 €
Județul Cluj, Popești
600 mp teren
Construcții
Teren Construcții intravilan de 1100 mp, în Popești
67.000 €
Județul Cluj, Popești
1.100 mp teren
Construcții

Detalii de contact

Transilvania-imobiliare

Eduard Emanuel Farcas

Transilvania-imobiliare
PRO

Abonează-te la newsletter să fii primul care primește cele mai noi recomandări de proprietăți și sfaturi de la experți.

CONTACT

Creează alertă

Salvează căutarea ca să primești pe email ultimele anunțuri publicate

Terenuri construcții de vânzare în Popești, Județul Cluj