Teren Duplex/Casa individuala cu autorizatie, in Popesti

89.990 € + TVA
163.62 € + TVA / mp

Popești, Județul Cluj

Sup. teren:
550 mp
Tip:
Construcții
  • • Locație aproximativă

Descriere teren

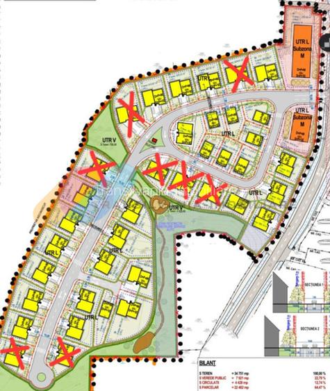
Vă propunem spre vânzare terenuri destinate construcției de unități duplex și case individuale, situate la intrarea în Popești, într-un viitor ansamblu rezidențial. Detalii teren: Suprafață totală: 34.700 mp PUZ aprobat și parcelare realizată Parcelele disponibile: De la 350 mp utili pentru case individuale Minimum 550 mp pentru duplexuri Ansamblul rezidențial va cuprinde: 68 de unități locative, dintre care: 60 de duplexuri 8 case individuale Avantaje: Asistență pentru autorizarea parcelelor Zonă în plină dezvoltare, cu potențial ridicat de investiție Acces facil și infrastructură în curs de amenajare Pentru detalii suplimentare și vizionări, vă stăm la dispoziție! Id extern: P806
Citește mai mult Citește mai puțin
Electricitate Apă Gaz Canalizare

Detalii teren

ID anunț: XF36130DE Copiat! 275377283 Copiat!
Actualizat în: 30 Martie 2026
Clasificare teren: Intravilan

Utilități

Amenajare străzi
Pietruite
Alte caracteristici
Acces auto

Puncte de interes

Școală
school
Scoala cu Clasele I-VIII Baciu
Școli aprox. 1982 m
Recreere
sports-ground
Teren sportiv
Terenuri sport aprox. 1984 m

Proprietăți similare

Teren Construcții intravilan de 848 mp, în Popești
98.500 €
Județul Cluj, Popești
848 mp teren
Construcții
Teren Construcții intravilan de 1000 mp, în Popești
82.000 €
Județul Cluj, Popești
1.000 mp teren
Construcții
Teren Construcții intravilan de 620 mp, în Popești
85.000 €
Județul Cluj, Popești
620 mp teren
Construcții

Detalii de contact

Transilvania-imobiliare

Eduard Emanuel Farcas

Transilvania-imobiliare
PRO

Abonează-te la newsletter să fii primul care primește cele mai noi recomandări de proprietăți și sfaturi de la experți.

CONTACT

Creează alertă

Salvează căutarea ca să primești pe email ultimele anunțuri publicate

Terenuri construcții de vânzare în Popești, Județul Cluj