Oportunitate PUD Aprobat – Acces Imediat Centura Bucuresti

440.510 €
145 € / mp

Rudeni, Județul Ilfov

Sup. teren:
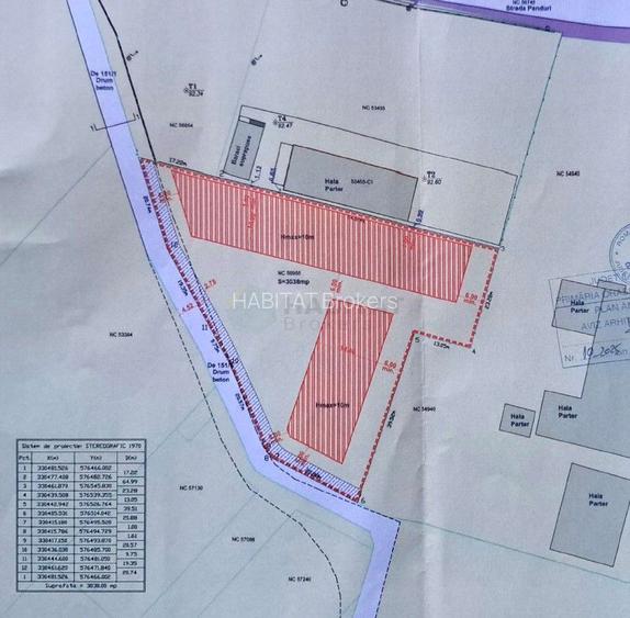
3.038 mp
Tip:
Construcții
  • • Comision 0%
  • • Exclusivitate
  • • Locație aproximativă

Descriere teren

Vă propunem spre vânzare un teren intravilan în suprafață de 3.038 mp, situat strategic în zona Rudeni – Chitila, unul dintre cele mai dinamice hub-uri logistice din nord-vestul Bucureștiului. Marele avantaj al acestei proprietăți este PUD-ul (Plan Urbanistic de Detaliu) deja aprobat, ceea ce elimină timpii de așteptare birocratici și permite demararea rapidă a proiectului. Localizare Strategică: Amplasat în imediata vecinătate a Șoselei de Centură, terenul oferă acces facil către A1 (București-Pitești), DN7 și viitoarea autostradă A0. Este ideal pentru afaceri care depind de logistică și transport rapid. Ready-to-Build: Existența PUD-ului aprobat reprezintă o economie majoră de timp (aproximativ 6-12 luni) și bani pentru viitorul proprietar. Accesibilitate: Accesul la șosea se face din imediata vecinătate, facilitând intrarea camioanelor sau a utilajelor de mare tonaj. Suprafață Generoasă: Cei 3.038 mp oferă o amprentă la sol suficientă pentru o hală de dimensiuni medii, platformă betonată sau spațiu mixt (birouri + depozitare). Proiectul prevede construirea a doua hale. Pentru mai multe informatii va recomandam sa ne contactati telefonic. ___________________________________________________________________________ ℹ️Buget insuficient? La HABITAT Brokers ai serviciu de finanțare inclus: Identificăm tipul de credit ideal. Simulăm rata. Comparăm ofertele actuale din piață. Depunem dosarul și stăm în legătură cu banca până la aprobare. Totul cu ZERO costuri suplimentare. Contactează-ne azi pentru o analiză gratuită!
Citește mai mult Citește mai puțin
Electricitate Apă Canalizare

Detalii teren

ID anunț: X4CJ1302L Copiat! 274745808 Copiat!
Actualizat în: 09 Martie 2026
Clasificare teren: Intravilan
Front stradal: 90.0 m
Nr. fronturi stradale: 1
Lățime drum acces: 7.0 m

Utilități

Utilități
Utilități în zonă
Amenajare străzi
Iluminat stradal Mijloace de transport în comun Asfaltate Betonate
Alte caracteristici
Acces auto Parcelabil
Comision
0%

Vecinătăți:

Soseaua de Centura, Chitila, A0

Disponibilitate proprietate:

Imediat

Puncte de interes

Mijloace transport
bus-station
Gara Chiajna
Stații autobuz aprox. 1609 m
bus-station
Statia Depou Legume Chiajna, linia 405,421
Stații autobuz aprox. 1666 m
Școală
school
Rudeni School (en)
Școli aprox. 1027 m
school
Scoala "ALEXANDRU ODOBESCU" Chiajna (en)
Școli aprox. 1922 m
school
Cladirea scolii nr 1 (en)
Școli aprox. 1935 m
Recreere
sports-ground
Stadionul Concordia Chiajna
Terenuri sport aprox. 1462 m
park
Parc
Parcuri aprox. 1564 m

Proprietăți recomandate

Detalii de contact

HABITAT Brokers

Marius Cojocariu Sr. Broker - Account Manager

5.00(5 review-uri)

HABITAT Brokers
PRO

Abonează-te la newsletter să fii primul care primește cele mai noi recomandări de proprietăți și sfaturi de la experți.

CONTACT

Creează alertă

Salvează căutarea ca să primești pe email ultimele anunțuri publicate

Terenuri construcții de vânzare în Rudeni, Județul Ilfov