Teren intravilan 2726 mp in Tocile pretabil casa de vacanta

131.000 €
48.06 € / mp

Sadu, Județul Sibiu

Sup. teren:
2.726 mp
Tip:
Construcții
  • • Comision 0%
  • • Locație aproximativă
  • • Vizionare prin apel video

Descriere teren

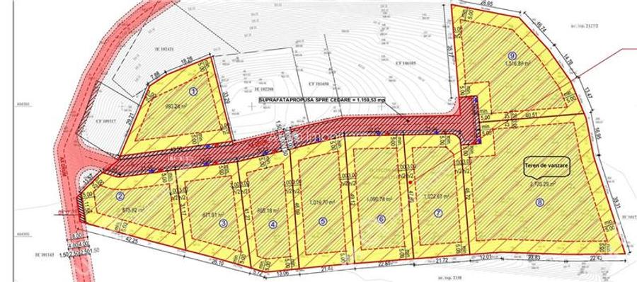
Va propun spre vanzare un teren intravilan cu o suprafata generoasa de 2726 mp, situat in localitatea Tocile, una dintre cele mai cautate locatii pentru dezvoltarea de case de vacanta si pensiuni turistice. Proprietatea este parte dintr-un ansamblu de 9 parcele, toate avand deschidere la acelasi drum de acces privat cu latimea de 8 metri, drum prevazut in documentatia PUZ aferenta zonei. Zona se remarca prin liniste, peisaje naturale si un cadru ideal pentru cei care isi doresc o locuinta intr-un mediu curat, aerisit si neaglomerat, dar totodata aflat la doar cateva minute de municipiul Sibiu. Conform Regulamentului Local de Urbanism aferent PUZ-ului se pot realiza constructii cu functiuni turistice si de recreere, precum case de vacanta, pensiuni, bungalow-uri si anexe aferente acestora, cu respectarea urmatorilor indici urbanistici si conditii tehnice: Regim de inaltime admis: P+E (inaltime maxima la coama 11 m, streasina 7 m) POT maxim: 35% CUT maxim: 0.7 Retrageri fata de limite: minim 5–7 m la strada, minim 3 m lateral spate Suprafata minima a unei parcele construibile: 350 mp Utilizari admise: case de vacanta, pensiuni turistice, bungalow-uri, servicii turistice, anexe Obligativitatea amenajarii de spatii verzi minime: 30% din teren Toate locurile de parcare trebuie realizate pe parcela proprie Drumul de acces este inclus in proiectul de dezmembrare, are 8 metri latime si urmeaza sa fie notat in cartea funciara ca drum cu servitute de trecere pentru toate parcelele din ansamblu, conform cerintelor urbanistice. Utilitatile se afla la aproximativ 200 de metri de teren, putand fi extinse in mod organizat si eficient, fie individual, fie prin asociere cu ceilalti proprietari din zona. Documentatia urbanistica mentioneaza racordarea la reteaua electrica si de apa-canal existenta. Terenul are o forma regulata, este bine proportionat si ofera posibilitatea configurarii optime a unei constructii, beneficiind de o deschidere generoasa si de o pozitionare excelenta fata de drum. Zona este in plina dezvoltare, cu potential mare atat pentru investitii turistice, cat si pentru constructia unei locuinte permanente intr-o zona retrasa si ferita de trafic. Valoarea terenului est de 131.000 euro.
Citește mai mult Citește mai puțin
Electricitate Apă Canalizare

Detalii teren

ID anunț: XC741305U Copiat! 274744000 Copiat!
Actualizat în: 06 Martie 2026
Clasificare teren: Intravilan
Front stradal: 40 m
Nr. fronturi stradale: 1

Utilități

Destinație
Rezidențial
Amenajare străzi
De pământ
Alte caracteristici
Oportunitate de investiție Acces auto
Comision
0%

Puncte de interes

Recreere
sports-ground
Teren sportiv
Terenuri sport aprox. 757 m
sports-ground
Teren sportiv
Terenuri sport aprox. 763 m
sports-ground
Teren sportiv
Terenuri sport aprox. 1672 m

Proprietăți recomandate

Detalii de contact

Atum Imobiliare

Marian Floricu Director General

Atum Imobiliare
PRO

Abonează-te la newsletter să fii primul care primește cele mai noi recomandări de proprietăți și sfaturi de la experți.

CONTACT

Creează alertă

Salvează căutarea ca să primești pe email ultimele anunțuri publicate

Terenuri construcții de vânzare în Sadu, Județul Sibiu