Sanandrei Teren 35 Hectare - PUZ Aprobat | Centura - Autostrada - Hale

8.750.000 €
25 € / mp

Sânandrei, Județul Timiș

Sup. teren:
350.000 mp
Tip:
Construcții
  • • Locație aproximativă

Descriere teren

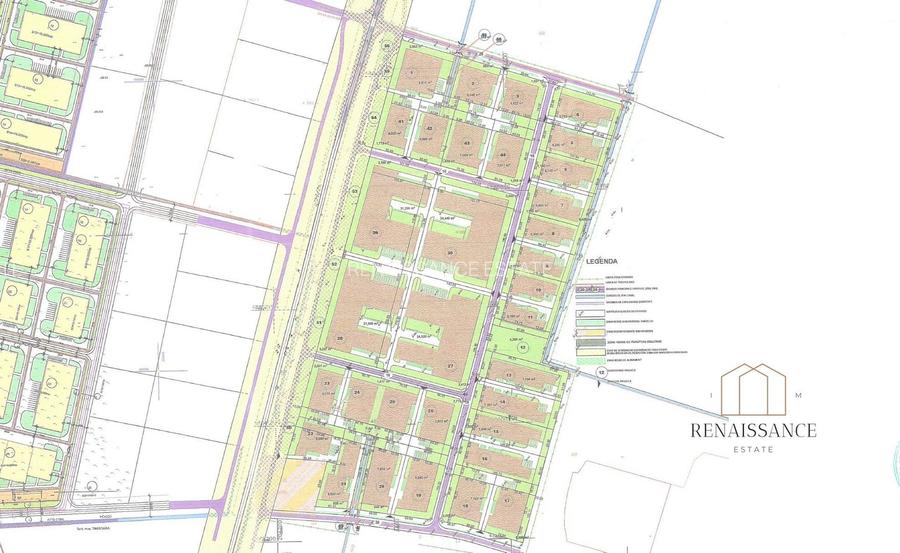
Renaissance Estate va ofera spre vanzare un teren extravilan cu suprafata totala de 350.400 mp (35 ha), situat in zona Sanandrei, cu acces facil catre Centura Timisoara si Autostrada A1, chiar la noua coborare. Proprietatea este formata din 3 parcele distincte, cu CF-uri individuale: 70.000 mp 53.600 mp 222.800 mp Amplasamentul este unul strategic, potrivit pentru dezvoltari industriale, logistice si comerciale de anvergura. Parametri urbanistici PUZ APROBAT CUT maxim: 1,5 POT maxim: 55% Regim maxim de inaltime: S+P+2E Inaltime maxima la cornisa admisa: 12 m Functiune principala: activitati de productie cu caracter nepoluant, depozitare, comert si prestari servicii productie Avantaje investitionale Suprafata extinsa (35 ha), cu loturi comasabile, ce permit un masterplan unitar sau dezvoltare etapizata Accesibilitate excelenta spre Timisoara si Centura – ideala pentru fluxuri logistice si productie Parametri urbanistici generosi, ce permit constructii ample si flexibile ca destinatie Zona in plina dezvoltare cu potential ridicat pentru investitii industriale si logistice Toate utilitatile in zona Posibile scenarii de dezvoltare Parc logistic / hale industriale (module de 5.000 – 20.000 mp) Hub de productie nepoluanta, cu spatii de birouri si servicii integrate Centre comerciale en-gros sau servicii conexe productiei Platforme de depozitare si distributie regionala, cu acces TIR facil Situatie juridica & tranzactionare Proprietatea este formata din 3 CF-uri distincte, fara sarcini Documentatie cadastrala completa, disponibila pentru due diligence Vanzare directa – teren disponibil imediat Pret: 25€/mp - negociabil Contact: RENAISSANCE ESTATE SRL Reprezentant: Iulia Macovei Pentru detalii suplimentare, harti, parametri tehnici si vizionari, va stam la dispozitie.
Citește mai mult Citește mai puțin
Electricitate Apă Gaz Canalizare

Detalii teren

ID anunț: XET513011 Copiat! 270312090 Copiat!
Actualizat în: 10 Martie 2026
Clasificare teren: Extravilan
Nr. fronturi stradale: 1

Utilități

Destinație
Comercial
Amenajare străzi
Iluminat stradal Mijloace de transport în comun Asfaltate
Comision
standard

Disponibilitate proprietate:

Imediat

Proprietăți recomandate

Detalii de contact

RENAISSANCE ESTATE

Iulia Macovei Manager

RENAISSANCE ESTATE
PRO

Abonează-te la newsletter să fii primul care primește cele mai noi recomandări de proprietăți și sfaturi de la experți.

Feedback apel

CONTACT

Creează alertă

Salvează căutarea ca să primești pe email ultimele anunțuri publicate

Terenuri construcții de vânzare în Sânandrei, Județul Timiș