Teren padure Baneasa Jandarmeriei

500.000 €
400 € / mp

Băneasa, București

Sup. teren:
1.250 mp
Tip:
Construcții
  • • Locație exactă

Descriere teren

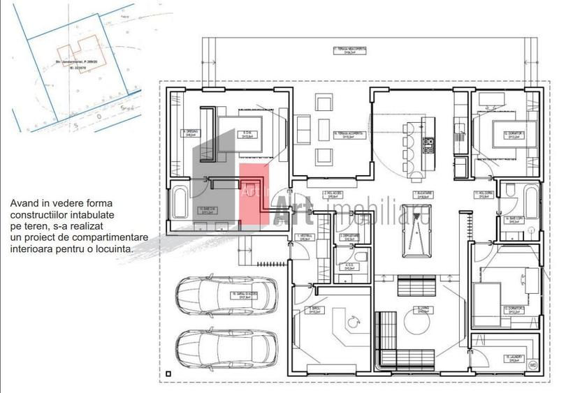
Teren de vânzare în Sector 1 – Locație exclusivistă, ideal pentru locuință! chiar in Padure Adresă: Str. Jandarmeriei, Sector 1, București Suprafață: 1.250 mp – intravilan, construibil Deschidere: 33 ml la strada Jandarmeriei Construcții existente: Două anexe intabulate (194 mp) La acest moment pe teren mai exista fundatia lor. Teren liber, fără vegetație Caracteristici urbanistice: POT: 15% CUT: 0.2 Regim de înălțime permis: P+1 Proiect de compartimentare interioară deja realizat pentru locuință! Avantaje: Zonă premium, liniștită, cu acces rapid către DN1, Băneasa și pădurea Băneasa Ideal pentru construcția unei vile de lux sau reconfigurarea construcțiilor existente Investiție solidă într-o zonă în plină dezvoltare
Citește mai mult Citește mai puțin
Electricitate Apă Gaz Canalizare

Detalii teren

ID anunț: XCBC1315C Copiat! 275327999 Copiat!
Actualizat în: 21 Martie 2026
Clasificare teren: Intravilan
Suprafață construită: 194 mp
Front stradal: 33.0 m
Nr. fronturi stradale: 1

Utilități

Amenajare străzi
Iluminat stradal Mijloace de transport în comun Asfaltate
Alte caracteristici
Acces auto La șosea
Comision
standard

Vecinătăți:

Poligom Jandarmerie

Disponibilitate proprietate:

Imediat

Puncte de interes

Mijloace transport
bus-station
Statia Jandarmeriei, linia 261
Stații autobuz aprox. 306 m
bus-station
Statia Atlasului, linia 261
Stații autobuz aprox. 457 m
bus-station
Statia Oaspetilor, linia 261
Stații autobuz aprox. 660 m
bus-station
Statia Bulevardul Apicultorilor linii : 205,261
Stații autobuz aprox. 693 m
Școală
school
Scoala Generala Nr. 8
Școli aprox. 464 m
university
Universitatea Bioterra
Universități aprox. 1007 m
university
Universitatea Biotera
Universități aprox. 1007 m
school
Universitatea Biotera
Școli aprox. 1169 m
Recreere
sports-ground
Teren sportiv
Terenuri sport aprox. 535 m
restaurant
Vatra Noua
Restaurant aprox. 670 m
park
Parc
Parcuri aprox. 1306 m
supermarket
SELGROS Baneasa
Supermarket aprox. 1721 m

Proprietăți similare

Teren Construcții intravilan de 660 mp, în Băneasa
462.000 €
București, Băneasa
660 mp teren
Construcții
Teren Construcții intravilan de 4580 mp, în Băneasa
500.000 € + TVA
București, Băneasa
4.580 mp teren
Construcții
Teren Construcții intravilan de 741 mp, în Băneasa
490.000 €
București, Băneasa
741 mp teren

Detalii de contact

Art Imobiliare

Jean Vlad Broker

Art Imobiliare
PRO

Abonează-te la newsletter să fii primul care primește cele mai noi recomandări de proprietăți și sfaturi de la experți.

CONTACT

Creează alertă

Salvează căutarea ca să primești pe email ultimele anunțuri publicate

Terenuri construcții de vânzare în zona Băneasa, Sector 1