Sos Chitilei-Renasterii,238mp,teren+casa,certificat urbanism,direct proprietar

119.500 €
502.10 € / mp

Chitila, București

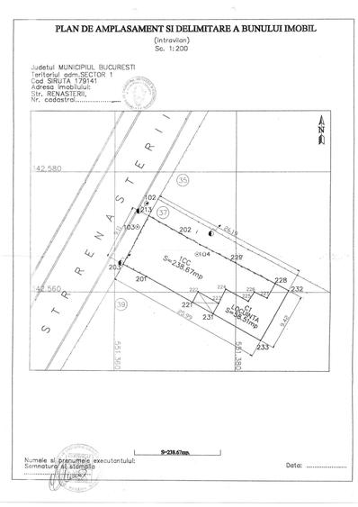
Sup. teren:
238 mp
Tip:
Construcții
  • • Comision 0%
  • • Locație exactă

Descriere teren

Direct de la proprietar fara comision teren cu casa demolabila sau cu autorizare prin consolidare si extindere a casei existente, 238mp ideal casa/vila noua Terenul este situat in zona Soseaua Chitilei - Strada Renasterii. Exista certificat de urbanism pentru construire valabil Suprafata teren = 238mp Deschidere teren = 9.11ml Suprafata casa existenta = 58.51mp Indicatori urbanistici : POT max = 45%; CUTmax=0.9(pentru P+1E}; CUTmax=1.3(pentru P+2E) Direct de la proprietar fara comision teren cu autorizare prin consolidare si extindere a casei existente, 238mp ideal casa/vila noua Terenul este situat in zona Soseaua Chitilei - Strada Renasterii. Exista certificat de urbanism pentru construire valabil. Proprietatea beneficiaza de utiliati complete Suprafata teren = 238mp Deschidere teren = 9.11ml Suprafata casa existenta = 58.51mp Indicatori urbanistici : POT max = 45%; CUTmax=0.9(pentru P+1E}; Casa P+1 cu amprenta 107mp,Total mp casa= 214mp CUTmax=1.3(pentru P+2E);Casa P+2 cu amprenta 107,Total mp casa 309mp Pret : 119500Euro
Citește mai mult Citește mai puțin
Electricitate Apă Gaz Canalizare

Detalii teren

ID anunț: X7P40300J Copiat! 274716156 Copiat!
Actualizat în: 25 Martie 2026
Clasificare teren: Intravilan
Suprafață construită: 60 mp
Front stradal: 9.11 m
Nr. fronturi stradale: 1
P.O.T.: 45%
C.U.T.: 1.3
Sursa coef. urbanistici: Certificat Urbanism
Regim înălțime: 2 m

Utilități

Destinație
Rezidențial
Amenajare străzi
Asfaltate Mijloace de transport în comun Iluminat stradal
Alte caracteristici
Construcție demolabilă Acces auto Teren împrejmuit
Comision
0%

Vecinătăți:

Scoala,Gradinita,Supermarket,Piata,Transport in comun,Metrou la 12 min de mers pe jos.

Alte detalii despre preț:

Negociabil

Puncte de interes

Mijloace transport
bus-station
Statia Minerva, linia N118, 45
Stații autobuz aprox. 142 m
tram-station
Minerva
Stații tramvai aprox. 142 m
metro-station
Metrorex. Stația Jiului (M4)(2011)
Stații metrou aprox. 531 m
train-station
Gara - Halta Pajura - zisa si Triaj
Stații tren aprox. 1033 m
Școală
school
Scoala Nr. 182 Alexandru Costescu
Școli aprox. 219 m
school
Scoala Gimnaziala Nr. 182
Școli aprox. 219 m
kindergarten
Gradinita 97
Gradinițe aprox. 270 m
kindergarten
Gradinita cu program prelungit Winnie
Gradinițe aprox. 1092 m
Recreere
supermarket
Express
Supermarket aprox. 342 m
park
Parc
Parcuri aprox. 620 m
sports-ground
Teren sportiv
Terenuri sport aprox. 915 m
restaurant
"La linie", drink&gossip
Restaurant aprox. 944 m

Proprietăți recomandate

Detalii de contact

EL NIDO PROJECT

Administrator

3.67(3 review-uri)

EL NIDO PROJECT

Abonează-te la newsletter să fii primul care primește cele mai noi recomandări de proprietăți și sfaturi de la experți.

CONTACT

Creează alertă

Salvează căutarea ca să primești pe email ultimele anunțuri publicate

Terenuri construcții de vânzare în zona Chitila, Sector 1