2

Teren cu casa demolabila Bucurestii Noi Strada Prahova

235.000 €
498.94 € / mp

Chitila, București

Sup. teren:
471 mp
Tip:
Construcții
  • • Comision 0%
  • • Exclusivitate
  • • Locație exactă

Descriere teren

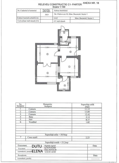
Va oferim spre vanzare un teren in suprafata de 471 mp, cu o casa demolabila, situat pe strada Prahova la nr 10. Terenul are un front strada de 11.9 metri liniari. Casa este formata din demisol si parter si a fost construita in anul 1935 -se poate demola sau se poate consolida, in zona fiind constructii cu regim de inaltime de P+5. Va asteptam la vizionare.
Citește mai mult Citește mai puțin
Electricitate Apă Gaz Canalizare

Detalii teren

ID anunț: XBE51302J Copiat! 274576707 Copiat!
Actualizat în: 08 Februarie 2026
Tip tranzacție: De vânzare prin agent
Clasificare teren: Intravilan
Suprafață construită: 108 mp
Front stradal: 11.9 m
Nr. fronturi stradale: 1
Modalitate de plată: Cash sau Credit

Utilități

Amenajare străzi
Iluminat stradal Mijloace de transport în comun Asfaltate
Alte caracteristici
Acces auto Construcție demolabilă
Comision
0%

Vecinătăți:

Soseaua Chitilei Bucurestii Noi 1 Mai

Disponibilitate proprietate:

Imediat

Puncte de interes

Mijloace transport
bus-station
Soseaua Chitilei
Stații autobuz aprox. 166 m
tram-station
Bulevardul Bucurestii Noi
Stații tramvai aprox. 172 m
metro-station
Stație metrou "Jiului"
Stații metrou aprox. 455 m
train-station
Gara - Halta Pajura - zisa si Triaj
Stații tren aprox. 1553 m
Școală
school
Scoala Nr. 182 Alexandru Costescu
Școli aprox. 448 m
school
Scoala Gimnaziala Nr. 182
Școli aprox. 448 m
kindergarten
Gradinita 97
Gradinițe aprox. 530 m
university
Facultatea de Biotehnologii
Universități aprox. 1789 m
Recreere
supermarket
Pronto Expres
Supermarket aprox. 151 m
park
Parc
Parcuri aprox. 583 m
sports-ground
Teren sportiv
Terenuri sport aprox. 714 m
restaurant
La Hussein
Restaurant aprox. 894 m

Proprietăți similare

Teren Construcții de 514 mp, în Dămăroaia
220.000 €
București, Dămăroaia
514 mp teren
Construcții
Teren Construcții intravilan de 826 mp, în Băneasa
248.800 €
București, Băneasa
826 mp teren
Construcții
Teren Construcții intravilan de 2000 mp, în Pipera
240.000 €
București, Pipera
2.000 mp teren
Construcții

Detalii de contact

TRIMBITASU ESTATE

Ana Maria Radu Agent Imobiliar

TRIMBITASU ESTATE
PRO

Abonează-te la newsletter să fii primul care primește cele mai noi recomandări de proprietăți și sfaturi de la experți.

CONTACT

Creează alertă

Salvează căutarea ca să primești pe email ultimele anunțuri publicate

Terenuri construcții de vânzare în zona Chitila, Sector 1