11

TEREN DAMAROAIA | DESCHIDERE 12M | PROIECT PROPUS

280.000 €
555.56 € / mp

Dămăroaia, București

Sup. teren:
504 mp
Tip:
Construcții
  • • Locație aproximativă

Descriere teren

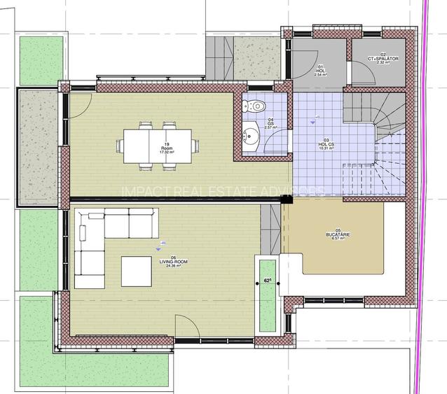
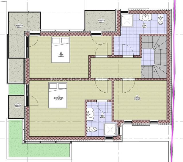
Vă prezentăm un teren cu potențial excelent, situat în zona Dămăroaia, o zonă liniștită, cu străzi aerisite și acces facil către centrul orașului. Terenul are o suprafață de 500 mp și o deschidere stradală de 12 metri, ideală pentru construirea unei locuințe individuale sau a unui proiect rezidențial modern. Se vinde împreună cu un proiect propus, ce poate fi adaptat în funcție de nevoile viitorului proprietar. Zona este deja urbanizată, cu utilități disponibile în imediata apropiere, iar accesul este rapid către transport public, școli, magazine și zone verzi. O alegere potrivită pentru cei care caută să investească într-o zonă de case, bine cotată, cu dezvoltare continuă. Pentru mai multe detalii sau vizionare, nu ezitați să ne contactați.
Citește mai mult Citește mai puțin
Electricitate Apă Gaz Canalizare

Detalii teren

ID anunț: XC7L13043 Copiat! 268560265 Copiat!
Actualizat în: 23 Decembrie 2025
Clasificare teren: Intravilan
Front stradal: 12.0 m
Nr. fronturi stradale: 1

Utilități

Amenajare străzi
Iluminat stradal Mijloace de transport în comun Asfaltate
Comision
standard

Disponibilitate proprietate:

Imediat

Puncte de interes

Mijloace transport
bus-station
Statie Izbiceni 331, 24
Stații autobuz aprox. 221 m
bus-station
Statie Capat Cartier Damaroaia linii : 331.
Stații autobuz aprox. 305 m
tram-station
Statie Cartier Damaroaia Tv24
Stații tramvai aprox. 347 m
metro-station
Acces stația Parc Bazilescu N117, 112, 20, 97, M4
Stații metrou aprox. 793 m
Școală
school
Scoala Gimnaziala Speciala pentru Surzi nr.1
Școli aprox. 402 m
school
Scoala Gimnaziala Nicolae Grigorescu Nr. 177
Școli aprox. 408 m
kindergarten
Gradinita Ursuletu
Gradinițe aprox. 723 m
university
Universitatea Biotera
Universități aprox. 1679 m
Recreere
park
Parc
Parcuri aprox. 266 m
sports-ground
Teren sportiv
Terenuri sport aprox. 434 m
restaurant
Rotiserie
Restaurant aprox. 539 m
supermarket
Profi
Supermarket aprox. 748 m

Proprietăți recomandate

Detalii de contact

IMPACT REAL ESTATE ADVISORS

Cristian Radu

4.00(3 review-uri)

IMPACT REAL ESTATE ADVISORS
PRO

Abonează-te la newsletter să fii primul care primește cele mai noi recomandări de proprietăți și sfaturi de la experți.

CONTACT

Creează alertă

Salvează căutarea ca să primești pe email ultimele anunțuri publicate

Terenuri construcții de vânzare în zona Dămăroaia, Sector 1