Teren de vânzare în Pipera – 1000 mp, locație premium apropiere Mobexpert Homes

209.900 €
209.90 € / mp

Pipera, București

Sup. teren:
1.000 mp
Tip:
Construcții
  • • Locație exactă

Descriere teren

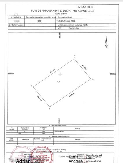
Oferim spre vânzare un teren generos de 1000 mp, situat într-una dintre cele mai dinamice și căutate zone din nordul Capitalei – Pipera, pe strada Elisabeta Rizea. Cu un ritm accelerat de dezvoltare în ultimii ani, zona se remarcă prin proiecte rezidențiale exclusiviste, infrastructură în extindere și o cerere constantă pentru locuințe moderne. La doar 150 metri de ansamblul rezidențial Bellmonde, acest teren reprezintă o oportunitate excelentă pentru investiție sau dezvoltare rezidențială de tip boutique. Detalii tehnice: Suprafață totală: 1000 mp Deschidere la drum: 22,64 ml Adâncime lot: 43,15 ml Acces pe drum de servitute (cota indiviză de 27 ml inclusă) Regim urbanistic: Categorie: intravilan Funcțiune zonală: UTR L1 – locuințe individuale și colective mici POT max: 40% CUT max: 0.9 pentru P+1E, respectiv 1.3 pentru P+2 H max: 10 m Vecinătăți de top: * Mobexpert Homes * Alexander Residence * Cartier Madrid Acces și transport: Autobuz STV 488 cu legătură directă spre Metrou Pipera. Acces rapid spre zonele de business și școlile internaționale din nordul Bucureștiului Pentru mai multe informații sau o vizionare la fața locului, nu ezitați să mă contactați.
Citește mai mult Citește mai puțin

Detalii teren

ID anunț: XFS403000 Copiat! 259362941 Copiat!
Actualizat în: 08 Aprilie 2026
Clasificare teren: Intravilan
Front stradal: 22.64 m
Nr. fronturi stradale: 1
P.O.T.: 40%
Sursa coef. urbanistici: P.U.G.
Lățime drum acces: 5 m
Regim înălțime: 2 m

Utilități

Destinație
Rezidențial
Utilități
Utilități în zonă
Amenajare străzi
Pietruite
Alte caracteristici
Acces auto

Alte detalii despre preț:

negociabil

Puncte de interes

Școală
school
Happy Children Academy
Școli aprox. 1357 m
kindergarten
Kindergarden
Gradinițe aprox. 1373 m
school
Scoala Discovery
Școli aprox. 1518 m
university
School American Bucharest-Voluntari
Universități aprox. 1823 m
Recreere
park
residential kids park
Parcuri aprox. 649 m
supermarket
Mega Image Pipera Liziera
Supermarket aprox. 1359 m
sports-ground
Teren sportiv
Terenuri sport aprox. 1606 m
supermarket
Billa
Supermarket aprox. 1631 m

Proprietăți recomandate

Detalii de contact

Abonează-te la newsletter să fii primul care primește cele mai noi recomandări de proprietăți și sfaturi de la experți.

CONTACT

Creează alertă

Salvează căutarea ca să primești pe email ultimele anunțuri publicate

Terenuri construcții de vânzare în zona Pipera, Sector 1