1

Posibilitate de invetitie | Teren cu Autorizatie | P+2+3R+4R

1.600.000 €
546.08 € / mp

Sisești, București

Sup. teren:
2.930 mp
Tip:
Construcții
  • • Locație aproximativă

Descriere teren

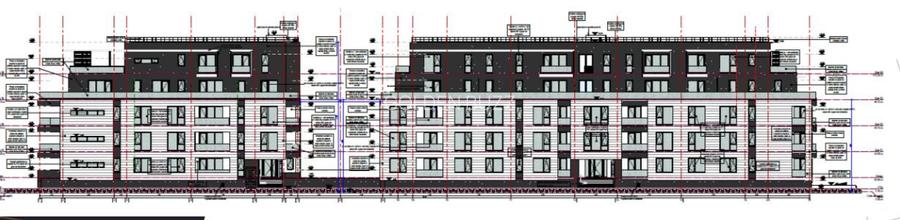
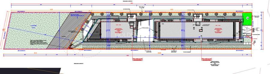
Specificații principale: Suprafață teren: 2.930 mp Regim de înălțime autorizat: două corpuri, unul cu P+2+3, celălalt cu P+4R Coeficienți urbanistici: CUT 2,49 | POT 50,5% Deschidere la lac – priveliște directă către Lacul Grivița, cu potențial de integrare a spațiilor de agrement și promenadă Teren intabulat, liber de sarcini, pregătit pentru dezvoltare imediată Avantajele zonei – Șișești : Localizare premium – parte a cartierului Vatra Nouă, zonă în plină dezvoltare imobiliară, cu ansambluri moderne și infrastructură nouă precum Green Lake, Citadela, Nordia Residence ș.a. Conectivitate excelentă – acces rapid la metrou Străulești, transport în comun și legături directe către DN1, centura București și Mall Băneasa. Cadru natural deosebit – amplasament cu deschidere la Lacul Grivița, oferind un plus de valoare și atractivitate pentru viitorul proiect. Facilități complete în proximitate – supermarketuri, școli, grădinițe, centre medicale, restaurante și spații de recreere. Calitate urbană ridicată – zonă sigură, curată, cu infrastructură în dezvoltare și perspective excelente de creștere a valorii. Acest teren reprezintă o oportunitate unică de investiție pentru dezvoltatori care își doresc să creeze un proiect rezidențial modern, cu priveliște la lac și acces rapid la principalele puncte de interes ale Bucureștiului.
Citește mai mult Citește mai puțin
Electricitate Apă Gaz Canalizare

Detalii teren

ID anunț: XFAT1304I Copiat! 275355796 Copiat!
Actualizat în: 26 Martie 2026
Clasificare teren: Intravilan
Nr. fronturi stradale: 1

Utilități

Amenajare străzi
Iluminat stradal Mijloace de transport în comun Asfaltate Pietruite
Alte caracteristici
Acces auto
Comision
standard

Vecinătăți:

2 Cocosi,Green lake , Lake View

Disponibilitate proprietate:

Imediat

Puncte de interes

Mijloace transport
bus-station
statia Piscul Scoartei, linia 205
Stații autobuz aprox. 261 m
bus-station
Statia Piscul Radului, linia 205
Stații autobuz aprox. 668 m
metro-station
Străulești (M4)
Stații metrou aprox. 943 m
tram-station
Laromet
Stații tramvai aprox. 974 m
Școală
school
Camin Scoala Generala Nr. 181
Școli aprox. 1207 m
school
Scoala 181
Școli aprox. 1247 m
kindergarten
Gradinita de copii nr.47
Gradinițe aprox. 1313 m
kindergarten
Gradinita Nr. 47
Gradinițe aprox. 1323 m
Recreere
sports-ground
Teren sportiv
Terenuri sport aprox. 293 m
park
Parc
Parcuri aprox. 713 m
restaurant
Micu Grill
Restaurant aprox. 812 m
supermarket
CRIS-TIM
Supermarket aprox. 1183 m

Proprietăți similare

Teren Construcții intravilan de 5724 mp, în Sisești
1.717.200 € + TVA
București, Sisești
5.724 mp teren
Construcții
Teren Construcții intravilan de 2500 mp, în Sisești
1.600.000 €
București, Sisești
2.500 mp teren
Construcții
Teren Construcții intravilan de 12761 mp, în DN 1
1.467.515 €
București, DN 1
12.761 mp teren
Construcții

Detalii de contact

GOLDEN BUZZ

Marius Stanciu Broker

GOLDEN BUZZ
PRO

Abonează-te la newsletter să fii primul care primește cele mai noi recomandări de proprietăți și sfaturi de la experți.

CONTACT

Creează alertă

Salvează căutarea ca să primești pe email ultimele anunțuri publicate

Terenuri construcții de vânzare în zona Sisești, Sector 1