13

Oportunitate | Teren Intravilan Pallady |Drumul Lunca Corbului | COMISION 0%

84.900 €
227.01 € / mp

Theodor Pallady, București

Sup. teren:
374 mp
Tip:
Construcții
  • • Comision 0%
  • • Exclusivitate
  • • Locație exactă

Descriere teren

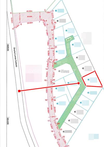
Oportunitate Investiție: Teren Intravilan Theodor Pallady – Drumul Lunca Corbului Vă propunem spre vânzare un teren intravilan situat într-o zonă cu o expansiune rapidă și potențial ridicat de apreciere: cartierul Theodor Pallady, pe Drumul Lunca Corbului. Această parcelă reprezintă alegerea ideală pentru cei care își doresc o locuință personală într-o zonă aerisită, dar conectată la facilitățile urbane, sau pentru un proiect de investiție pe termen scurt și mediu. Detalii Tehnice și Urbanistice: Suprafață utilă: 374 mp + cotă parte drum de servitute. Deschidere: 14 ml la drumul de servitute (asigură o configurare ușoară a construcției). Încadrare Urbanistică: Zona M2 (zonă mixtă ce permite multiple variante de configurare). Regim de înălțime propus: Ideal pentru casă/vilă (P+M). Acces: Facil, atât pietonal, cât și auto. Puncte Forte și Infrastructură: Dezvoltare activă: În prezent, Primăria execută lucrări la drumul de acces în vederea asfaltării, ceea ce va crește direct valoarea terenului în perioada imediat următoare. Utilități: Disponibile în zonă. Localizare: Zonă rezidențială liniștită, aflată într-un lot de parcele noi, ferită de zgomotul marilor artere, dar cu acces rapid către punctele de interes din Pallady (IKEA, Leroy Merlin, Metro, stații de metrou). Unele Imagini au caracter informativ și reprezintă o propunere de construcție. Am atașat o simulare arhitecturală pentru a ilustra potențialul acestui teren. Configurația de tip P+M se încadrează perfect în indicatorii urbanistici ai zonei. Preț: 84.900 Euro (COMISION 0% de la Cumparator) Nu ratați ocazia de a investi într-una dintre cele mai dinamice zone din Sectorul 3! Pentru detalii suplimentare și programări vizionări: 📞
Citește mai mult Citește mai puțin

Detalii teren

ID anunț: X87R03012 Copiat! 274659408 Copiat!
Actualizat în: 07 Mai 2026
Tip tranzacție: De vânzare prin agent
Clasificare teren: Intravilan
Front stradal: 14 m
Nr. fronturi stradale: 1
P.O.T.: 70%
C.U.T.: 3.5
Sursa coef. urbanistici: Certificat Urbanism
Lățime drum acces: 7 m
Regim înălțime: 1 m
Modalitate de plată: Cash sau Credit

Utilități

Destinație
Rezidențial De vacanță
Utilități
Utilități în zonă
Amenajare străzi
Asfaltate Pietruite Mijloace de transport în comun
Alte caracteristici
Oportunitate de investiție Acces auto
Comision
0%

Vecinătăți:

Metrou 1 Decembrie 1918
Ikea Pallady
Metro
Leroy Merlin

Puncte de interes

Mijloace transport
bus-station
Statia Policolor, Linia N111, 23, 27, 40
Stații autobuz aprox. 738 m
tram-station
Policolor
Stații tramvai aprox. 745 m
bus-station
statie tramvai STIROM :23- 27 - 40
Stații autobuz aprox. 762 m
metro-station
Metrorex.Stația Nicolae Teclu (M3)(2008)
Stații metrou aprox. 792 m
Școală
school
Scoala Nr. 149
Școli aprox. 1264 m
kindergarten
Gradinita Nr. 160
Gradinițe aprox. 1296 m
kindergarten
Gradinita Nr. 160 - "soarelui"
Gradinițe aprox. 1305 m
school
Colegiul tehnic de chimie "Costin Nenitescu"
Școli aprox. 1336 m
Recreere
park
* LA COCLAU - MOTOCROSS - TRASEU
Parcuri aprox. 312 m
supermarket
Lidl
Supermarket aprox. 1095 m
hypermarket
Decathlon
Hipermarket aprox. 1155 m
sports-ground
Teren de fotbal
Terenuri sport aprox. 1218 m

Proprietăți similare

Teren Construcții intravilan de 2500 mp, în Chitila
78.000 €
București, Chitila
2.500 mp teren
Construcții
Teren Construcții intravilan de 450 mp, în Andronache
89.000 €
București, Andronache
450 mp teren
Construcții
Teren Construcții intravilan de 852 mp, în Pipera
85.000 €
București, Pipera
852 mp teren
Construcții

Detalii de contact

EXPERIENCE INVEST

Claudiu Bongioi

4.65(13 review-uri)

EXPERIENCE INVEST
PRO

Abonează-te la newsletter să fii primul care primește cele mai noi recomandări de proprietăți și sfaturi de la experți.

CONTACT

Creează alertă

Salvează căutarea ca să primești pe email ultimele anunțuri publicate

Terenuri construcții de vânzare în zona Theodor Pallady, Sector 3