Teren 830 mp Sector 5 | Autorizație hală P+1 | Curent trifazic | Investiție

132.000 €
159.04 € / mp

Măgurele, București

Sup. teren:
830 mp
Tip:
Construcții
  • • Locație aproximativă

Descriere teren

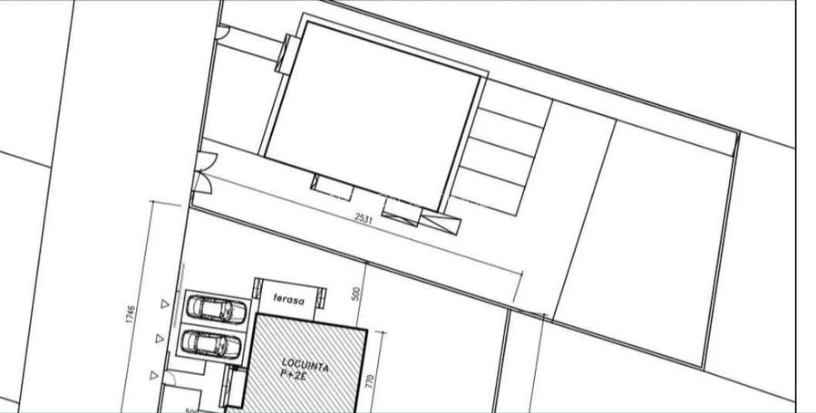
ID 247833 Art Consul Imob vă propune spre vânzare un teren intravilan cu suprafața de 830 mp, situat în București – Sector 5, într-o zonă liniștită și în plină dezvoltare, cu acces rapid către Șoseaua de Centură. 📍 Caracteristici principale: Suprafață teren: 830 mp Drum de acces 10 m lățime Curent electric trifazic la proprietate Restul utilităților în imediata apropiere Teren împrejmuit cu gard metalic Zonă curată, cu case și blocuri construite în apropiere 🏗 Avantaj major: Pe teren există autorizație de construire în vigoare pentru hală metalică P+1E, cu destinația spații comerciale, depozitare și birouri, cu proiect de rezistență și toate avizele obținute. ✔ Suprafața utilă totală a halei: aprox. 290 mp ✔ Viitorul proprietar poate începe imediat lucrările sau poate opta pentru un alt tip de construcție (casă, duplex sau alt proiect). 📑 Situație juridică clară: Toate actele sunt în regulă, terenul fiind curat din punct de vedere juridic, fără probleme sau complicații. Comisionul perceput de Art Consul Imob este de 3% din valoarea tranzacționată. Agent : Adela Lupu
Citește mai mult Citește mai puțin
Electricitate

Detalii teren

ID anunț: XEKV03001 Copiat! 275223293 Copiat!
Actualizat în: 09 Martie 2026
Clasificare teren: Intravilan

Utilități

Amenajare străzi
Iluminat stradal
Alte caracteristici
Acces auto Teren împrejmuit

Puncte de interes

Mijloace transport
bus-station
Statia Pecinisca, linia 303
Stații autobuz aprox. 296 m
bus-station
Statia Curtea de Arges, linia 303
Stații autobuz aprox. 514 m
bus-station
Statia Slatina, linia 303
Stații autobuz aprox. 727 m
bus-station
Statia Soseaua Vartejului, linia 303
Stații autobuz aprox. 1219 m
Școală
school
Scoala Generala Nr. 125
Școli aprox. 1118 m
Recreere
park
Parc
Parcuri aprox. 1249 m
restaurant
pizzeria
Restaurant aprox. 1256 m
supermarket
Coral Market 5
Supermarket aprox. 1314 m
sports-ground
Teren sportiv
Terenuri sport aprox. 1962 m

Proprietăți similare

Teren Construcții intravilan de 300 mp, în Rahova
145.000 €
București, Rahova
300 mp teren
Construcții
Teren Construcții intravilan de 625 mp, în Ghencea
140.000 €
București, Ghencea
625 mp teren
Construcții
Teren Construcții intravilan de 206 mp, în Pieptănari
130.000 €
București, Pieptănari
206 mp teren
Construcții

Detalii de contact

ART CONSULT IMOB

Adela Lupu Consultant Imobiliar

ART CONSULT IMOB
PRO

Abonează-te la newsletter să fii primul care primește cele mai noi recomandări de proprietăți și sfaturi de la experți.

CONTACT

Creează alertă

Salvează căutarea ca să primești pe email ultimele anunțuri publicate

Terenuri construcții de vânzare în zona Măgurele, Sector 5