Teren intravilan 536 mp cu deschidere de 14 m –Piata Cluj

250.000 €
466.42 € / mp

Piața Cluj, Sibiu

Sup. teren:
536 mp
Tip:
Construcții
  • • Locație aproximativă

Descriere teren

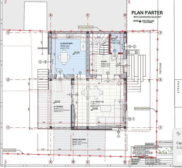
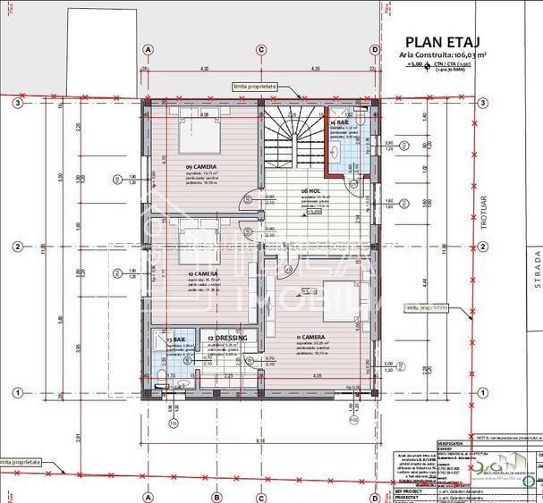
Teren intravilan 536 mp cu deschidere de 14 m – proiect și autorizație de construire incluse Vă propunem spre vânzare un teren intravilan complet pregătit pentru construcție, cu o suprafață totală de 536 mp și o deschidere de 14 metri la stradă, ideal pentru dezvoltarea unei locuințe moderne, așa cum este proiectul prezentat în imagine. Caracteristici teren: Suprafață totală: 536 mp Deschidere la stradă: 14 ml Regim juridic: Intravilan, construibil Utilități: apă, canalizare, gaz, energie electrică – toate la limita proprietății Acces: drum asfaltat / amenajat Topografie: teren drept, excelent pentru construcție fără costuri suplimentare de terasament Avantaje: Terenul beneficiază deja de autorizație de construire, ideal pentru cei care doresc să înceapă lucrările imediat. Proiectul aprobat include o casă modernă S+P+E, cu terase generoase, parcare pentru mai multe mașini și un concept arhitectural actual. Zona este formată exclusiv din case, oferind intimitate și un mediu liniștit. Poziționare foarte bună, potrivită atât pentru locuință proprie, cât și pentru investiție. Destinație ideală: locuință familială modernă investiție (închiriere pe termen lung / dezvoltare) Pret: 250.000 Negociabil Telefon: - Rares
Citește mai mult Citește mai puțin
Electricitate Apă Gaz Canalizare

Detalii teren

ID anunț: XBM41300Q Copiat! 275039396 Copiat!
Actualizat în: 20 Februarie 2026
Clasificare teren: Intravilan
Front stradal: 14.0 m
Nr. fronturi stradale: 1
Lățime drum acces: 14.0 m

Utilități

Amenajare străzi
Iluminat stradal Mijloace de transport în comun Asfaltate
Alte caracteristici
Acces auto
Comision
standard

Disponibilitate proprietate:

Imediat

Puncte de interes

Mijloace transport
bus-station
Paris 2
Stații autobuz aprox. 206 m
bus-station
Paris 1
Stații autobuz aprox. 206 m
bus-station
Turnisor
Stații autobuz aprox. 274 m
bus-station
Kogalniceanu
Stații autobuz aprox. 434 m
Școală
kindergarten
Gradinita Nr. 19
Gradinițe aprox. 477 m
school
Scoala cu Clasele I - VIII NR. 12 Sibiu
Școli aprox. 492 m
kindergarten
Hermania
Gradinițe aprox. 1275 m
university
Laboratoare ULBS
Universități aprox. 1598 m
Recreere
park
Parc Piata Cluj
Parcuri aprox. 568 m
restaurant
Kon Tiki
Restaurant aprox. 642 m
sports-ground
Teren sportiv
Terenuri sport aprox. 770 m
supermarket
Kaufland
Supermarket aprox. 1095 m

Proprietăți similare

Teren Construcții intravilan de 560 mp, în Piața Cluj
250.000 €
Sibiu, Piața Cluj
560 mp teren
Construcții
Teren Construcții extravilan de 8600 mp, în Exterior Est
258.000 €
Sibiu, Exterior Est
8.600 mp teren
Construcții
Teren Construcții intravilan de 3300 mp, în Aeroport
231.000 €
Sibiu, Aeroport
3.300 mp teren
Construcții

Detalii de contact

Ideal Imobiliare Sibiu

Rares Fisca Broker imobiliar

Ideal Imobiliare Sibiu
PRO

Abonează-te la newsletter să fii primul care primește cele mai noi recomandări de proprietăți și sfaturi de la experți.

CONTACT

Creează alertă

Salvează căutarea ca să primești pe email ultimele anunțuri publicate

Terenuri construcții de vânzare în zona Piața Cluj, Sibiu