Teren intravilan, 16.800 mp, PUZ aprobat, Vâlcele – Ideal investitie

1.344.000 €
80 € / mp

Vâlcele, Județul Cluj

Sup. teren:
16.800 mp
Tip:
Construcții
  • • Locație aproximativă

Descriere teren

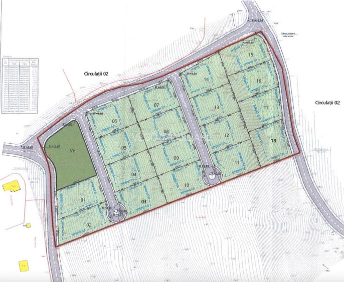
Teren intravilan de 16.800 mp cu PUZ aprobat, Vâlcele – Ideal pentru dezvoltatori imobiliari, la 14 km de Cluj-Napoca Oportunitate de investiție deosebită în localitatea Vâlcele, situată la doar 14 km de Cluj-Napoca! Acest teren intravilan, cu o suprafață generoasă de 16.800 mp și PUZ aprobat, reprezintă o opțiune ideală pentru dezvoltatorii imobiliari care doresc să creeze un proiect rezidențial modern. Caracteristici cheie: Suprafață utilă: 16.800 mp – ideal pentru proiecte rezidențiale de anvergură. PUZ aprobat: Permite construcția a 18 unități locative, cu opțiunea de a construi atât case individuale, cât și case cuplate (duplexuri). Localizare: Vâlcele, județul Cluj, la doar 14 km de Cluj-Napoca – o zonă în plină dezvoltare, cu acces rapid la facilitățile orașului. Utilități: Apropierea utilităților esențiale (apă, gaz, electricitate) facilitează conectarea rapidă la rețelele necesare. Potențial ridicat: Terenul este perfect pentru dezvoltatori care caută să construiască un nou cartier rezidențial într-o locație strategică. Această ofertă se adresează în special investitorilor și dezvoltatorilor imobiliari, oferind oportunitatea de a profita de creșterea pieței imobiliare din zona metropolitană a municipiului Cluj-Napoca. Cu un PUZ aprobat și posibilitatea de a dezvolta un ansamblu de 18 locuințe, acest teren poate reprezenta o investiție sigură și profitabilă. Pentru mai multe detalii, sau pentru a programa o vizionare, nu ezitați să ne contactați!
Citește mai mult Citește mai puțin

Detalii teren

ID anunț: XAT01300C Copiat! 275457434 Copiat!
Actualizat în: 20 Aprilie 2026
Clasificare teren: Intravilan

Utilități

Amenajare străzi
Asfaltate Pietruite
Alte caracteristici
Parcelabil Acces auto
Comision
2%

Proprietăți similare

Teren Construcții intravilan de 532 mp, în Ultracentral
1.285.000 € + TVA
Cluj-Napoca, Ultracentral
532 mp teren
Construcții
Teren Construcții intravilan de 4812 mp, în Gruia
1.251.000 €
Cluj-Napoca, Gruia
4.812 mp teren
Construcții
Teren Construcții intravilan de 62636 mp, în Vultureni
1.252.720 €
Județul Cluj, Vultureni
62.636 mp teren
Construcții

Detalii de contact

VEGO IMOBILIARE

VEGO Imobiliare

5.00(5 review-uri)

VEGO IMOBILIARE
PRO

Abonează-te la newsletter să fii primul care primește cele mai noi recomandări de proprietăți și sfaturi de la experți.

CONTACT

Creează alertă

Salvează căutarea ca să primești pe email ultimele anunțuri publicate

Terenuri construcții de vânzare în Vâlcele, Județul Cluj