1

Teren intravilan de vanzare in Feleacu - 720 MP - PUZ aprobat!

112.500 €
156.25 € / mp

Feleacu, Județul Cluj

Sup. teren:
720 mp
Tip:
Construcții
  • • Comision 0%
  • • Exclusivitate
  • • Locație exactă

Descriere teren

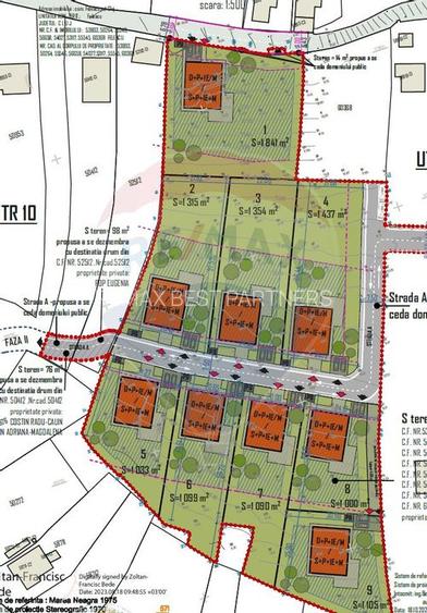
Vă propunem la vânzare în reprezentare exclusivă, un teren intravilan de 720 mp, parte dintr-un PUZ restrâns de 10 parcele, situat în comuna Feleacu — zonă liniștită, cu priveliști atractive și dezvoltare urbanistică recent aprobată. - Suprafață: 720 mp - Front: 13,5 m la drum nou (lățime drum 7,5 m) - Regim urbanistic: PUZ aprobat pentru un ansamblu restrâns de 10 parcele - Potențial: vecinătate de case cu loturi de peste 1.000 mp, potrivit pentru construcție rezidențială de calitate - Priveliște: ușoară pantă favorabilă, vedere către pădure și Cheile Turzii - Stare utilități: PUZ aprobat; în următoarele luni încep lucrările pentru amenajare drumuri și branșare utilități Avantaje: - Amplasament liniștit, ideal pentru casă familială - Investiție sigură datorită PUZ-ului aprobat - Acces rutier organizat prin drum nou în proiect Pentru informații suplimentare, vizionare și oferte, contactați-ne cu încredere!
Citește mai mult Citește mai puțin

Detalii teren

ID anunț: XASI13062 Copiat! 274346292 Copiat!
Actualizat în: 06 Martie 2026
Clasificare teren: Intravilan
Front stradal: 13.5 m
Nr. fronturi stradale: 1

Utilități

Amenajare străzi
Iluminat stradal
Comision
0%

Puncte de interes

Mijloace transport
bus-station
M-DJ 71
Stații autobuz aprox. 599 m
bus-station
M-Post Control
Stații autobuz aprox. 617 m
bus-station
M-Scoala Feleacu V
Stații autobuz aprox. 917 m
bus-station
M-Scoala Feleacu E
Stații autobuz aprox. 928 m
Școală
kindergarten
Gradinita Feleacu
Gradinițe aprox. 885 m
school
Scoala Generala Feleacu
Școli aprox. 912 m
Recreere
restaurant
Aroma
Restaurant aprox. 1816 m
restaurant
Restaurant Aroma
Restaurant aprox. 1834 m

Proprietăți recomandate

Detalii de contact

REMAX BEST PARTNERS

Adrian Tantau Sales Associate

REMAX BEST PARTNERS
PRO

Abonează-te la newsletter să fii primul care primește cele mai noi recomandări de proprietăți și sfaturi de la experți.

CONTACT

Creează alertă

Salvează căutarea ca să primești pe email ultimele anunțuri publicate

Terenuri de vânzare în Feleacu, Județul Cluj