1

Oportunitate investitie, teren 11800 mp de vanzare, 25 km de la CB

500.000 €
42.37 € / mp

Fundulea, Județul Călărași

Sup. teren:
11.800 mp
  • • Locație aproximativă
  • • Vizionare prin apel video

Descriere teren

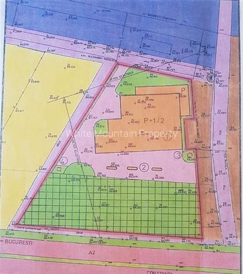
White Mountain Property are placerea sa va ofere spre vanzare acest teren de 11800 mp, situat in Fundulea, jud Calarasi. Fundulea se afla in apropierea autostrazii A2, care este una dintre cele mai importante rute de transport din Romania, asigurand acces rapid si usor catre Bucuresti si Constanta. Datorita amplasarii si accesibilitatii usoare, terenurile din Fundulea prezinta un potential ridicat pentru dezvoltarea industriala si comerciala; aici se construiesc facilitati industriale, depozite, centre logistice sau parcuri comerciale. In zona in dezvoltare din estul Bucurestiului, aceasta exceptionala oportunitate de dezvoltare se prezinta in apropierea orasului Fundulea. Situata in partea dreapta a hartii, intre liniile de cale ferata si autostrada (E81 A2) care leaga Capitala de portul Constanta, aceasta proprietate de prim rang ofera un potential imens de dezvoltare comerciala si industriala. Este gata de dezvoltare, oferind o locatie ideala pentru un nod de transport. Ocupa o pozitie strategica intre autostrada si sinele de tren, oferind accesibilitate si conectivitate de neegalat. Aceasta locatie excelenta asigura legaturi de transport fara intreruperi catre marile orase si portul Constanta, sporind atractivitatea site-ului pentru diverse industrii. Proprietatea se preteaza pentru o benzinarie, un centru comercial si o unitate de depozitare, oferind o gama variata de optiuni pentru potentialii investitori. Se incadreaza in PUZ aprobat, permitand posibilitati flexibile de dezvoltare, inclusiv proiecte comerciale, industriale si de agrement. Acest lucru le permite antreprenorilor sa isi adapteze investitiile pentru a se potrivi obiectivelor lor specifice de afaceri. Cu o suprafata de aproximativ 1,2 ha, proprietatea ofera spatiu amplu pentru o dezvoltare substantiala. Forma sa se preteaza la construirea unei cladiri patrate sau dreptunghiulare, cu o fatada impresionanta de 136 m. Acest aspect ofera o vizibilitate excelenta si expunere la trafic, asigurand potential mare de clienti si de crestere a afacerii. Datorita proximitatii fata de Bucuresti, precum si infrastructurii rutiere si feroviare, acest proiect prezinta o oportunitate ideala pentru o benzinarie sau un centru de depozitare si distributie. Cu locatia sa strategica intr-un nod de transport, proprietatea este pregatita sa raspunda cererii tot mai mari de logistica, combustibil si alte servicii conexe. In plus, accesibilitatea site-ului il pozitioneaza ca o escala convenabila pentru soferii care calatoresc intre Bucuresti si Constanta. Situl reprezinta o perspectiva de investitie exceptionala pentru cei care doresc sa valorifice potentialul economic in crestere al regiunii si este o alegere atractiva pentru o dezvoltare comerciala sau industriala. Pe masura ce aceasta regiune continua sa prospere, proprietatea promite sa fie o poarta spre crestere si prosperitate. Pentru orice alte detalii, nu ezita sa ma contactezi la numarul de telefon sau adresa de e-mail: . White Mountain Property are o relatie buna de colaborare cu multe alte agentii imobiliare locale din Bucuresti, pentru a salva timpul clientilor nostri cautand mai mult decat ei doresc, pentru a gasi proprietatea potrivita nevoilor lor. De fapt, in cazul in care veti gasi o proprietate in alta parte, dar preferati comunicarea sa se faca prin noi, putem actiona in numele dvs. pentru proprietatea respectiva, fara costuri suplimentare. In concluzie, veti obtine doua agentii la acelasi cost cu una. ID intern: TSCO ED 120723 FUN
Citește mai mult Citește mai puțin
Electricitate Apă Gaz Canalizare

Detalii teren

ID anunț: XC4S13032 Copiat! 274756655 Copiat!
Actualizat în: 03 Februarie 2026
Clasificare teren: Intravilan
Front stradal: 135 m
Nr. fronturi stradale: 2

Utilități

Destinație
Comercial
Amenajare străzi
Asfaltate Iluminat stradal
Alte caracteristici
Oportunitate de investiție La șosea Acces auto
Comision
2%

Vecinătăți:

Piata, Benzinarie, Intersectie circulata, Zona comerciala, Autobuz

Puncte de interes

Recreere
sports-ground
Teren Fotbal
Terenuri sport aprox. 1722 m

Proprietăți similare

Teren intravilan de 10911 mp, în Frumușani
534.000 €
Județul Călărași, Frumușani
10.911 mp teren
Pășune

Detalii de contact

Abonează-te la newsletter să fii primul care primește cele mai noi recomandări de proprietăți și sfaturi de la experți.

CONTACT

Creează alertă

Salvează căutarea ca să primești pe email ultimele anunțuri publicate

Terenuri de vânzare în Fundulea, Județul Călărași