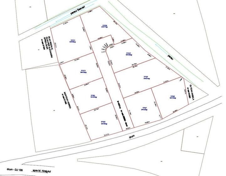
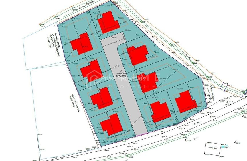
Loturi 424–664 mp, utilități complete, proiect inclus la 8 min de oras

33.200 €
50 € / mp

Sânișor, Județul Mureș

Sup. teren:
664 mp
Tip:
Construcții
  • • Comision 0%
  • • Locație aproximativă

Descriere teren

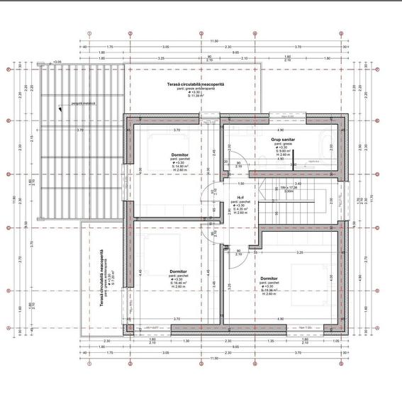
Parcelele tale pentru casă – Sânișor, comuna Livezeni, la 8 minute de Târgu Mureș Teren intravilan cu proiect inclus și certificat de urbanism valabil Prime Properties vă oferă spre vânzare parcele de teren intravilan cu suprafețe cuprinse între 424 mp și 664 mp, situate în Sânișor, comuna Livezeni, la strada principală, asfaltată, la doar 8 minute de Târgu Mureș. Un avantaj major: fiecare lot dispune de proiect de casă individuală inclus și certificat de urbanism recent eliberat (valabil 2 ani) – ceea ce permite demararea rapidă a construcției. Locație: Sânișor – comuna Livezeni La asfalt, pe strada principală Stație de autobuz în apropiere Zonă liniștită, cu panoramă deosebită Cartier în plină dezvoltare Suprafață loturi: Între 424 mp – 664 mp Preț: 50 €/mp Utilități disponibile: Apă Canalizare Gaz Curent electric Toate utilitățile sunt disponibile, facilitând procesul de construire. Proiect de casă inclus: Parter: Hol intrare Cameră tehnică Bucătărie Baie Living open space + zonă dining Casa scării Etaj: 3 dormitoare Baie Balcon (pentru 2 dormitoare) Proiectul este gândit pentru o locuință modernă, practică și potrivită pentru familie. Avantaje competitive: Proiect inclus în preț Certificat de urbanism valabil Acces direct la asfalt Utilități complete Zonă liniștită, aproape de oraș Potențial excelent pentru investiție Pentru mai multe detalii sau pentru programarea unei vizionări, vă invităm să ne contactați! Pentru clienții cumpărători, comisionul este 0%. La Prime Properties, fiecare tranzacție înseamnă mai mult decât o simplă achiziție – este un proces complet, în care colaborăm cu cei mai buni profesioniști: notari, avocați, designeri, arhitecți, evaluatori, specialiști în certificate energetice, consultanți de credite imobiliare. Astfel, atunci când alegi o proprietate prin noi, primești la pachet și siguranță, transparență și servicii impecabile pe tot parcursul drumului tău către casa ideală. Ne dedicăm 100% fiecărui client, iar asta se reflectă în rezultate și în încrederea pe care o primim înapoi prin recomandările lor. Proprietatea aceasta nu se potrivește exact nevoilor tale? Lasă-ne să îți găsim alternativa potrivită. Consultantul nostru îți va oferi soluții avantajoase și adaptate stilului tău de viață. 📞 Contactează-ne astăzi. Până acum nu am dezamăgit niciun client – și nu vom începe cu tine.
Citește mai mult Citește mai puțin
Electricitate Apă Gaz Canalizare

Detalii teren

ID anunț: XG2S13004 Copiat! 275061959 Copiat!
Actualizat în: 22 Februarie 2026
Clasificare teren: Intravilan

Utilități

Amenajare străzi
Iluminat stradal Asfaltate
Alte caracteristici
La șosea Parcelabil
Comision
0%

Disponibilitate proprietate:

Imediat

Proprietăți similare

Teren intravilan de 2900 mp, în 1 Decembrie 1918
31.000 €
Târgu Mureș, 1 Decembrie 1918
2.900 mp teren

Detalii de contact

Prime Properties

Cristi A. Consultant imobiliar

Prime Properties
PRO

Abonează-te la newsletter să fii primul care primește cele mai noi recomandări de proprietăți și sfaturi de la experți.

CONTACT

Creează alertă

Salvează căutarea ca să primești pe email ultimele anunțuri publicate

Terenuri de vânzare în Sânișor, Județul Mureș