8

Apartament 3 camere mobilat in One Verdi Park cu loc de parcare

1.750 € / lună

Floreasca, București

Nr. cam.:
3
Sup. utilă:
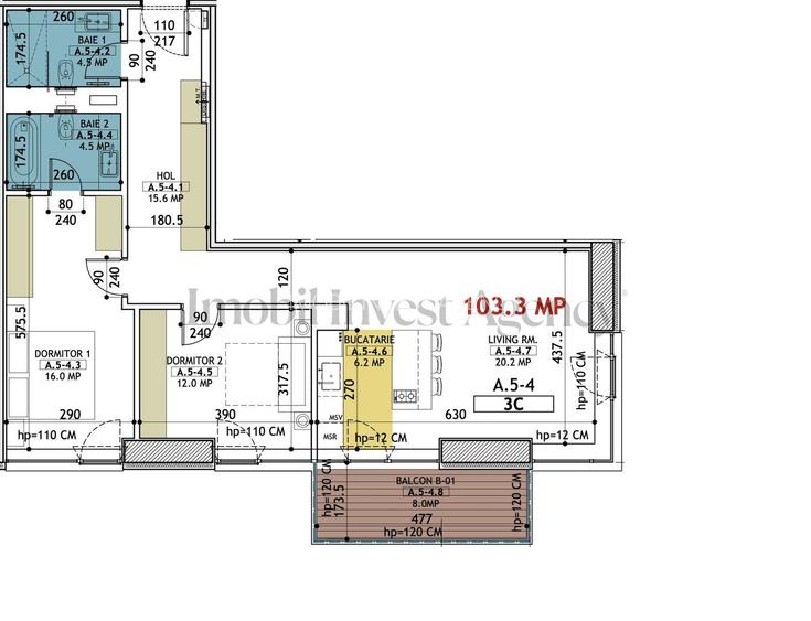
86,08 mp
Etaj:
8 / 20
An constr.:
2022 (Finalizată)
  • • Locație aproximativă

Descriere apartament

Disponibil spre închiriere un apartament modern și spațios, situat în complexul One Verdi Park, pe Bulevardul Barbu Văcărescu, într-una dintre cele mai căutate zone din nordul Bucureștiului. Locația oferă acces rapid către centrul orașului și este excelent conectată prin mijloace de transport (metrou, tramvai, autobuz), fiind totodată la distanță de mers pe jos de Parcul Verdi și Promenada Mall. Apartamentul are o compartimentare semidecomandată, o suprafață construită de 86 mp și o terasă de 8 mp. Este compus din: • 2 dormitoare • living generos • 2 băi (una cu cadă, una cu duș) Proprietatea beneficiază de finisaje premium, tavane înalte și ferestre mari, care oferă lumină naturală din plin. Apartamentul are expunere Est–Sud și Sud-Vest, ideală pentru un ambient luminos pe tot parcursul zilei. În prețul chiriei sunt incluse: • 1 loc de parcare subteran • mobilierul (apartamentul se închiriază mobilat) Pentru mai multe detalii și pentru a programa o vizionare, vă stăm cu drag la dispoziție. La pretul afisat se adauga TVA
Citește mai mult Citește mai puțin
Confort lux Semidecomandat Mobilat Lux Curte comună Aer condiționat Centrală imobil Încălzire prin pardoseală 1 Parcare

Detalii apartament

ID anunț: XFDI10068 Copiat! 274741863 Copiat!
Actualizat în: 11 Mai 2026
Suprafață construită: 103.3 mp
Nr. bucătării: 1
Nr. băi: 2
Structură rezistență: Cărămidă
Tip imobil: Bloc de apartamente
Tip tranzacție: De închiriat prin agent
Regim înălțime: P+20E
Nr. terase: 1
Perioadă închiriere: Termen lung

Utilități

Destinație
Rezidențial
Pereți
Faianță Vopsea lavabilă
Podele
Gresie Parchet
Ușă intrare
Metal
Uși interior
Lemn
Izolații termice
Exterior Interior
Ferestre cu geam termopan
Aluminiu
Contorizare
Contor căldură Contor gaz
Bucătărie
Mobilată Utilată
Electrocasnice
Aragaz Frigider Hotă Mașină de spălat Mașină spălat vase TV
Diverse
Senzor de fum Sistem de alarmă
Alte spații utile
WC Serviciu Terasă
Facilități imobil
Acoperiș Interfon Lift Spații agrement Videointerfon
Utilități
Curent Apă Canalizare CATV Gaze Telefon
Internet
Cablu Wireless
Servicii imobil
Pază Supraveghere video
Amenajare străzi
Iluminat stradal Mijloace de transport în comun Asfaltate
Comision
standard

Vecinătăți:

Parcul Verdi, Lacul Floreasca,Lacul Tei, Pescariu Sports & Spa, Pescariu AQUA, Farmacia Tei, Kaufland, Carrefour, Promenada Mall, One Rahmaninov, Liceul Teoretic Sfintii Trei Ierarhi, Liceul Teoretic CA Rosetti, Olga Gudynn International Primary Dchool.

Disponibilitate proprietate:

Imediat

Puncte de interes

Mijloace transport
tram-station
Giuseppe Verdi
Stații tramvai aprox. 4 m
bus-station
Statia Ancuta Baneasa, linia 135, N119
Stații autobuz aprox. 464 m
metro-station
Aurel Vlaicu (M2)
Stații metrou aprox. 1342 m
trolleybus-station
Statia Doamna Ghica, linia 66
Stații troleibuz aprox. 1992 m
Școală
school
LICEUL TEORETIC "C.A. ROSETTI"
Școli aprox. 329 m
school
Liceul C.A. Rosetti
Școli aprox. 329 m
kindergarten
Gradinita nr. 7
Gradinițe aprox. 479 m
university
Athenaeum University (en)
Universități aprox. 926 m
Recreere
park
Parcul Verdi
Parcuri aprox. 195 m
restaurant
Pescariu Sports & Spa - .pescariusports.ro (en)
Restaurant aprox. 291 m
sports-ground
Teren sportiv
Terenuri sport aprox. 308 m
supermarket
BILLA - B. Vacarescu
Supermarket aprox. 519 m

Detalii despre preț și costuri

Prețul pe piață

Preț cerut: 1.750 €

Preț min. zonă
Preț max. zonă

59% dintre proprietățile similare ca zonă și nr. camere au prețul cerut mai mare. mai multe...

Bine de știut: prețul unei proprietăți este influențat și de alte caracteristici, cum ar fi: vechime, localizare, vecinătăți, suprafață, compartimentare, amenajări, dotări, etc. mai puțin...

Acces la informații premium după autentificare
Login Gratuit

Proprietăți similare

Apartament cu 3 camere semidecomandat, mobilat în Floreasca
1.700 € / lună
București, Floreasca
3 camere
70 mp
Etaj 9
Apartament cu 3 camere decomandat, mobilat în Floreasca
1.900 € / lună
București, Floreasca
3 camere
85 mp
Etaj 3
Apartament cu 3 camere semidecomandat, mobilat în Floreasca
1.600 € / lună
București, Floreasca
3 camere
88 mp
Etaj 3 / 9

Detalii de contact

IMOBIL INVEST AGENCY

Victoria Morozinschi Manager

5.00(4 review-uri)

IMOBIL INVEST AGENCY
PRO

Abonează-te la newsletter să fii primul care primește cele mai noi recomandări de proprietăți și sfaturi de la experți.

CONTACT

Creează alertă

Salvează căutarea ca să primești pe email ultimele anunțuri publicate

Apartamente cu 3 camere de închiriat în zona Floreasca, Sector 1