2

Apartament 3 camere | Terase generoase | 0% comision | Wings

187.082 €

Zorilor, Cluj-Napoca

Nr. cam.:
3
Sup. utilă:
65,1 mp
Etaj:
Parter / 14
An constr.:
2023 (Finalizată)
  • • Comision 0%
  • • Locație aproximativă

Descriere apartament

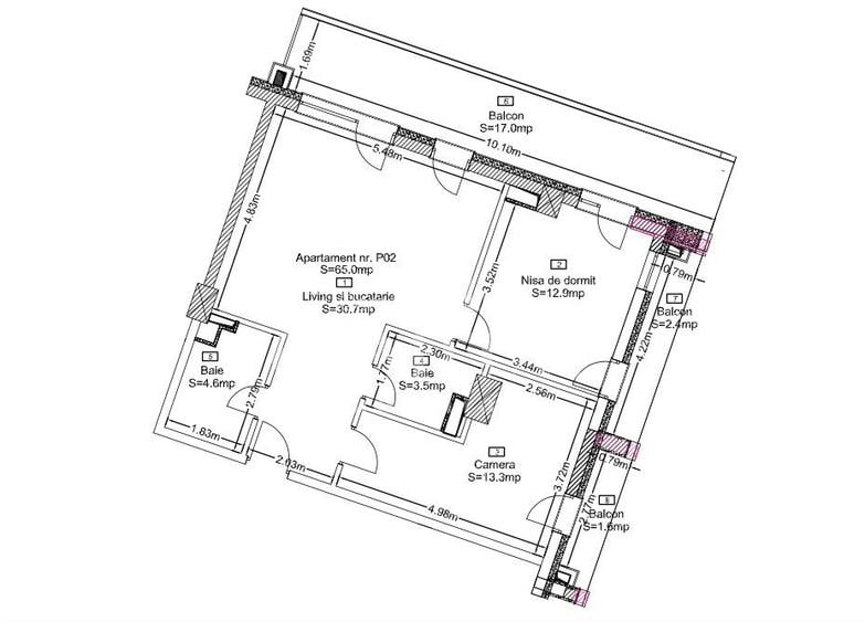
Vă propunem spre vânzare un apartament modern cu 3 camere, potrivit atât pentru locuință personală, cât și pentru investiție, situat într-un ansamblu rezidențial apreciat din Cluj-Napoca. Achiziția se realizează cu 0% comision pentru cumpărător. Date tehnice ale proprietății: Suprafață utilă: 65 mp Suprafață terase: 21mp Etaj: Parter din 14 Orientare Sud-Est Compartimentare: -living cu bucătărie, 2 dormitoare, 2 băi, 1 tersă și 2 balcoane. Stadiu predare: semifinisat Confort termic asigurat prin centrală termică proprie pe gaz și încălzire în pardoseală. Apartamentul dispune de suprafețe vitrate ample și terase generoase, oferind lumină naturală pe tot parcursul zilei și un spațiu exterior rar întâlnit pentru această tipologie. Ansamblul rezidențial se evidențiază prin arhitectură modernă, calitatea execuției și poziționarea într-o zonă bine conectată la oraș, fiind o alegere potrivită atât pentru familii, cât și pentru investitori. Aspecte financiare și logistice: Apartamentul deține extras cf. 0% comision pentru cumpărător Prețul afișat include TVA Parcare subterană contra cost la prețul de 20000Euro. Pentru informații suplimentare și programarea unei vizionări, vă stăm la dispoziție.
Citește mai mult Citește mai puțin
Confort 1 Semidecomandat Nemobilat 2 Balcoane / Terase / Logii Centrală proprie Încălzire prin pardoseală 1 Garaj

Detalii apartament

ID anunț: XBA0106K3 Copiat! 274927190 Copiat!
Actualizat în: 16 Martie 2026
Suprafață construită: 113 mp
Nr. bucătării: 1
Nr. băi: 2
Structură rezistență: Cărămidă
Tip imobil: Bloc de apartamente
Regim înălțime: P+14E

Utilități

Destinație
Rezidențial
Ușă intrare
Metal
Izolații termice
Exterior
Ferestre cu geam termopan
Aluminiu
Contorizare
Apometre Contor căldură Contor gaz
Facilități imobil
Interfon Lift
Utilități
Curent Apă Canalizare CATV Gaze Telefon
Internet
Cablu
Amenajare străzi
Iluminat stradal Mijloace de transport în comun Asfaltate
Comision
0%

Disponibilitate proprietate:

Imediat

Puncte de interes

Mijloace transport
bus-station
Varianta Zorilor
Stații autobuz aprox. 110 m
bus-station
Statia Post Zorilor, Linia 46, 50
Stații autobuz aprox. 398 m
tram-station
Statia Gr. Alexandrescu, Linia 6
Stații tramvai aprox. 1515 m
tram-station
Parang
Stații tramvai aprox. 1569 m
Școală
school
Liceul Waldorf
Școli aprox. 240 m
kindergarten
Gradinita Liceului Waldorf
Gradinițe aprox. 316 m
school
Liceul Edmond Nicolau
Școli aprox. 751 m
university
USAMV Cluj-Napoca
Universități aprox. 1114 m
Recreere
supermarket
Lidl
Supermarket aprox. 117 m
park
Parc
Parcuri aprox. 476 m
restaurant
Zucca
Restaurant aprox. 607 m
sports-ground
Teren sportiv
Terenuri sport aprox. 732 m

Detalii despre preț și costuri

Prețul pe piață

Preț cerut: 187.082 €

Preț min. zonă 167.000 €
Preț max. zonă 355.000 €

76% dintre proprietățile similare ca zonă și nr. camere au prețul cerut mai mare. mai multe...

Bine de știut: prețul unei proprietăți este influențat și de alte caracteristici, cum ar fi: vechime, localizare, vecinătăți, suprafață, compartimentare, amenajări, dotări, etc. mai puțin...

Costuri cu achiziția

Fără credit
9.329 RON
Credit ipotecar
11.236 RON
Noua casă
1.094 RON+ taxe notariale

i

Costuri adiționale mai puțin știute la achiziție: taxe notariale, comisioane etc.

Proprietăți recomandate

Detalii de contact

Comitat Imobiliare

Radu Sucila Manager

Comitat Imobiliare
PRO

Abonează-te la newsletter să fii primul care primește cele mai noi recomandări de proprietăți și sfaturi de la experți.

CONTACT

Creează alertă

Salvează căutarea ca să primești pe email ultimele anunțuri publicate

Apartamente noi cu 3 camere de vânzare în zona Zorilor, Cluj-Napoca