Apartament 2 camere + curte 50 mp - Natura la tine acasă! Cristian-SiBiU

108.779 €

Cristian, Județul Sibiu

Nr. cam.:
2
Sup. utilă:
49,7 mp
Sup. teren:
50 mp
Etaj:
Parter / 3
  • • Comision 0%
  • • Locație aproximativă

Descriere apartament

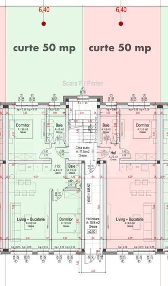
Apartament 2 camere de Vânzare în Cartierul DaVinci – Cristian, Sibiu Curte, Locație Premium, Priveliște Panoramică, Natură la Tine Acasă Vă prezentăm un apartament bine compartimentat, aflat intr-un imobil deosebit, situat într-o zonă înaltă, retrasă și liniștită a cartierului DaVinci din Cristian – Sibiu. Living + bucătărie = 30 mp Dormitor = 13 mp Baie = 4,5 mp hol = 2,2 mp Curte 50 mp Complexul în care se află apartamentul este format din blocuri tip vilă înșiruite, fiecare cu 7 case de scară și câte 7 apartamente – doar două pe etaj și unul la mansardă, asigurând intimitate și confort. Poziționare excelentă – panoramă unică asupra Mărginimii Sibiului, Munților Făgăraș și localității Cristian. Mediu natural bogat – vegetație abundentă și aer curat. Sistem de plată; avans 15% + 85% la CVC = 89900 euro La acest preț se adugă TVA-ul Alte tipuri de apartamente disponibile cu predarea finisaj la alb 3 camere, (SU 61,4 mp) spațiu generos, 2 băi + terasă 7 mp = 89 900 euro + TVA 3 camere, (SU 61,4 mp) spațiu generos, 2 băi + curte 50 mp - parter = 99 900 euro + TVA ideale pentru cupluri sau investiții; PENTRU FINISAJ LA CHEIE SE MAI ADAUGA 10000 EURO + TVA Toate apartamentele sunt decomandate, cu living open-space și bucătărie. Un loc de parcare inclus în preț Spații exterioare: Parter – curți private de 50–110 mp; Etaj – terase generoase de 7 mp. Stadiu de predare – La alb Buget finisaje la cheie: Pereți și tavane finisate cu vopsea lavabilă albă; Gresie și faianță – buget 60 lei/mp; Tâmplărie PVC Salamander – 7 camere, 3 foi de sticlă; Ușă metalică de intrare și uși interioare – buget 1.250 lei/ușă; Încălzire în pardoseală cu pompa de căldură aer-apă; Obiecte sanitare incluse – buget 2.500 lei/baie; Instalație electrică completă – buget 15 lei/priză; Termoizolație exterioară cu polistiren de 20 cm și tencuială decorativă; Izolație pod cu vată minerală 20 cm + gips-carton; Loc de parcare inclus (amenajat cu pavaj); loc suplimentar disponibil la 5.000 € + TVA. Termen de predare august 2026! OFERTA! in luna aprilie 2026 se ofera doua locuri de parcare incluse in pret!!!! Contactează-ne pentru mai multe detalii sau o vizionare! Fă-ți casa într-un cadru natural, liniștit, dar aproape de Sibiu.
Citește mai mult Citește mai puțin
Confort 1 Decomandat Alte metode electrice Încălzire prin pardoseală 1 Parcare Bine întreținut (Bună)

Detalii apartament

ID anunț: XE70100NA Copiat! 268337357 Copiat!
Actualizat în: 04 Mai 2026
Suprafață construită: 60 mp
Nr. bucătării: 1
Nr. băi: 1
An construcție: 2026 (În construcție)
Structură rezistență: Cărămidă
Tip imobil: Bloc de apartamente
Tip tranzacție: De vânzare prin agent
Regim înălțime: P+3E
Modalitate de plată: Cash sau Credit

Utilități

Destinație
Rezidențial
Ușă intrare
Metal
Izolații termice
Exterior
Ferestre cu geam termopan
PVC
Contorizare
Apometre
Facilități imobil
Interfon
Utilități
Curent Apă Canalizare
Amenajare străzi
Asfaltate
Comision
0%

Certificat energetic:

Clasa energetică: A

Puncte de interes

Mijloace transport
bus-station
Cristian Sibiu
Stații autobuz aprox. 1240 m

Istoricul prețurilor

Acces la informații premium după autentificare
Login Gratuit

Detalii despre preț și costuri

Costuri cu achiziția

Fără credit
Credit ipotecar
Noua casă

i

Costuri adiționale mai puțin știute la achiziție: taxe notariale, comisioane etc.

Acces la informații premium după autentificare
Login Gratuit

Proprietăți similare

Apartament cu 2 camere decomandat în Cristian
112.000 €
Județul Sibiu, Cristian
2 camere
53,55 mp
Etaj 1 / 4
Apartament cu 2 camere decomandat în Cristian
112.000 €
Județul Sibiu, Cristian
2 camere
51 mp
Etaj 1 / 3
Apartament cu 2 camere decomandat în Cristian
100.000 €
Județul Sibiu, Cristian
2 camere
52,26 mp
Parter / 2

Detalii de contact

KW Sibiu

Caius Giurgiu Consultant ImobiliarREALTOR

KW Sibiu
PRO

Abonează-te la newsletter să fii primul care primește cele mai noi recomandări de proprietăți și sfaturi de la experți.

CONTACT

Creează alertă

Salvează căutarea ca să primești pe email ultimele anunțuri publicate

Apartamente cu 2 camere de vânzare în Cristian, Județul Sibiu