Apartament 3 camere, 56mp, într-un ansamblu rezidențial premium – Sibiu
*** Comision 0 la achiziționare
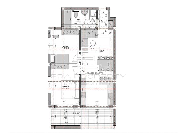
Vă prezentăm un apartament cu 3 camere, cu o suprafață utilă de 56.37 mp, completat de o terasa însumând 12.22 mp ideal pentru un stil de viață modern, echilibrat și eficient.
Compartimentat astfel: hol, living cu bucatarie open space, 1 dormitor, 1 birou, 1 baie , terasa cu acces din living si dormitor.
Imobilul face parte dintr-un ansamblu rezidențial exclusivist, remarcat prin densitatea redusă a construcțiilor, spațiile verzi ample și accesibilitatea excelentă către toate zonele orașului.
Poziționarea ansamblului permite deplasări rapide și fluide, indiferent de direcția aleasă:
Acces facil către principalele puncte de interes ale orașului
Trafic redus în orele de vârf
Economie zilnică de timp și un plus real de confort urban
Calitate a construcției și eficiență energetică
Clădirea este realizată cu atenție deosebită la detalii, folosind materiale premium, peste standardele construcțiilor rezidențiale obișnuite:
Încălzire în pardoseală
Centrală termică în condensație
Izolație cu vată bazaltică
Tâmplărie PVC cu 5 camere și geam tripan
Jaluzele electrice exterioare
Aer condiționat inclus
Balcoane finisate cu granit și balustrade din sticlă securizată
Casa scării placată cu granit
Fațadă ventilată, decorată cu larice siberian și piatră naturală
Spații verzi și confort rezidențial
Metode de plata:
Plata din surse proprii:
- 101.000 euro, finisat la alb
- 108.900 finisat la cheie
Plata cu credit bancar, cu avans de 10%:
- 113.500 finisat la alb
- 120.000 finisat la cheie
Ansamblul se distinge printr-un concept de locuire aerisit și echilibrat:
45% din suprafața totală dedicată spațiilor verzi
Sistem automatizat de irigatie pentru spatiile verzi
Arbori ornamentali maturi plantați încă de la livrare
Priveliște panoramică spre munți
Orientare sudică pentru toate balcoanele
Locuri de joacă pentru copii
Locuri de parcare incluse
Drumuri complet pavate
Acces organizat prin 4 căi de intrare și ieșire
Vile construite în trepte de nivel, pentru intimitate și vizibilitate optimă
*** Fotografiile sunt utilizate cu titlu informativ.
𝐃𝐚𝐕𝐢𝐧𝐜𝐢 𝐇𝐨𝐦𝐞𝐬 – 𝐂𝐚𝐫𝐭𝐢𝐞𝐫 𝐫𝐞𝐳𝐢𝐝𝐞𝐧𝐭𝐢𝐚𝐥 𝐩𝐫𝐞𝐦𝐢𝐮𝐦 𝐢𝐧 𝐳𝐨𝐧𝐚 𝐝𝐞 𝐕𝐞𝐬𝐭, 𝐒𝐢𝐛𝐢𝐮
Ansamblu modern situat în Cristian, la doar 4 minute de Zona Industrială Vest și 15 minute de centrul orașului.
Apartamente de lux cu încălzire în pardoseală, jaluzele electrice, aer condiționat, finisaje la cheie, balcoane cu granit și sticlă securizată.
✔️ 45% spații verzi
✔️ Vile cu regim redus (6–12 apartamente)
✔️ Arhitectură unitară și vedere panoramică spre munți
✔️ Drumuri pavate, 4 căi de acces, 4 locuri de joacă
✔️ Predare la cheie sau mobilat și utilat
📍 Cristian – zonă aerisită, acces rapid, intimitate și confort ridicat.
Sediul central - Timișoara
Bulevardul Victor Babeș nr. 2, 300230, Timișoara, România
Tel: +40.374.40.44.98 / Fax: +40.256.401.179
Email: suport@imobiliare.ro
Luni - Vineri 08:00 - 20:00
Punct de lucru - București: Iride Business Park, Bld. Dimitrie
Pompeiu 9-9A, Clădirea B2B,
020335, Sector 2, București, România
CONTACT
Sediul central - Timișoara
Bulevardul Victor Babeș nr. 2, 300230, Timișoara, România
Tel: +40.374.40.44.98 / Fax: +40.256.401.179
Email: suport@imobiliare.ro
Luni - Vineri 08:00 - 20:00
Punct de lucru - București: Iride Business Park, Bld. Dimitrie
Pompeiu 9-9A, Clădirea B2B,
020335, Sector 2, București, România
Sună acum și cere detalii sau programează o vizionare.
Nu rata ocazia să afli mai multe!
Sună acum și cere detalii sau programează o vizionare.
Cere detalii prin email
*
*
*
*
Stații autobuz
Cristian Sibiu
aprox.
1145 m
Înainte să pleci...
Ești sigur că ai văzut și aceste proprietăți?
109.000 €
Sibiu, Turnișor
2 camere
53 mp
Etaj 3
89.800 € + TVA
Județul Sibiu, Cristian
3 camere
54 mp
Etaj 1
102.131 €
Județul Sibiu, Cristian
3 camere
53,94 mp
Etaj 1
95.000 €
Județul Sibiu, Cristian
2 camere
54,14 mp
Etaj 1
100.000 € + TVA
Județul Sibiu, Cristian
2 camere
49,7 mp
Parter / 2
109.000 €
Județul Sibiu, Cristian
2 camere
54 mp
Etaj 1 / 3
Creează alertă
Salvează căutarea ca să primești pe email ultimele anunțuri publicate
Apartamente noi cu 3 camere de vânzare în Cristian, Județul Sibiu
Cere detalii prin email
*
*
*
*
Detaliile tale de contact vor fi partajate cu Era Property
Preț total520.762 RON (102.208 €)
Costuri cu achiziția6.157 RON
Preț de achiziție514.605 RON
Costuri cu achiziția6.157 RON
Comision agenție Întreabă agenţia
Onorariu notarial5.385 RON
Taxă înscriere OCPI772 RON
Preț de achiziție514.605 RON
Preț locuință514.605 RON
TVA 0%Inclus în prețul cerut
Cost total86.861 RON (17.047 €)
Avans (15%)77.191 RON
Cost achitat în prima lună1.972 RON
Costuri cu achiziția7.698 RON
Cost achitat în prima lună1.972 RON
Comision analiză dosar
400 RON - 900 RON
Taxă evaluare imobil(până la)
575 RON
Rata lunară (variabilă)2.292 RON
Asigurare anuală imobil515 RON
Arhivă electronică102 RON
Poliță PAD130 RON
Asigurare de viață/lună Costul este variabil. În funcție de banca aleasă, procentul variază între 0.0259% și 0.035% din soldul creditului.
Costuri cu achiziția7.698 RON
Comision agenție Întreabă agenţia
Onorariu notarial5.385 RON
Taxă întabulare OCPI772 RON
Autentificare contract credit1.541 RON
Preț de achiziție514.605 RON
Preț locuință514.605 RON
TVA 0%Inclus în prețul cerut
Preț de achiziție514.605 RON
Preț locuință514.605 RON
TVA 0%
Inclus în prețul cerut
Avans minim77.191 RON
Credit pe 30 de ani437.414 RON
Cost achitat în prima lună
Taxa evaluare imobil(până la)
575 RON
Rata lunară (variabilă)3.073 RON
Depozit colateral9.219 RON
Comision de garantare FNGCIMM43 RON
Asigurare anuală imobil515 RON
Poliță PAD130 RON
Tarif arhivă electronică102 RON
Costuri adiționale655 RON + taxe notariale
Asigurare viață și complexă (opțională)Costul este variabil. În funcție de banca aleasă, procentul variază între 0.0259% și 0.035% din soldul creditului
Onorariu notarialconform tarif notarial
Taxă întabulare OCPI655 RON
i
Toate valorile de mai sus sunt estimative și nu reprezintă în mod obligatoriu costurile exacte pe care le veți primi de la companiile/instituțiile prin care veți încheia tranzacția.