Apartament 2 camere, 51 mp, finisaje moderne – Florești, zona Tineretului

98.545 €

Florești, Județul Cluj

Nr. cam.:
2
Sup. utilă:
51 mp
Etaj:
3 / 4
An constr.:
2025
  • • Locație exactă

Descriere apartament

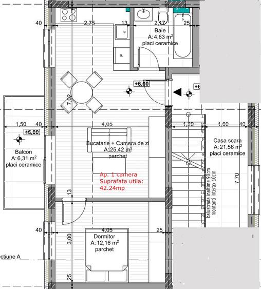
EDIL Florești vă propune spre vânzare un apartament cu 2 camere, situat în Florești, zona Tineretului, aproape de stadionul de fotbal și cu acces rapid spre Cluj-Napoca. Proprietatea se află într-un imobil nou, construit în 2025, dotat cu lift și curte comună amenajată cu parc propriu. Locuința este amplasată la etajul 3 din 4 și are o suprafață utilă de 51 mp, compartimentată practic: hol de acces, living cu bucătărie open space, dormitor, baie și balcon generos. Orientarea vestică asigură lumină naturală pe tot parcursul după-amiezii, oferind un spațiu cald și primitor. Apartamentul se predă cu finisaje moderne de calitate, inclusiv parchet laminat, gresie și faianță contemporană. Este dotat cu centrală termică proprie și sistem de încălzire în pardoseală pentru un confort sporit în orice anotimp. Baia este complet mobilată și utilată, iar apartamentul se vinde semimobilat. Această proprietate reprezintă o alegere excelentă atât pentru locuință personală, cât și pentru investiție, datorită poziționării într-o zonă în continuă dezvoltare și foarte bine conectată la oraș. Pentru mai multe detalii și pentru a programa o vizionare, vă invităm să ne contactați telefonic sau la sediul nostru EDIL Florești, Str. Eroilor nr. 25, ap. 15, et. 1. Cod ofertă: APCJ246782.
Citește mai mult Citește mai puțin
Confort 1 Semidecomandat 1 Balcon / Terasă / Logie Curte comună Centrală proprie Încălzire prin pardoseală Bine întreținut (Bună)

Detalii apartament

ID anunț: XEJQ000NR Copiat! 270679169 Copiat!
Actualizat în: 07 Octombrie 2025
Nr. bucătării: 1
Nr. băi: 1
Structură rezistență: Beton
Tip imobil: Bloc de apartamente
Regim înălțime: P+4E

Utilități

Destinație
Rezidențial
Pereți
Faianță Vopsea lavabilă
Podele
Parchet Gresie
Ușă intrare
Metal
Izolații termice
Exterior
Contorizare
Contor gaz
Facilități imobil
Lift Interfon
Utilități
Curent Canalizare Apă Gaze
Amenajare străzi
Asfaltate Iluminat stradal Mijloace de transport în comun

Puncte de interes

Mijloace transport
bus-station
Somesului
Stații autobuz aprox. 636 m
bus-station
Poligonului E
Stații autobuz aprox. 649 m
bus-station
M-Poligonului E
Stații autobuz aprox. 649 m
bus-station
M-Complex Floresti
Stații autobuz aprox. 663 m
Recreere
restaurant
Sara Grand Resort**** (en)
Restaurant aprox. 347 m
supermarket
Diana
Supermarket aprox. 637 m
park
Parc
Parcuri aprox. 947 m
sports-ground
Teren Fotbal Sintetic
Terenuri sport aprox. 1750 m

Detalii despre preț și costuri

Prețul pe piață

Preț cerut: 98.545 €

Preț min. zonă 75.000 €
Preț max. zonă 147.500 €

62% dintre proprietățile similare ca zonă și nr. camere au prețul cerut mai mare. mai multe...

Bine de știut: prețul unei proprietăți este influențat și de alte caracteristici, cum ar fi: vechime, localizare, vecinătăți, suprafață, compartimentare, amenajări, dotări, etc. mai puțin...

Costuri cu achiziția

Fără credit
6.045 RON
Credit ipotecar
7.576 RON
Noua casă
642 RON+ taxe notariale

i

Costuri adiționale mai puțin știute la achiziție: taxe notariale, comisioane etc.

Proprietăți recomandate

Detalii de contact

EDIL

Teodora Nemes AGENT

EDIL
PRO

Abonează-te la newsletter să fii primul care primește cele mai noi recomandări de proprietăți și sfaturi de la experți.

CONTACT

Creează alertă

Salvează căutarea ca să primești pe email ultimele anunțuri publicate

Apartamente noi cu 2 camere de vânzare în Florești, Județul Cluj