1

COMISION 0 !Apartament 2 camere, Tva inclus, garaj, Zona Centrala !

89.900 €

Florești, Județul Cluj

Nr. cam.:
2
Sup. utilă:
52,38 mp
Etaj:
5 / 7
An constr.:
2025 (În construcție)
  • • Locație aproximativă

Descriere apartament

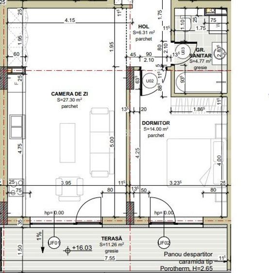
Te invităm să descoperi acest apartament cu 2 camere, situat într-un ansamblu rezidențial nou si exclusivist din inima Floreștiului, într-o zonă centrală. Pretul afisat include TVA-ul. Cu o suprafață utilă de 52,38 mp și o terasa de 11,26 mp, apartamentul este ideal pentru cei care apreciază confortul și stilul de viață modern. Etajul poate fi ales in functie de dorinta clintului si disponibilitate, beneficiind de o orientare estică, te vei bucura de o lumină naturală plăcută pe tot parcursul zilei. Compartimentarea inteligentă include: 1 dormitor luminos 1 living generos, perfect pentru relaxare 1 bucătărie 1 baie modernă. Apartamenele se pot preda si la stadiul de FINISAT la pretul de 1800 euro/mp. Posibilitatea achiziționării unui loc de parcare subteran la pretul de 7000e. Nu rata ocazia de a investi într-un apartament care promite confort și rafinament! Pentru mai multe detalii legate de apartament sau pentru o vizionare, nu ezitati sa ne contactati! Termenul de finalizare este stabilit in luna IULIE 2026! Cod ofertă / ID BLITZ: P136923
Citește mai mult Citește mai puțin
Semidecomandat Parțial mobilat Centrală imobil 1 Parcare Bine întreținut (Bună)

Detalii apartament

ID anunț: XFTI103GF Copiat! 261105294 Copiat!
Actualizat în: 03 Aprilie 2026
Nr. bucătării: 1
Nr. băi: 1
Structură rezistență: Cărămidă
Tip imobil: Bloc de apartamente
Regim înălțime: P+7E
Nr. terase: 1

Utilități

Destinație
Rezidențial
Pereți
Vopsea lavabilă
Podele
Parchet Gresie
Ușă intrare
Metal
Uși interior
Lemn
Izolații termice
Exterior Interior
Ferestre cu geam termopan
PVC
Contorizare
Apometre Contor căldură Contor gaz
Alte spații utile
Terasă
Facilități imobil
Interfon Lift
Utilități
Curent Apă Canalizare Gaze
Amenajare străzi
Asfaltate
Comision
2%

Puncte de interes

Mijloace transport
bus-station
Primaria Floresti S
Stații autobuz aprox. 318 m
bus-station
Primaria Floresti N
Stații autobuz aprox. 324 m
bus-station
Profi V
Stații autobuz aprox. 385 m
bus-station
Eroilor V
Stații autobuz aprox. 674 m
Recreere
park
Parc
Parcuri aprox. 123 m
supermarket
Lidl
Supermarket aprox. 203 m
restaurant
Da Cristiano
Restaurant aprox. 464 m
sports-ground
Teren Fotbal Sintetic
Terenuri sport aprox. 598 m

Detalii despre preț și costuri

Prețul pe piață

Preț cerut: 89.900 €

Preț min. zonă 75.000 €
Preț max. zonă 147.500 €

79% dintre proprietățile similare ca zonă și nr. camere au prețul cerut mai mare. mai multe...

Bine de știut: prețul unei proprietăți este influențat și de alte caracteristici, cum ar fi: vechime, localizare, vecinătăți, suprafață, compartimentare, amenajări, dotări, etc. mai puțin...

Costuri cu achiziția

Fără credit
14.802 RON
Credit ipotecar
16.267 RON
Noua casă
598 RON+ taxe notariale

i

Costuri adiționale mai puțin știute la achiziție: taxe notariale, comisioane etc.

Proprietăți recomandate

Detalii de contact

BLITZ

BLITZ ROMANIA

4.70(108 review-uri)

BLITZ
PRO

Abonează-te la newsletter să fii primul care primește cele mai noi recomandări de proprietăți și sfaturi de la experți.

CONTACT

Creează alertă

Salvează căutarea ca să primești pe email ultimele anunțuri publicate

Apartamente cu 2 camere de vânzare în Florești, Județul Cluj