Apartament 2 camere decomandat Micro 18

55.000 €

Micro 20, Galați

Nr. cam.:
2
Sup. utilă:
54 mp
Etaj:
10 / 10
Tip prop.:
Bloc de apartamente
  • • Comision 0%
  • • Locație exactă

Descriere apartament

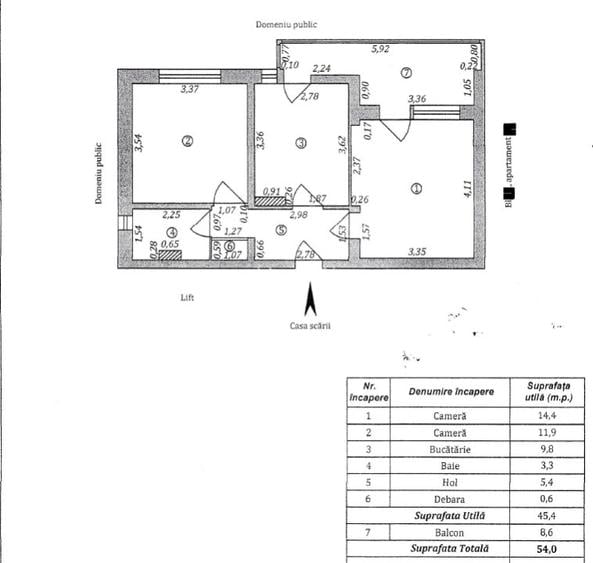
Vind un apartament cu 2 camere decomandat, confort I, situat in Micro 18 la etajul 10 din 10 cu o suprafata totala de 54mp (vezi schita apartamentului), suprafata utila este de 45.4mp plus balcon pozitionat Nord-Est. Apartamentul este dotat cu centrala termica proprie (contor individual gaze), ferestre cu geam termopan instalate la baie, dormitor si bucatarie. Apartamentul se vinde fara intermediar, nu exista comision de cumparare. Persoanele interesate sunt rugate sa ma contacteze fie pe WhatsApp fie prin email. Utilitati generale: Curent, Apa, Canalizare, Gaz, CATV Sistem incalzire: Centrala proprie Acces internet: Fibra optica Dotari imobil: Lift complet renovat, Interfon
Citește mai mult Citește mai puțin
Confort 1 Decomandat

Detalii apartament

ID anunț: XV0Q007L5 Copiat! 212671271 Copiat!
Actualizat în: 31 Martie 2026
Nr. băi: 1
An construcție: Între 1978 și 1990
Regim înălțime: P+10E

Utilități

Comision
0%

Puncte de interes

Mijloace transport
bus-station
Service vechi
Stații autobuz aprox. 231 m
bus-station
Neacsu
Stații autobuz aprox. 282 m
tram-station
Micro 19
Stații tramvai aprox. 561 m
tram-station
Micro 19
Stații tramvai aprox. 596 m
Școală
school
Scoala gimnaziala nr. 29
Școli aprox. 551 m
kindergarten
Gradinita Motanul incaltat
Gradinițe aprox. 640 m
school
Scoala Generala nr. 3
Școli aprox. 942 m
university
Universitatea Danubius
Universități aprox. 1440 m
Recreere
bar
Tahiti
Bar aprox. 67 m
supermarket
LIDL
Supermarket aprox. 179 m
park
Parc
Parcuri aprox. 240 m
sports-ground
ICMRSG
Terenuri sport aprox. 1315 m

Detalii despre preț și costuri

Prețul pe piață

Preț cerut: 55.000 €

Preț min. zonă
Preț max. zonă

84% dintre proprietățile similare ca zonă și nr. camere au prețul cerut mai mare. mai multe...

Bine de știut: prețul unei proprietăți este influențat și de alte caracteristici, cum ar fi: vechime, localizare, vecinătăți, suprafață, compartimentare, amenajări, dotări, etc. mai puțin...

Insight premium disponibil după login

Costuri cu achiziția

Fără credit
Credit ipotecar
Noua casă

i

Costuri adiționale mai puțin știute la achiziție: taxe notariale, comisioane etc.

Insight premium disponibil după login

Proprietăți recomandate

Detalii de contact

Marius Nastasa

Marius N

Proprietar

Abonează-te la newsletter să fii primul care primește cele mai noi recomandări de proprietăți și sfaturi de la experți.

CONTACT

Creează alertă

Salvează căutarea ca să primești pe email ultimele anunțuri publicate

Apartamente cu 2 camere de vânzare în zona Micro 20, Galați