1

Apartament 3 camere Frumoasa, etaj 1, ideal investitie

109.900 €

Frumoasa, Iași

Nr. cam.:
3
Sup. utilă:
70 mp
Etaj:
1 / 4
An constr.:
1984 (Finalizată)
  • • Locație exactă

Descriere apartament

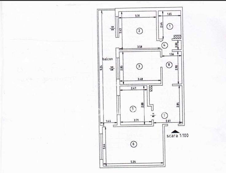
COD OFERTA; CP6937 Agentia Casa Prima va propune spre vanzare un apartament cu 3 camere decomandat cu suprafata de 70 mp, modelul cu 2 bai, 2 balcoane, situat in zona Frumoasa la etajul 1 intr-un bloc cu 4 etaje construit in anul 1984. Apartamentul necesita renovare in totalitate, dispune de; -centrala termica; -tamplarie PVC; In zona se gasesc Manastirea Frumoasa, scoala gimnaziala Dimitrie Sturdza, cu acces la mijloace de transport in comun, autobuzele 19, 27, 42, 43, 43c, 44. Pentru mai multe informatii, consultati agentul imobiliar la numarul de telefon
Citește mai mult Citește mai puțin
Confort 1 Decomandat Nemobilat 2 Balcoane / Terase / Logii Centrală imobil Necesită renovare

Detalii apartament

ID anunț: X511004KR Copiat! 275447664 Copiat!
Actualizat în: 17 Aprilie 2026
Suprafață utilă totală: 70 mp
Suprafață construită: 80 mp
Nr. bucătării: 1
Nr. băi: 2
Structură rezistență: Beton
Tip imobil: Bloc de apartamente
Regim înălțime: P+4E

Utilități

Destinație
Rezidențial
Pereți
Faianță Vopsea lavabilă
Podele
Gresie Parchet
Ușă intrare
Lemn
Uși interior
Lemn
Ferestre cu geam termopan
PVC
Contorizare
Contor gaz Apometre
Facilități imobil
Interfon
Utilități
CATV Gaze Telefon Curent Canalizare Apă
Internet
Cablu
Servicii imobil
Administrare
Amenajare străzi
Asfaltate Betonate Iluminat stradal Mijloace de transport în comun
Comision
negociabil

Vecinătăți:

Nicolina

Puncte de interes

Mijloace transport
bus-station
Statia "Bariera Nicolina", linia 44
Stații autobuz aprox. 169 m
bus-station
Bariera Nicolina
Stații autobuz aprox. 170 m
tram-station
Statia "Piata Nicolina", linia 11
Stații tramvai aprox. 955 m
train-station
Gara Internațională Nicolina
Stații tren aprox. 1427 m
Școală
school
Scoala "Dimitrie Sturdza" nr. 43
Școli aprox. 58 m
school
Sc Gen 43 M Sturdza
Școli aprox. 58 m
kindergarten
Happy Party
Gradinițe aprox. 349 m
university
Facultatea de Constructii Iasi
Universități aprox. 1586 m
Recreere
supermarket
Zerkat
Supermarket aprox. 402 m
sports-ground
Teren sportiv
Terenuri sport aprox. 474 m
park
Parc Nicolina 2
Parcuri aprox. 697 m
mall
Shopping Center on Shopping Street(Palas) (en)
Mall aprox. 1935 m

Detalii despre preț și costuri

Prețul pe piață

Preț cerut: 109.900 €

Preț min. zonă
Preț max. zonă

72% dintre proprietățile similare ca zonă și nr. camere au prețul cerut mai mare. mai multe...

Bine de știut: prețul unei proprietăți este influențat și de alte caracteristici, cum ar fi: vechime, localizare, vecinătăți, suprafață, compartimentare, amenajări, dotări, etc. mai puțin...

Insight premium disponibil după login

Costuri cu achiziția

Fără credit
Credit ipotecar
Noua casă

i

Costuri adiționale mai puțin știute la achiziție: taxe notariale, comisioane etc.

Insight premium disponibil după login

Proprietăți similare

Apartament cu 3 camere decomandat în Frumoasa
110.856 €
Iași, Frumoasa
3 camere
74 mp
Etaj 2
Apartament cu 2 camere decomandat, mobilat în Frumoasa
118.000 €
Iași, Frumoasa
2 camere
52 mp
Parter / 4
Apartament cu 2 camere decomandat în Frumoasa
118.000 €
Iași, Frumoasa
2 camere
65 mp
Etaj 7 / 10

Detalii de contact

CASA PRIMA

George Andone consilier imobiliar

3.25(4 review-uri)

CASA PRIMA

Abonează-te la newsletter să fii primul care primește cele mai noi recomandări de proprietăți și sfaturi de la experți.

CONTACT

Creează alertă

Salvează căutarea ca să primești pe email ultimele anunțuri publicate

Apartamente cu 3 camere de vânzare în zona Frumoasa, Iași