Etaj 2 Ap 3 Camere Decomandat 77mp zona Nicolina

121.900 €

Nicolina, Iași

Nr. cam.:
3
Sup. utilă:
77 mp
Etaj:
2 / 4
An constr.:
1983
  • • Locație exactă

Descriere apartament

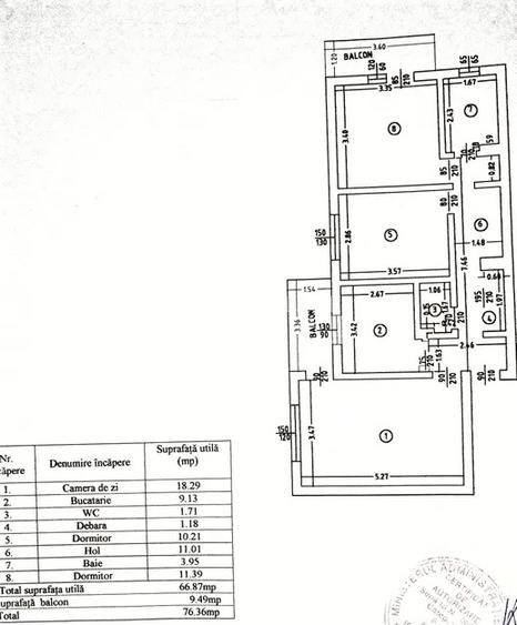
Va propun spre vanzare un apartament cu 3 camere decomandat cu 2 bai suprafata totala 77mp situat la etajul 2 din 4 intr-un bloc construit in 1983. Blocul se afla in planul 2 intr-o zona linistita si foarte aproape de scoli, gradinite, statii de mijloc de transport in comun, cat si supermarketuri. Pentru mai multe informatii si pentru a programa o vizionare nu ezitati sa ne contactati!
Citește mai mult Citește mai puțin
Confort 1 Decomandat 1 Balcon / Terasă / Logie

Detalii apartament

ID anunț: X90710ACH Copiat! 275465606 Copiat!
Actualizat în: 22 Aprilie 2026
Suprafață construită: 82 mp
Nr. bucătării: 1
Nr. băi: 2
Tip imobil: Bloc de apartamente
Regim înălțime: P+4E

Utilități

Destinație
Rezidențial
Comision
3%

Puncte de interes

Mijloace transport
bus-station
Pod Nicolina
Stații autobuz aprox. 21 m
bus-station
Pod Nicolina
Stații autobuz aprox. 125 m
tram-station
statia "Bazar", linia 11
Stații tramvai aprox. 576 m
train-station
Gara Nicolina Iasi
Stații tren aprox. 819 m
Școală
kindergarten
Gradinita cu Program Normal Nr. 12
Gradinițe aprox. 298 m
kindergarten
Gradinita Kitty
Gradinițe aprox. 349 m
school
Scoala Alecu Russo
Școli aprox. 383 m
university
Facultatea de Constructii Iasi
Universități aprox. 1299 m
Recreere
park
Parc Nicolina 2
Parcuri aprox. 128 m
supermarket
Carrefour Market
Supermarket aprox. 274 m
sports-ground
Teren de sport
Terenuri sport aprox. 878 m
mall
Shopping Center on Shopping Street(Palas) (en)
Mall aprox. 1590 m

Detalii despre preț și costuri

Prețul pe piață

Preț cerut: 121.900 €

Preț min. zonă
Preț max. zonă

71% dintre proprietățile similare ca zonă și nr. camere au prețul cerut mai mare. mai multe...

Bine de știut: prețul unei proprietăți este influențat și de alte caracteristici, cum ar fi: vechime, localizare, vecinătăți, suprafață, compartimentare, amenajări, dotări, etc. mai puțin...

Insight premium disponibil după login

Costuri cu achiziția

Fără credit
Credit ipotecar
Noua casă

i

Costuri adiționale mai puțin știute la achiziție: taxe notariale, comisioane etc.

Insight premium disponibil după login

Proprietăți similare

Apartament cu 2 camere decomandat în Nicolina
113.040 € + TVA
Iași, Nicolina
2 camere
57,4 mp
Etaj 3
Apartament cu 3 camere decomandat în Nicolina
128.000 €
Iași, Nicolina
3 camere
60 mp
Etaj 2
Apartament cu 3 camere decomandat, mobilat în Nicolina
125.000 €
Iași, Nicolina
3 camere
66 mp
Etaj 3

Detalii de contact

UNU IMOBILIARE

Alin Macovei Agent responsabil de zona Cug

UNU IMOBILIARE
PRO

Abonează-te la newsletter să fii primul care primește cele mai noi recomandări de proprietăți și sfaturi de la experți.

CONTACT

Creează alertă

Salvează căutarea ca să primești pe email ultimele anunțuri publicate

Apartamente cu 3 camere de vânzare în zona Nicolina, Iași