Apartament 3 camere, 63 mp, decomandat, parcare, bloc nou, Iasi, Nicolina

149.000 €

Nicolina, Iași

Nr. cam.:
3
Sup. utilă:
67 mp
Etaj:
1 / 3
An constr.:
2020 (Finalizată)
  • • Locație exactă
  • • Vizionare prin apel video

Descriere apartament

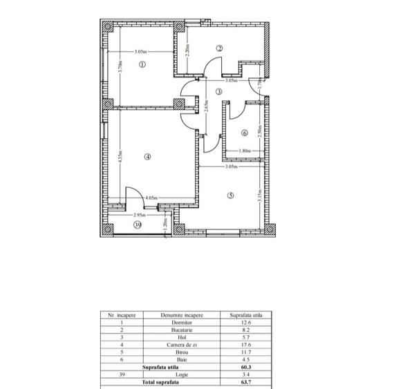
De vanzare, apartament cu 3 camere decomandat. Apartamentul se vinde impreuna cu loc de parcare intabulat si se preda complet mobilat si utilat, asa cum este prezentat in fotografii (frigider, cuptor, cuptor cu microunde, plita, masina de spalat rufe, obiecte de iluminat, draperii, etc). Mobila de calitate, realizata pe comanda dupa dimensiunile fiecare incaperi. Apartamentul este situat la etajul 1 intr-un bloc NOU, construit in anul 2020, are o suprafata de 63,70 mp, este decomandat si este amenajat modern. Incalzirea se face prin pardoseala, are centrala termica in condensare Immergas, termostat de ambient, iar baia este echipata cu cada, perete sticla, lavoar suspendat, cadru wc incastrat si wc suspendat. Se accepta si credit bancar. Pret: 149000 euro, negociabil. Pentru detalii sau vizionare, ma puteti contacta telefonic.
Citește mai mult Citește mai puțin
Confort 1 Decomandat Mobilat Servicii Centrală proprie Încălzire prin pardoseală 1 Parcare Renovat

Detalii apartament

ID anunț: XB0A001D8 Copiat! 275275091 Copiat!
Actualizat în: 30 Aprilie 2026
Suprafață utilă totală: 70 mp
Suprafață construită: 70 mp
Nr. bucătării: 1
Nr. băi: 1
Tip imobil: Bloc de apartamente
Regim înălțime: P+3E

Utilități

Destinație
Rezidențial Comercial Birouri De vacanță
Jaluzele
Verticale
Pereți
Faianță Vopsea lavabilă
Podele
Gresie Parchet
Ușă intrare
Metal
Uși interior
Lemn
Izolații termice
Exterior
Ferestre cu geam termopan
PVC
Contorizare
Contor gaz Apometre Contor căldură
Bucătărie
Mobilată Utilată
Electrocasnice
Mașină de spălat Cuptor microunde Aragaz Hotă TV
Facilități imobil
Interfon
Utilități
Curent Canalizare Apă Gaze CATV
Internet
Cablu Fibră optică Wireless
Servicii hoteliere
Transfer aeroport/gară Tur oraș
Amenajare străzi
Asfaltate Iluminat stradal Mijloace de transport în comun
Comision
negociabil

Certificat energetic:

Clasa energetică: A

Vicii:

nu sunt

Vecinătăți:

Biserica Catolica

Alte detalii:

De vanzare, apartament cu 3 camere decomandat.
Apartamentul se vinde impreuna cu loc de parcare intabulat si se preda complet mobilat si utilat, asa cum este prezentat in fotografii (frigider, cuptor, cuptor cu microunde, plita, masina de spalat rufe, obiecte de iluminat, draperii, etc).
Mobila de calitate, realizata pe comanda dupa dimensiunile fiecare incaperi.
Apartamentul este situat la etajul 1 intr-un bloc NOU, construit in anul 2020, are o suprafata de 63,70 mp, este decomandat si este amenajat modern. Incalzirea se face prin pardoseala, are centrala termica in condensare Immergas, termostat de ambient, iar baia este echipata cu cada, perete sticla, lavoar suspendat, cadru wc incastrat si wc suspendat.
Se accepta si credit bancar.
Pret: 149000 euro, negociabil.
Pentru detalii sau vizionare, ma puteti contacta telefonic.

Alte detalii despre preț:

negociabil

Disponibilitate proprietate:

liber

Puncte de interes

Mijloace transport
bus-station
Pod Nicolina
Stații autobuz aprox. 838 m
bus-station
Statie Tudor Nicolae linia 41, 41B
Stații autobuz aprox. 846 m
train-station
Gara Nicolina Iasi
Stații tren aprox. 904 m
tram-station
Gara Internationala: Nicolina
Stații tramvai aprox. 984 m
Școală
school
Școala nr. 32 Tudor Arghezi (en)
Școli aprox. 523 m
kindergarten
Gradinita Kitty
Gradinițe aprox. 681 m
school
Scoala "Vasile Conta" (Nr. 36)
Școli aprox. 701 m
university
Facultatea de Constructii Iasi
Universități aprox. 1800 m
Recreere
park
Parc
Parcuri aprox. 414 m
supermarket
Carrefour Market
Supermarket aprox. 614 m
sports-ground
Teren de sport
Terenuri sport aprox. 1174 m
mall
Shopping Center on Shopping Street(Palas) (en)
Mall aprox. 1969 m

Detalii despre preț și costuri

Prețul pe piață

Preț cerut: 149.000 €

Preț min. zonă
Preț max. zonă

94% dintre proprietățile similare ca zonă și nr. camere au prețul cerut mai mic. mai multe...

Bine de știut: prețul unei proprietăți este influențat și de alte caracteristici, cum ar fi: vechime, localizare, vecinătăți, suprafață, compartimentare, amenajări, dotări, etc. mai puțin...

Insight premium disponibil după login

Costuri cu achiziția

Fără credit
Credit ipotecar
Noua casă

i

Costuri adiționale mai puțin știute la achiziție: taxe notariale, comisioane etc.

Insight premium disponibil după login

Proprietăți similare

Apartament cu 3 camere decomandat în Nicolina
157.700 € + TVA
Iași, Nicolina
3 camere
80,4 mp
Etaj 4 / 10
Apartament cu 3 camere decomandat în Nicolina
157.760 € + TVA
Iași, Nicolina
3 camere
80 mp
Etaj 4 / 10
Apartament cu 3 camere decomandat în Nicolina
151.500 € + TVA
Iași, Nicolina
3 camere
69,6 mp
Etaj 2 / 8

Detalii de contact

Abonează-te la newsletter să fii primul care primește cele mai noi recomandări de proprietăți și sfaturi de la experți.

CONTACT

Creează alertă

Salvează căutarea ca să primești pe email ultimele anunțuri publicate

Apartamente cu 3 camere de vânzare în zona Nicolina, Iași