2

Pacurari-Moara de foc.ap.3camere.2balcoane, garaj,box, et.1/8, 85mp2!

194.500 €

Păcurari, Iași

Nr. cam.:
3
Sup. utilă:
85 mp
Etaj:
1 / 8
An constr.:
2007
  • • Locație exactă

Descriere apartament

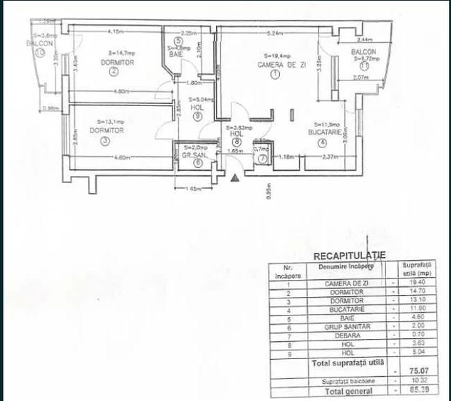
COD OFERTA:CP6265 GARA SI BOXA INTABULATE SEPARAT!! Agentia CASA PRIMA pune la dispozitia dumneavoastra un apartament cu 3 camere decomandat cu suprafata de 85 mp, situat in Pacurari-Moara de foc. Imobilul este situat la etajul 1 intr-un bloc cu 8 etaje construit in anul 1983, imobil fara risc! Apartamentul are centrala termica, tamplarie exterioara din termopan, inclusiv balcoanele. Apartamentul se vinde complet mobilat si utilat, inclusiv electrocasnice, asa cum se vede in fotografii. Pentru mai multe detalii și pentru a programa o vizionare, vă rugăm să ne contactați la numărul de telefon
Citește mai mult Citește mai puțin
Confort 1 Decomandat 2 Balcoane / Terase / Logii 1 Garaj

Detalii apartament

ID anunț: X511003UP Copiat! 260274719 Copiat!
Actualizat în: 14 Mai 2025
Suprafață utilă totală: 95 mp
Nr. bucătării: 1
Nr. băi: 2
Structură rezistență: Beton
Tip imobil: Bloc de apartamente
Regim înălțime: S+D+P+8E

Puncte de interes

Mijloace transport
bus-station
Statia "Petru Poni", linia 18,20,43,43c,46
Stații autobuz aprox. 128 m
bus-station
Autogara Real
Stații autobuz aprox. 333 m
tram-station
Statia "bariera Tigarete", linia 2,7
Stații tramvai aprox. 428 m
train-station
Gara Iasi NORD
Stații tren aprox. 1160 m
Școală
school
Scoala "Petru Poni"
Școli aprox. 239 m
kindergarten
Fun Fan - Kids Club
Gradinițe aprox. 312 m
school
Scoala "Ion Creanga"
Școli aprox. 412 m
university
Institutul Teolog Romano-Catolic Sf Iosif
Universități aprox. 659 m
Recreere
supermarket
LIDL
Supermarket aprox. 175 m
park
Ciprian Ionascu
Parcuri aprox. 208 m
sports-ground
Terenul de fotbal
Terenuri sport aprox. 285 m
public-square
Piata Voievozilor (en)
Piețe publice aprox. 1429 m

Detalii despre preț și costuri

Prețul pe piață

Preț cerut: 194.500 €

Preț min. zonă
Preț max. zonă

i

Proprietate cu prețul cerut în afara intervalului mai multe...

Posibile explicații pentru faptul că prețul proprietății este peste cel maxim: imobil nou cu suprafață mare, are dotări și finisaje de lux.
Bine de știut: prețul unei proprietăți este influențat și de alte caracteristici, cum ar fi: vechime, localizare, vecinătăți, suprafață, compartimentare, amenajări, dotări, etc.
Insight premium disponibil după login

Costuri cu achiziția

Fără credit
Credit ipotecar
Noua casă

i

Costuri adiționale mai puțin știute la achiziție: taxe notariale, comisioane etc.

Insight premium disponibil după login

Proprietăți similare

Apartament cu 3 camere decomandat în Păcurari
179.000 €
Iași, Păcurari
3 camere
99 mp
Etaj 8 / 8
Apartament cu 4 camere, mobilat în Păcurari
190.000 €
Iași, Păcurari
4 camere
90 mp
Parter
Apartament cu 4 camere decomandat în Păcurari
190.000 €
Iași, Păcurari
4 camere
90 mp
Parter / 8

Detalii de contact

CASA PRIMA

Alexandru Paduraru Agent Imobiliar

CASA PRIMA

Abonează-te la newsletter să fii primul care primește cele mai noi recomandări de proprietăți și sfaturi de la experți.

CONTACT

Creează alertă

Salvează căutarea ca să primești pe email ultimele anunțuri publicate

Apartamente cu 3 camere de vânzare în zona Păcurari, Iași